装修风格:新中式
装修套餐:528套餐
小区面积:118平方
套餐造价:9万
个性造价:15000元
工程造价:10.5万
设计师:任文远(微信号:13949009030)
装修公司:美巢装饰
设计说明:整个户型主要是对入户花园进行功能改造,把入户花园改造成开敞式书房,这样以来过道的光线能够得到最大满足,一入户也能让人感觉到儒雅的气氛。
新中式装修风格118平案例——墙面布局,客卧侧面强做装饰墙,用壁画做端景墙
新中式装修风格118平案例——入户门,可以让业主一进家门就能看到一个景观出现。
新中式装修风格118平案例——把书房的对面改成装饰搁架,可以摆放业主的文玩摆件。
新中式装修风格118平案例——入户花园改造成开敞式书房,尽显儒雅的气氛。
新中式装修风格118平案例——客厅电视背景墙
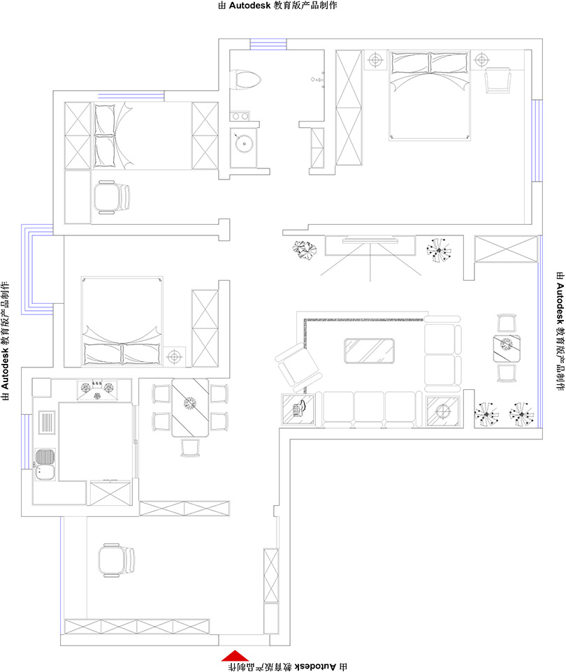
新中式装修风格118平案例——户型平面图
新中式装修风格118平案例——客厅全景布局,业主是医生,个人收藏比较多需要有展示空间,喜欢中式元素
新中式装修风格118平案例——客厅电视背景墙,运用传统的对称美,两边用护墙板表现古朴的味道,中间用爵士白石材提高客厅的品味。

新中式装修风格118平案例——餐厅背景墙,用白色文化石做点缀,既能表现出乡村的味道,又能体现出现代的时尚。
更多室内设计欣赏,可加设计师小李微信(Lsn018)