
▲ 城市主干道鸟瞰图
本项目位于深圳市南山区留仙洞总部基地西北角,北临深圳职业技术学院西校区,西靠中兴通讯工业园及其人才公寓和山体公园,东侧和南侧为大疆总部和绿廊。1标段可建设用地32,140.82平方米,总建筑面积411,913平方米,计规定容积率建筑面积301,850平方米,地下室建筑面积84,300平方米,项目包含研发、商业及公共配套等多项功能,在科学合理地解决各项功能要求的基础上,致力打造一个新一代信息产业的“低碳e社区”。
在经历一系列的产业园设计之后,我们尝试在以往产业园生态开放、多层地表等设计理念的基础上,进行产业园设计升级,开始关注企业全生命周期发展。我们的设计摒弃传统单纯追求建筑形式的设计潮流,使设计回归到需求本质。从使用者和企业的需求出发,满足不同企业在不同发展阶段的需求,创造一个功能复合、多样生活的产业园区。
创智云城的设计,旨在突破原有信息企业之间单一的疏离与竞争关系,通过协同、聚集、共享的创新空间模式,为高科技信息技术企业创造共生的产业生态环境,促进个体之间的资源共享与合作交流。

▲ 整体鸟瞰图

▲ 整体人视图
贯穿整个园区的“商务环”
借助贯穿整体园区的“商务环”,我们期望将更多激发企业发展的积极因素串联起来,包括伴随企业创建,发展,壮大,乃至成熟所需的各种硬件功能或软件协助,并在空间状态上反映出区别于其他企业总部的多样化与人性化,最终成为信息技术行业全周期的发展支点。

▲ 商务环分析图

▲ 商务环

▲ 内部活力广场
完全开放的“底层活力街区”
建筑布局顺应城市设计,呼应中心广场与视线通廊。来自城市各个方向的人行动线将底层划分为开放街区模式,营造丰富的城市生活,与城市空间紧密连接。

▲ 底层活力街区分析图

▲ 展示中心

▲ 城市街景

▲ 公共通道
服务初创期企业的“孵化器平台空间”
24米以下为服务于初创期中小型企业的孵化器平台空间。环形的公共休息廊道将整个园区在空中有机联系,若干个不同功能节点通过垂直电梯和扶梯将孵化器平台与地面联系着。孵化器引入多元化的产业配套,适合各种类型的初创期企业,而共享空间和新的功能置入,增强了企业之间的交流,激发了企业活力。

▲ 孵化器平台空间分析图

▲ 内庭院广场

▲ 9米架空平台
服务成长期企业的“公共转化平台”
24米平台为服务于成长期大中型企业的公共转化平台,而这个园区的第二平台,连接着各色人群。在这里,是一个更为活跃的公共空间,各式特色功能在此聚集。多样的活动与非正式交流空间的营造,实现了产业园由孵化器向加速器的转变,企业由初创期向成长期的过渡。

▲ 公共转化平台分析图

▲ 秘密屋顶花园

▲ 公共屋顶花园
多层立体的产品布局模式
我们根据企业的发展阶段及需求,将园区分层处理。底层将城市归还市民,打造活力商业街区;向上依次为中小型企业,大中型企业,大型企业及伟大企业。整个标段从下到上,公共度递减,私密度递增,使用人群各取所需,最大化提升产品附加值。

▲ 多层立体的产品布局模式分析图

▲ 多层地表模式

▲ 垂直交通体系

▲ 园区内景
技术图纸

▲ 总图

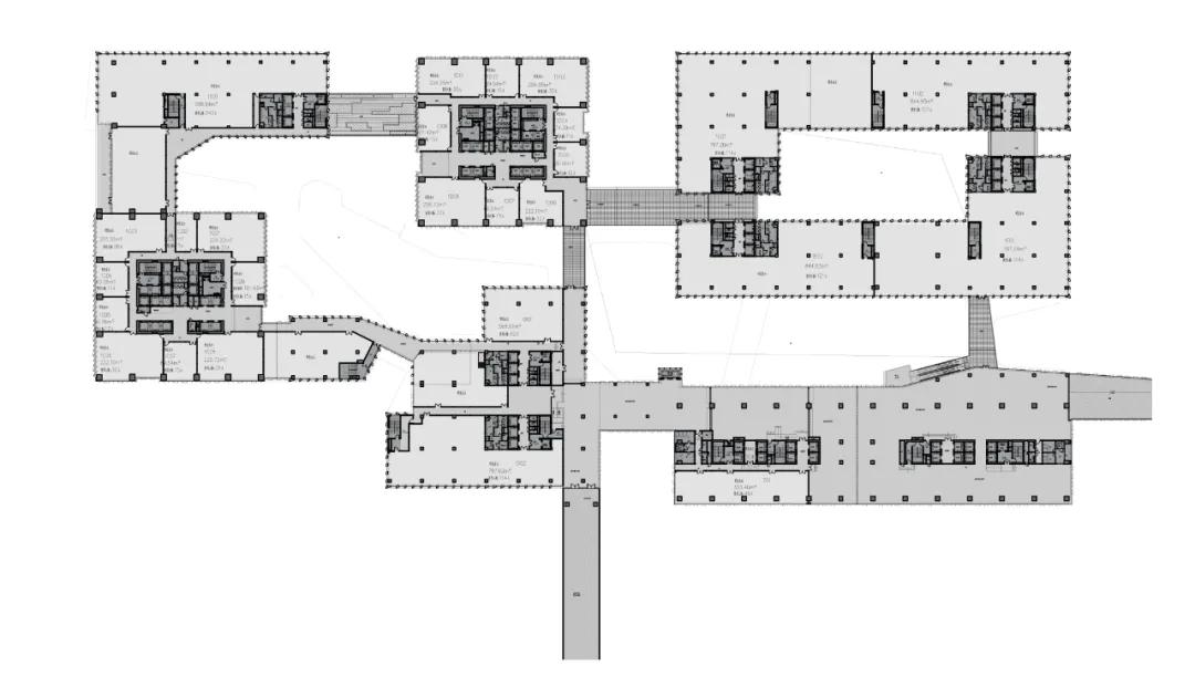
▲ 一层平面图

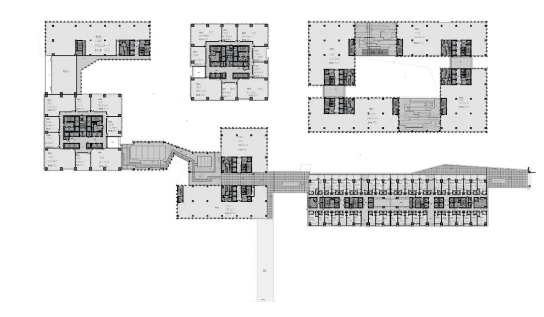
▲ 二层平面图

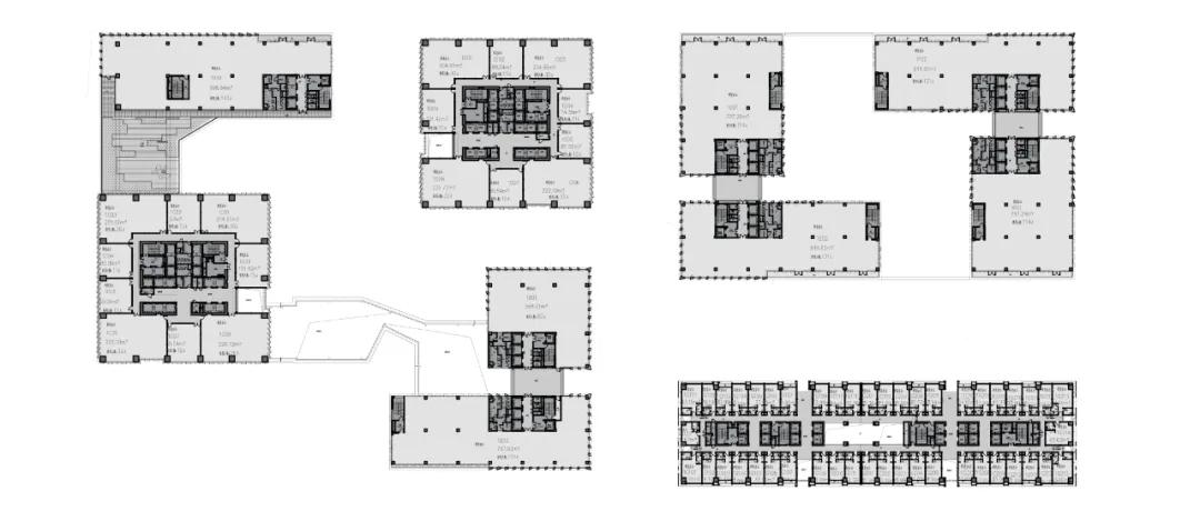
▲ 三层平面图

▲ 四层平面图

▲ 五层平面图

▲ 六层平面图
深圳留仙洞创智云城
项目类型:产业园区
建设地点:广东省深圳市
业 主:深圳市特区建设发展集团有限公司
设计单位:MENG建筑创作院(深圳市建筑设计研究总院有限公司)、直属四所(深圳市建筑设计研究总院有限公司)
用地面积:32,140.82㎡
建筑面积:411,913㎡
设计时间:2013年9月-2016年3月
建成时间:2020年5月
主持建筑师:孟建民、杨旭
设计团队:刘勇高、王敏龙、李优、邓晓舜、郝进辉、冬雷、钱铖、周谦、郑清、张春怡、谢锴、田涛
施工图设计:万军、吴风利、廖涛、陈金求、李斌、刘长富、陈闻超、宁帅、王平、杜雨辰、续林霜、张铭、吴冠乐、姜乙锋、翁琦云
项目经理:宋文波
BIM咨询与设计:深圳市华森建筑工程咨询有限公司
景观设计:深圳奥雅景观与建筑规划设计有限公司
绿建设计:深圳市建筑科学研究院股份有限公司
摄影师:孔辰承
荣誉奖项:
第九届广东省建筑设计奖·建筑方案奖公建类三等奖
2018年第四届深圳建筑设计奖(未建成)金奖

供稿:MENG建筑创作院(深总院)
编辑:赖蔓雯
资料来源、版权所有: 孟建民本原设计