
使用面积:140㎡
户型:3室2厅1厨2卫
装修花费:40W
房屋所在地:江苏南京
认识TA

设计师:傅阳
南京熹维设计
从业9年,主张用创想的思维结合经验,寻求最合适的设计,赋予空间一种“感受力”,让家居集趣味与简洁实用于一身。

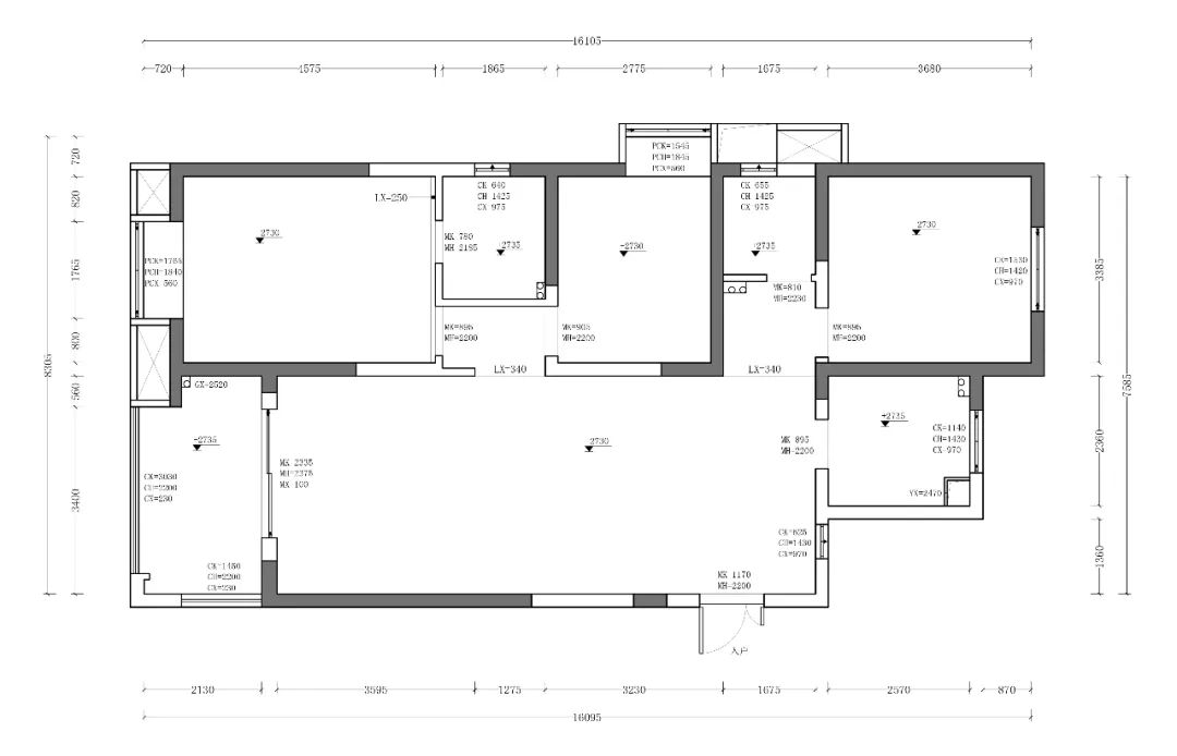
原始结构图
这个家的屋主是一对年轻夫妇,两人曾同于日本留学,如今拥有了共同的家,他们希望自己所有的生活习惯都能被新家所包容。
房子改造前是一个三居室,虽然户型方正,但也存在一点缺陷,比如:没有玄关、每个空间的宽度略窄,以及储物空间少等。

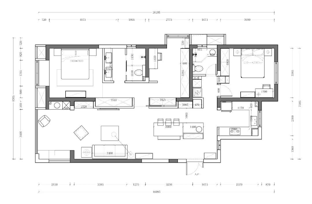
平面布局图
改造后,设计师根据屋主两人的生活习惯,将玄关、岛台、餐厅串联成一整个组合模块,规划出一套围绕着模块循环的动线。
还利用客厅、过道墙体之间形成的犄角旮旯,化零为整,做了超多储物空间,原先显窄的空间也更加通透。
改造要点
屋主诉求:想要一个功能强大的玄关。 解决办法:入户门对面增加一处鞋柜,与餐厅岛台结合起来,既节省空间又很好的划分区域,起到了玄关的半遮挡作用。
屋主诉求:通往主卧与次卧的走廊空间有点浪费,想要利用起来。 解决办法:将主卧、次卧以及走廊,整合成一个独立套房,走廊的墙体朝客厅方向推移,两边相互借用一部分面积做柜体,优化储物空间。
屋主诉求:阳台不想用于洗衣晾晒。 解决办法:拆除阳台移门,将阳台改成休闲区,洗衣区被移到了原次卫干区。

无玄关,门与客厅之间打隔断

这个家并没有玄关,屋主不想外卖小哥送个餐都能把客厅一眼望穿。于是设计师在入户门正对面做了一个的鞋柜+顶部下挂的半隔断,将眼前的视线掩去了一大半。
入户地面保持不变,其他区域抬高,通过嵌入实木板划分两个功能区,这样日常换鞋也不怕落灰。

进门一侧的墙上定制柜体,提高玄关的收纳容量。

以岛台为中心的,叠加功能模块

从玄关进入室内后,首先是餐厨区,由于受户型尺寸所限,玄关鞋柜和岛台、餐厅被整合成了一个功能模块。

将岛台单拎出来设置在鞋柜对面,方便进门后简单的洗漱,以无尘的状态回家,屋主也可以直接进入厨房备餐。

整个餐厨区采用岛台为中心,嵌入式电器柜贴墙做的方式来节省空间。

岛台尺寸
白色的柜体保持于墙面齐平,材料是纯色的防火板,比较环保,规避现场涂装的气味问题。
岛台、柜体的尺寸都把握的刚刚好,岛台的周围过道能留出1米以上舒适宽度,不阻碍行走。

岛台下挂的半隔断底部还暗藏了线灯,便于照亮整个台面。

厨房原来的空间很局促,把岛台和电器柜设置在外面,这里也就彻底解放了。

厨房尺寸
设计师将拿、切、洗、炒四部从左向右排布,呈U型布局,根据下厨动线来设置橱柜,方便屋主的日常使用,最大化的利用空间。

岛台的右侧衔接了迷你餐厅,餐桌被定义为功能性长桌,可供主人办公和聚会。

整个餐厨合一后,既能满足屋主爱烘焙,偶尔招待客人的功能,也保证了空间的通透性与互动性。

小体量家具,扬长避“窄”

由于整个公共区域面宽比标准尺寸窄,不想让家具的体量感给空间添堵,餐桌、置物架、灯具等物件都选择了偏TBL风格的款式(Tiny black line,即轻薄现代的铁艺家具)。

客厅与餐厅之间,靠墙设置了置物架和杂志架,用来展示一些屋主收集的日本生活方式的杂志,刚好也起到划分空间的功效。

出墙10cm的杂志架,收纳不是主要目的,只为了在装饰白墙的同时,为空间带来比较轻盈的感受。

天花除了空调口处,尽量保留层高不做厚吊灯,主灯也省去,用筒灯代替。

为了保证光效,墙上还加了可调节角度的长臂壁灯。

沙发区想要进一步提升家庭的氛围感,特意选了Togo懒人沙发+三人沙发的组合,既能成围合式布局,Togo的宽度也不显拥挤。

原电视背景墙进行了拆除重做,向外推移60公分左右,两边相互借用一部分面积,定做了储物空间,朝客厅的正面,因为想要弱化电视的存在感,右侧墙面留白。

左侧墙体利用墙角定做了一个480mmx1320mm的吊柜,客厅需要收纳的物品都被放在里面。

吊柜尺寸

吊柜底下还设计了电子壁炉,围着壁炉看书闲聊,更有家的温度。

休憩又储物,角色多元

为了让房间中部释放尽可能多的采光,原阳台推拉门被拆除,阳台与客厅合为一体形成通体明亮的空间,视野更佳。

屋主对阳台的需求更倾向于休闲,洗衣机烘干机的位置调整到原次卫干区。阳台左侧定做了一个卡座,相对摆放了一张藤编躺椅。

卡座尺寸

对面一整墙定制了阳台柜,做了上下水,能瞬间开启咖啡角模式,让空间使用更多元化。

走廊外扩,增加储物空间

主卧套间整合了主卧、一间次卧、主卫以及中间的走廊空间,次卧被改成衣帽间,走廊向客厅方向推移的墙体,设计了两组储物柜。

屋主受在日本生活多年的影响,主卧睡眠区地面进一步抬高,特意选择了矮床,降低居住重心。

床头出墙10公分做了一个长壁龛,顺势加了灯带,为睡眠环境制造易于放松的氛围。屋主睡前有看书的习惯,设计师在墙上加了杂志架,摆放几本读物,给空间增加了些细节。

与主卧相连的房间,被改造成了衣帽间,装修时做了整墙的衣柜,第一眼看过去跟白墙没什么区别,内部上面是挂衣区,下面搭配了拉篮。除此之外,还布置了梳妆台与穿衣镜,将女主人的所需补充齐全。

定制储物柜,增加收纳功能

次卧整体也采用浅灰调,比较静谧温馨,装修时定制了一个进深65cm的衣柜,用来放置过季的衣物和床品再合适不过。

三开间分离,配备双台盆

主卫采取了三开间分离模式,做到尽量向日式生活习惯靠拢,装下镜面双台盆洗漱区、如厕区与淋浴区,龙头、淋浴都采用了入墙式,显的更简洁。
墙面水磨石从地面铺贴至腰线处,方便日常清洁,视觉效果也有了层次的丰富与变化。

餐厨区右侧连通次卧和客卫的入口,利用墙面夹角,塞下洗衣机和烘干机。客卫利用钻石形淋浴房进行干湿分离,让日常使用更便利。

买房,户型不可能十全十美,
有时候其实也就是加一堵墙的事情,
最后祝你们都能把家改成最理想的户型。
福利来了
本周六(3月14日)下午3点, 在家✖️造作特惠直播 众多热门单品史上最低价!!!

微信ID:TrendsZaijia006
微信ID:TrendsZaijia010
后台回复“转载”,获取转载须知
编辑/Cimon 图片/设计师傅阳
图片版权归屋主所有,严禁盗图,违者必究!