●●● 1 ● ● ●
深圳有两个顶豪现在风头正盛,一个是深圳湾一号,还有一个就是今天介绍的这个。
2月22日,消弭多日的地产圈,被一则深圳千万豪宅抢购信息刷屏。

据说推出230-800㎡4个户型,共计146套公寓。半小时内认购69套,总价超过1亿的500㎡户型,被认购多套;景观最好的400㎡被“秒光”;最小的230㎡户型仅剩2套价格稍高的高楼层;250㎡户型也剩余不多,短短几十分钟,涉及交易金额几十个亿。
以后请不要怀疑土豪们对豪宅需求,也不用怀疑中国人的购买力和对房地产过于悲观!
在楼市被限价、调控掩住咽喉的时代,千万级公寓豪宅热销也让华润瑞府一战成名。
神往已久,只是一直未能如愿。恰逢最近深圳出差,于是怀着朝圣的心态,去一睹芳容。
没想到这么难约,由于需要大额验资,这么大的金额把我卖了也不凑不齐,找了无数人。
没钱真痛苦,看个房都看不了。
●●● 2 ● ● ●
能称之为豪宅首先一定要贵,在这一方面华润瑞府名副其实。
单套总价2448w起,最高卖到1.2亿左右,均价15.8w,当然这里面包含2w/㎡的装修费。因为是公寓性质,需50%首付,装修费不能*款贷**签约交首期款时一次性付清,也就意味着业主要支付至少超过1500万以上装修费用。
加深圳房贷利率上浮10%,基本没有杠杆可讲,真的是“豪无人性”。
对高价只是豪宅基础条件之一,而资源占有度才是辨别豪宅真伪的核心要素。当然华润深圳湾瑞府多项资源占有,也是期热销的主要原因,毕竟以后很难有这么好的资源型产品了。
这个要从深圳湾的整体发展格局说起,在2007年,深圳虽然已经跻身中国经济排头兵,但深圳湾尚是一片滩涂之地,等待开发。
2009年深圳接过26届世界大运会会旗,深圳湾这个远近示意的待开发区域成为最佳选址。这也意味深圳湾进正式进踏上世界舞台,而区域主导建设运营的便是华润。
不得不说华润对深圳湾的建设开发,足以称得上城市开发范例。
在项目展厅中展示着华润置地前执行董事吴向东对“春笋”的寄语:
时间可以改变甚至消磨世间万物,包括人和建筑。但是专业的人打造的高品质的建筑,生命却可以很长久。我希望“春笋”就是这样的建筑,一个可以用“隽永”来形容的建筑。
他在采访中说的一句话我感触颇深,他说:
我们所有人一生中的职业生涯,一定是有高点和低点,但是这个项目,一定是我们职业生涯的高点。
看看就会知道,在全国一线城市的深圳,在这样绝佳的地块位置,才能整合全世界的优秀设计单位,建这么多漂亮的建筑,一定是职业生涯的高点。
虽然吴向东已经“另嫁”,但是深圳湾、瑞府都是吴时代的作品,这是一个值得同行仰慕的城市开发项目。
在逐步开放过程中华润并没有将住宅放在首位,而是借鉴香港地产商的开发思路,将配套和基础设施先行。组团式开发,长周期、自持性物业成为亮点。

区域建设一共分为两期,首期主要是深圳湾体育中心(“春茧”)和木棉花酒店。
2011年华润让一座孕育希望的“春茧”,成功见证了第26届世界大学生运动会的精彩赛事。

这也拉开深圳湾跃居世界舞台的序幕,借着“春茧”余波,华润开始经营打造深圳湾二期。而二期又分为南北两区,北区是悦府+酒店,南区包括中国华润大厦(春笋)、深圳湾万象城、华润深圳湾瑞府,另还有中国华润大厦艺术中心、华润金融大厦、悦府南区、安达仕酒店等多重商业组合。
可以发现在华润深圳湾这个建筑群中,基本上个体建筑都是地标,但是整体造型却丝毫不显突兀。
以华润总部大厦为例,就像吴向东所说的那样,“春笋”的设计建造突破很多现阶段大家对写字楼的认知。

斜交网格和密柱框架核心筒结构体系,将原本常规超高层建筑结构里的巨型柱,变成几十根更细、更密集的细柱,环绕在楼梯四周。
承重柱同墙体的高度重合,达到室内几乎“无柱”效果。给客户一个空白,接近无物的室内空间,让使用者尽情的勾画自己需要的空间结构,再不用因为一根柱子的突兀而感觉装修不便,平面使用效率和灵活性非常之高。

经过12年的耕植,深圳湾已经形成涵盖体育、酒店、住宅、办公等九大业态于一体的,是目前深圳能量密度最大的城市综合体之一。
●●● 3 ● ● ●
重点说的就是费尽心思找了很多关系才进入的瑞府。

雨中实拍,休息一下,换换手机姿势
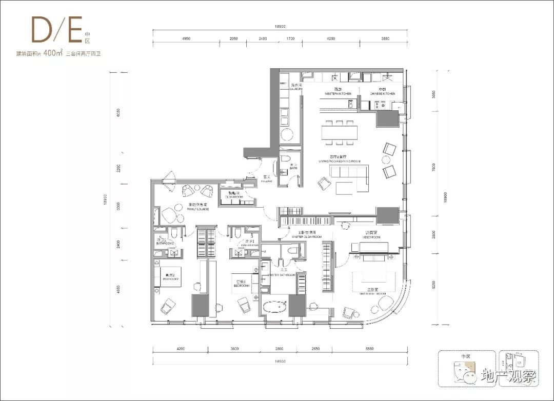
华润瑞府位于深圳湾南区,紧邻华润春笋总部大厦,是一栋59层高的商务公寓。项目总建筑面积12.9万平方米,建筑高度250米,分为地下5层,地上59层,一部分为酒店,可售部分是27-59层。
交通当然极好,楼下的万象城已开业,周边还汇聚了海岸城、保利文化广场等商业。

这就是公寓区的调高入户大堂,比较现代简洁,由于有安保在不让拍照,效果各位凑合看。

但是简洁并不意味着简单,比如公共部分走廊石材和灯光的结合,现场还是很漂亮的。
瑞府的核心就是无敌位置和景观:

一整面落地玻璃幕墙的采光面,加上楼层较高正,放眼望去全是风景。

站在窗户那里,可以看到整个深圳湾,天蓝水静之时还能遥望梧桐山。楼下是深圳人才公园,临河是塑胶跑道。
从户型图可以看到厨房、客厅、卧室处于同一平面,那么客厅可以观景,厨房、卧室自然也可以欣赏深圳湾美景。

这也是瑞府为仅有可拥有厨房观景的户型,中西式厨房设计,想来在这种环境下做饭也会变成一种享受。

相对于客厅和厨房180°平面观景,卧室就更加任性,因为处在拐角位置,享有270°近乎椭圆的景观,更宽阔视角去俯瞰深圳湾。

主卧卫生间双脸盆设计,整体风格、收纳、排水、用材、样式,只能说2w/㎡的装修费用标准可以随便做了。

虽然是大户型豪宅,但还是考虑到了收纳空间。
在深圳城市核心位置还能享受到独一无二的头排深圳湾滨海长廊的自然景观,推开窗满眼的无敌海景,这是深圳目前入住一线海景房为数不多的机会;
项目所处位置周边聚集着一大批独角兽企业总部。背靠着后海这片顶级商务区,定位为金融、商务办公、商业服务、公共设施为主的现代化总部基地,汇集了阿里巴巴、腾讯、百度等22个总部项目。
这些梦想造富机,提供大批身价不菲的塔尖阶层,也为华润瑞府的销售创造便利。
瑞府一共5个户型

左右滑动了解户型
户型都格外方正,全部直线条。这是由于这栋大楼是商务范,非板楼结构。
但是这就有一个弊端,户型基本都不够通透。
虽然有5个户型,但是只开放了一个精装样板间,就是最稀缺的400㎡D户型。位于楼栋东南角,是景观、朝向最好的户型,也是所有单价最贵的户型,21w/㎡起步,总价介于8200w-8800w。
这个户型设计的也很巧妙,两个次卧附近,加载一个家庭休息厅,同对面深圳湾一号有个户型很相似。
大门入口右侧有一道隐蔽的门,如果家里客厅正在当会客厅接待商务朋友,家人可以直接从右侧的隐形门进入次卧外面的家庭休息厅,这样就不会互相干扰。

家庭厅约有20㎡,足够家人短暂停留使用,样板房做成了一个交流区和音乐练习区,后期可以参照赋予不同功能。

项目相关单位公司
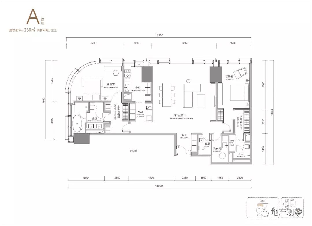
与400㎡相对的250㎡朝西B户型,也是最便宜的户型,单价10w/㎡左右。就是转个弯而已总价相差3000w+,很好的诠释了资源占有对房产价值的影响。
因为是超高层建筑,所以不用担心瑞府的视野问题,但是这个户型有个视觉硬伤,瑞府西向正对着悦府和春笋。
窗户十米开外正对着同样超高层建筑,夜晚的春笋灯光璀璨。
如果窗户紧挨着这个五彩斑斓的光源,晚上会不会有种蹦迪的既视感。
这个对视硬伤的*伤杀**力绝对非常大,不是便宜就能解决的,所以该户型的销量差强人意。
相比主卧的严重对视,土豪们宁愿选择朝向弱一点的户型,完全可以理解。
最小的230㎡的A户型,朝北直观的景象是春茧,虽说没有海景,但是视野也算开阔,最重要的是总价最低,介于2900-3500w之间,又没有对视硬伤,所以也很受欢迎。
虽然瑞府是公寓属性,但是该项目装备的有天然气,真正的价值价值在于稀缺。这和深圳传统豪宅深圳湾一号一样,是深圳为数不多为这座城市塔尖阶层准备的诚心“居所”,在这里无论是身份象征还是资源占有,完全可以胜任任何富豪在这个城市的终极居所。
当然,看一圈会发现,秒杀深圳湾一号没有任何问题,主要是景观资源的占有实在太绝佳了。
不限购不限贷的产品特性,也让很多外地富豪入住深圳顶豪提供机会。
无论是华润瑞府还是整个华润深圳湾,他们所代表都是时代典型产物。做出了让地产开发换发出不同的生命力的开发方式,这将是未来很多房企学习借鉴的方向。
往期回顾
这个特别的项目很不“万科”丨62岁售楼奶奶的营销秘决
这可能是最重视产品“设计感”的开发商!
我为什么劝亲戚年底这几天买房丨这是我见过最偏执狂的开发商团队!
面积大不一定是豪宅 丨 三个人的真实经历,道出了楼市现状