
郑州向来都不缺墨迹的楼盘,有些项目是慢工出细活,好饭不怕晚;而有些项目等着等着就凉了,要么临时售楼部关门,要么工地变成驾校、菜市场等,一直也不给大家一个准确的消息,就给你在那干耗。
如果近期不着急买房还好,可以多花点时间等等看,说不定就“诈尸”了呢;但是刚需就完全没有必要浪费自己的时间了。
今天二少给大家实地探盘的是同样墨迹了很久的项目——大正·水晶森林。项目备案名是大正鲲府,为什么现在叫水晶森林呢?按照开发商的解释就是:水晶代表着旁边的须水河,而森林就是社区内部45亩的森林公园。听完这个解释,大家脑海中有没有浮现出那种“我爱怎么叫就怎么叫,你能管得着吗?”的任性表情?
这个项目在2017年的时候先是传出7月份开盘,然后又表示到年底开盘,但是因为证件不齐全,一直拖到了现在。今天二少在他们的项目品鉴中心了解到:目前项目已经取得了三个证,预计到年底开盘。而项目一期的建筑规划证就在前两天已经出来,下面二少就详细的给大家介绍下这个来自许昌本土的任性开发商能给郑州带来什么样的作品。
01
项目一期的具体位置在冬青街和紫竹路交汇处西南角。


二少来到一期位置的第一感受就是这里的工厂真的是贼多!须水东路和紫竹路的两侧几乎都快被机械厂、食品厂、混凝土站等各色各样的工厂给占满了。


其中海底捞的底料加工厂(蜀海实业)就在项目斜对面,整条路都充满了浓浓的海底捞火锅味。如果对这个味道能忍受,那么玉兰西街和紫竹路交汇处的混凝土公司就有点难以接受了,整条路上那种大水泥罐车都在不停的来回穿梭,特吓人。
目前紫竹路东侧有不少底商,都是一些小饭馆和超市,以后不想做饭了可以叫上三五好友吃个大盘鸡、牛肉拉面什么的。
整体来说,项目周边的环境好像以科学大道为界,各种有味道、动静比较大的工厂大多集中在了南边,而北边相对来说住宅占比较多,居住环境相对更好。
02


项目一期共规划了12栋高层,3栋小高层和一个幼儿园,另外项目内部还有三大公园两大会所,这一直是他们所强调的。三大公园包括30000㎡立体森林艺术公园,4000㎡儿童艺术公园,3000㎡邻里艺术公园,两个会所包含会客厅和儿童会所。
社区内1#、2#、3#、4#、5#、9#为三梯六户,其余的是两梯四户。其中最大楼间距为113.7米,最小的为三栋18层小高层之间的30米。
产品共有89㎡小三室、99-125㎡三室,130㎡四室等五种户型,具体户型分布如下图所示。

交通

公共交通有地铁1号线和规划中的8号线,其中1号线最近的郑州大学站距离项目一期大概2.5公里,比较远。规划中的8号线距离项目一期最近的站点为轻工业学院站,大概1.3公里。
如果自驾的话有科学大道、西四环、绕城高速等,其中西四环正在修高架,后期通达全城比较方便。
商业
商业的话社区内部有两栋两层的商业楼,可以满足业主后期的生活需求;外边的话有上面说的紫竹路东侧的底商,平时可以吃个早餐、大盘鸡,大一点的商业中心可以蹭一下东边已经开业的万科广场。
学校
项目内部规划有一所幼儿园,旁边是公立中学,具体哪所学校还在沟通中。另外周边还有郑州第五十八中学、郑州长明中学、郑州高新区长椿路小学等。
环境

社区内有30000㎡立体森林艺术公园、4000㎡儿童艺术公园、3000㎡邻里艺术公园,另外次入口还有一个下沉式生活广场。西侧的话还有须水河以及滨河公园。
户型
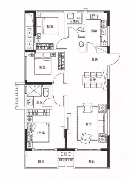
大正的户型整体设计一般,其中89平和98平的三开间朝南通透性较好,主卧阳台和客厅阳台连在了一起,这个如果后期鉴于隐私可以把中间隔起来。其中98的户型主卧比89平的多了一个衣帽间和卫生间,其他的都大差不差。
另外几个面积稍大的要么是一个卧室朝南,要么是最大的四室三间卧室都朝南,但是客厅上午的时候采光会差一些。具体户型图如下,

89平

98平

113平

125平

130平
周边项目对比
目前万科城在售的是七期,整体单价优惠下来大概是13400元多点,装修交付,78平的首付下来大概在32万多点,月供4551元。
华润悦景湾的单价下来大概不到12000元,毛坯交付,其中在售的为95平以上的户型,78平的预计近期加推,有兴趣可以关注下。
03
1、大正水晶森林的开发商是一家来自许昌本地的小开发商,实力在当地还算不错,但是到了郑州到底表现如何还需要时间检验,总之有风险,也有机遇。预计年底开盘,不着急买房的可以关注下。
2、项目周边的居住环境不敢恭维,工厂较多,后期紫竹路如果管理不当,肯定会拥堵不堪。如果对居住环境有较高要求的话,这个项目不太适合你。
3、交通方面有两条地铁线,1号线较远但勉强能享受到一丝便利,8号线距离较近,但是何时开通并不确定。
4、商业方面社区内有两栋两层的商业中心,满足日常生活不成问题;另外大一点的商业中心周边还有万科广场,里面吃喝玩乐一应俱全。
5、环境方面社区内有三个公园,其中最大的一个为45亩的森林公园,如果能落实,真的不失为项目一大亮点。另外西边的须水河治理的还不错,是一个散步的好去处。
6、教育方面一般,幼儿园、小学、中学等都有,但是小学和中学还不知道具体引进哪所。
7、项目签约的是金地物业,这一点算是加分项。另外项目外立面为玻璃幕墙,看着比较高端洋气。还是那句话,对于一个地市的小开发商,存在一定的风险,但是二少希望它能拿出诚意为郑州带来一个好的产品。