作者:威海新楼市团队 原创发布于公号:威海新楼市
威海本地专业的地产装修公号,分享对生活和创业的思考,在威海买房装修的大家伙都在关注!每天一篇原创文章,献给每一位爱威海的朋友,欢迎关注公号:威海新楼市。
大家在装修的过程中最想知道的事是什么呢?

我家在装修的时候也遇到过很多的问题,当时最好的了解方式莫过于参考一下邻居们的装修案例,实地对比会有很多的参考。
我们一直致力于给大家一些真实的,客观的,有参考意义的原创性内容,关于装修的内容我们也做过很多,比如户型的点评,装修的课堂,接下来我们会不定期的更新装修的案例和日记,和大家看过很多的区别在于:我们会提供从装修开始到结束每一部分的价格参考和材料参考,帮助大家了解的更加直观,而并不是简单的效果图展示。效果图通常是设计师的作品,有的非常漂亮,但是实际装修过程中会有比如超出预算,实际效果和效果图大相径庭等很多问题,而且很多外地业主朋友不知道在威海怎样去选择适合自己的建材和家具,另外就是价格差距太大,不一定适合自己。

如果您看完觉得有帮助,或者有什么更好的建议欢迎给我们留言。
本文是来自伴岛印象小区的一位业主朋友的装修案例,提供给大家作为参考和借鉴。

业主介绍:
潍坊人,在去年来到威海安家,幸福的一家三口,这套房子也是在威海的新家,所以对各方面的要求都会高一些。毕竟是用来自住的房子。预算在20万。
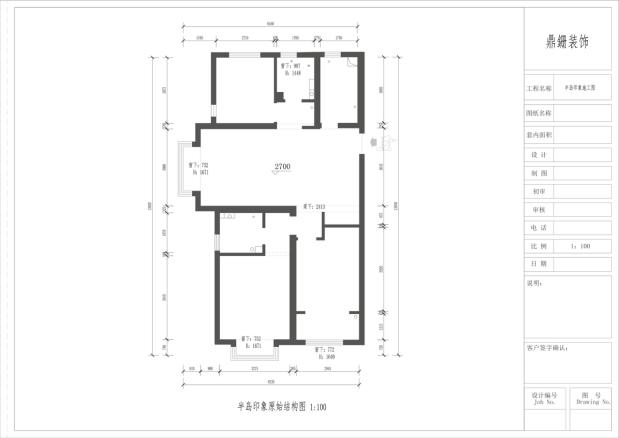
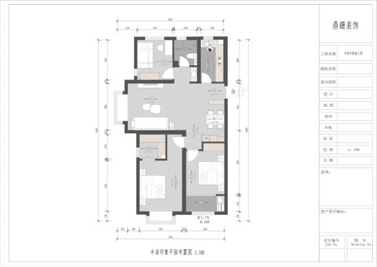
半岛印象3# 130平方
户型图

户型改造:主卧墙体拆除,砌筑。客厅墙体拆除,主卫墙体拆除,砌筑。

施工前业主有哪些问题:
业主是外地客户,对本地建材市场及装修市场并不了解,而且也没时间去对比。业主找到我之前对比了威海几家装饰公司,但都由于某种原因没有选择。本案例是个半托管案例,业主自购主材,我们负责基础装修。
对于装修的预算,当时也比较了多家装修公司,但是报价相对都较高,还是希望能在基础装修这部分合理的控制预算。





施工中遇到了什么问题?
整个施工过程业主因为时间安排原因,基本也没去过工地,中间也没有出现特殊情况,还是比较顺利的,找到靠谱的公司真的非常重要,对于我们业主而言无异是靠感觉在赌博,真的不容易。









施工后
基础施工完我们经常忽略了地固的涂刷,很多人有疑问,刷这个干什么,其实墙体界面和地固用处非常大,单一说地固把,他可以渗透到水泥里面,起到固化问题。有效的防治地面起砂等问题。








工程结束后入住效果













各个部分花费参考
硬装:基础装修4万4千元。
瓷砖:瓷砖用的是冠珠陶瓷,基本在17000元上下。
地板:地板用的飞美地板,基本在10000元上下。
壁纸:壁纸选用的艾仕壁纸,花了10000元上下。
厨房:厨房是志邦的整体厨房,13000元上下。
卫生间:卫生间整体1万元左右其中包含恒洁卫浴,及冠词陶瓷,恒洁淋浴房。
客厅:客厅花销比较多,大概总共4-5万,因为里面含有了家电、瓷砖、家具等等。
工期:装修整个工程时间前后用了四个半月,因为业主不着急住,没有对工期有特殊要求。很多朋友以为装修时间很短,两三个月就完事,真错了,我自己身边装修的(包括我)基本都在半年以上(包括家具家电的进场),真的是一件很熬人,很费神的事。
总花销:总共的花销在20多万,不到30万。主要是对一些主材的要求比较高。
业主装修感受
我是半岛印象3号楼1804业主,和朋友的房子(天鸽园)都是去年装修完的,朋友在外地,所以选择大包,从前期连设计到装修、采购都交给负责装修的王老板了,省时省力又省钱,有需要参考的朋友可以来我家看看。

