

本案设计师融合现代简约的几何图案及线条为设计元素,再根据户型及客户要求深入理解并提炼,用现代的符号将中式的神韵体现出来。
P1.项目背景
泰禾南京院子的别墅,“中而不古,新而不洋”,沿袭中国国学精神理念,恢弘而不张扬。88栋院子,每栋座院子都汇集了世界园林大师、古建名家及民间艺人的细究研磨,用精巧的建筑语言表达出中国人内敛、深邃、和谐的性格主张。

P2.项目解析
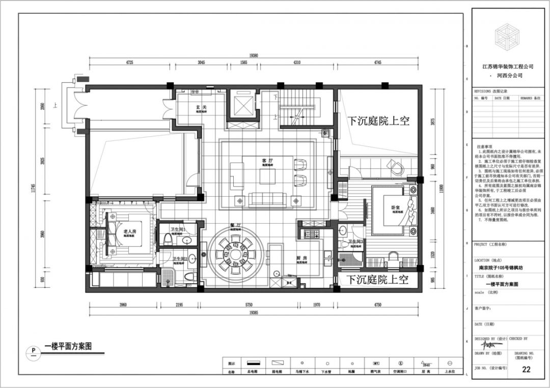
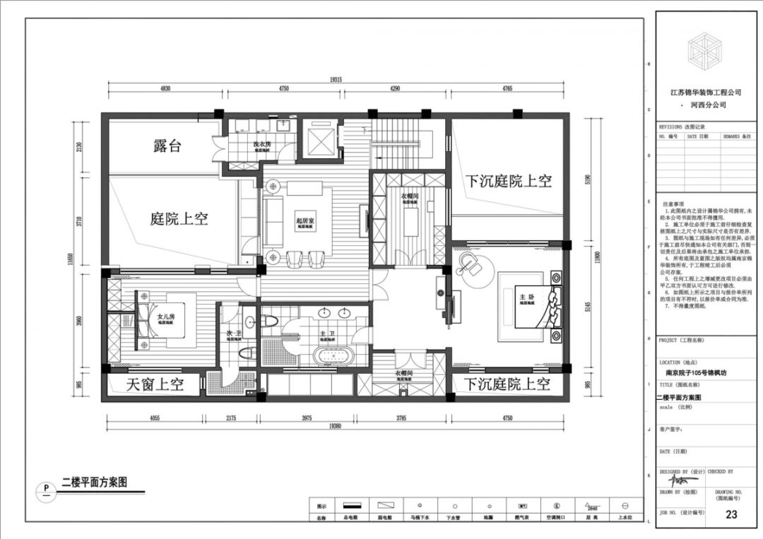
这套别墅的私宅设计项目,建筑总体规划为一楼,二楼与地下一楼,地下二楼成一户,整个单元独门独户,独自成为一体,格局方正,建筑结构上也十分工整。


▲ 分别为一楼、二楼的平面图
P3.案例赏析·空间美学
一楼客厅
客厅部分,将中国元素与现代设计结合在一起,选取经典的中国古典美学元素,平衡稳定的对称美,含蓄灵动的天然大理石背景墙,淡然大气的中国色,优雅华美的丝绸锦,完美融合了雕塑、绘画、色彩以及材料等,营造出情景交融的意境之美。


餐厅
餐厅的天花板富有层次感的设计简洁大方,给人耳目一新的美感。吊灯的设计既体现了中国传统文化的神韵,又具备了现代感的新理念,合适各个不同年龄段人的审美需求。柔和的光线,温暖的色调,给人以温馨,宁静的美好感觉。

二楼洽谈室
作为现代背景下的古典演绎,删繁去奢,绘事后素,以更简洁的手法体现出现代人的审美和潮流,通过取其神韵不摆其形的风雅意境,使得整个空间呈现出典雅又不乏时尚的特色。


茶室区
喝茶是一种心情,品茶确是一种心境,而心境是要环境来营造的。
每个人都渴望在忙碌纷杂的生活中为自己辟得一处安静的角落,滤去浮躁,回归本真,将最平淡的日子梳理成曼妙的风景。


书房
古韵古香的新中式书房,传递来自山林的清新气息。透露居者与世无争、恬淡静谧的内心向往。闲暇时光,琴音绕梁,煮茶论道。想象无限延伸,沉凝一派闲适自在。

影音室
影音室天花采用星空顶,墙壁做了声学处理,根据客户的需要,优选技术和产品,通过专业认证工程师的系统化定制和安装调试,优化为一个整体性能最佳的家庭影院系统。足不出户即可享受好莱坞影院级别的影音体验。

酒窖
“经典”与“品味”是一个永恒的话题,高品质的生活与居所是人们梦寐以求的目标。明与暗的呼应,光与影的呼应,色调与质感的呼应,使酒窖的美感如同音乐的旋律和节奏。


卧室
儿童房设计以粉色为主色调,小女孩们都钟爱粉丝系,在她们的心中,都藏着一颗粉色公主梦,粉色,向来给人的感觉就是充满了甜美、温柔和纯真。

主卧简单的色调幻化出一种朦胧美,仿佛空气中都流淌着着婉约与优雅,让人感到舒心安宁。与灰色调搭配散发着清新优雅的高级气质,给人一种素雅、淡然的独特视觉感受。


✥好设计找锦华,找锦华装放心的家✥