过完这个月,2017年就只剩2个月了
还记得你们年初定下的目标吗?
要做的事情行动了吗?
开始行动的已经完成了吗?
没完成的到哪一步了?

具体到泰州楼市
又有哪些新的动静呢
近期泰州市规划局公示了一批楼盘规划图
来看看吧

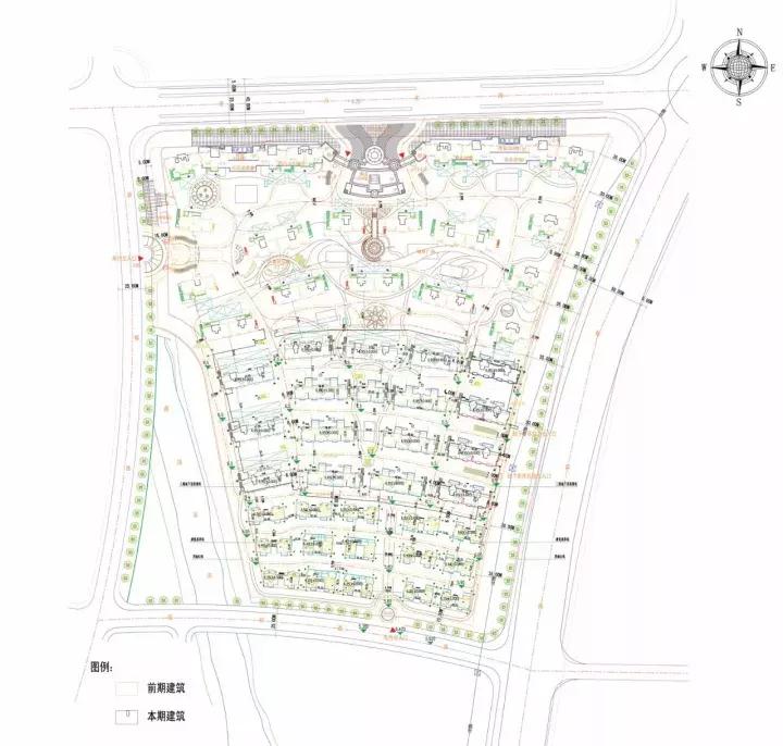
1、中铁溪源花园三期

批后公示(来源:泰州规划局)
※建设单位
中铁电气化局集团泰州投资置业有限公司
※项目名称
溪源花园三期1~17#楼、51~53#、55~61#、63#、65#、66#、68#、69#楼及地下室、1#配电房,补办公厕及2~6#配电房
※建设位置
兴泰南路西侧,济川东路南侧
※建设面积
160999㎡(其中地下80668㎡,公厕69㎡,阁楼1666㎡)
※建设工程规划许可证号
321200201700053
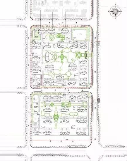
2、恒大华府

批前公示(来源:泰州规划局)

批前公示(来源:泰州规划局)
※项目位置
海陵南路西侧、黄河路南侧
3、中建•珑悦花园

批前公示(来源:泰州规划局)

批前公示(来源:泰州规划局)
※建设单位
泰州市中建楷昕房地产开发有限公司
※项目位置
通港路南侧、王莹河西侧
让我们共同期待吧
