一、壁挂锅炉的分类



国标代号(GB6932)
•第一、二个字母代表壁挂炉形式:“JL” 表示用于供热水和供暖, “JN” 表示用于供暖;
•第三个字母“G”代表壁挂炉强制给排气方式;
•第四、五个数字代表产品的输出功率:18 kW、24 kW、28 kW等;
•第六个字母代表产品外形及显示控制界面特点: “D”:数码电子式LCD(液晶和按键操作),“M”:机械式LED(旋钮操作);
•第七个字母代表产品结构特点:
“H”:单采暖
“S”:单换热器双功能(套管式)
“D”:带板换双功能(板换式)
•第八位代表气种(可省略);“T”代表天然气,“Y”代表液化气。

•JL:代表家用,热水和取暖两用炉
•G:代表安装方式为强制给排气
•24:代表输出功率为24kW
•D:代表数码电子LCD(液晶)
•D:代表板换式
•T:代表使用天然气
锅炉介绍
1.该锅炉是以提供生活热水优先、兼顾供暖的壁挂式燃气热水锅炉;
2.锅炉为密封式燃烧,排气方式为强制给排气,从而保证锅炉的燃烧完全与室内环境隔绝,确保了使用的安全性;



套管式和板换式的区别
套管式换热器即管中管换热器,生活热水套管被嵌套在主热交换器内,生活热水的优先运行靠泵的起停来控制,当生活热水运行时水泵停止工作,通过主换热器内一次高温水加热套管内的生活热水。
板换式是通过一个板式热交换器来进行加热生活热水,生活热水的优先运行由电动三通阀来完成,当有生活热水需求时,电动三通阀将主换热器内的一次高温水导入板换内加热生活热水。
套管机一般被称为经济型机型,板换机被称为舒适机型
二、锅炉主要零部件介绍

壁挂炉主要零配件
1、控制器:用于控制和协调整个壁挂炉各个部件的运行。接收壁挂炉内各相关检测部件传送过来的电信号,然后,发出指令使相应部件进行动作。

2、水泵:采用德国威乐或丹麦格兰富三速可调静音水泵,独特的陶瓷泵轴能有效的减少抱死率,为供暖系统的强制循环提供强劲动力,并保证一定范围的流量。

3、比例阀:按比例调节燃气供给,从而控制燃烧火焰的大小(壁挂炉功率的大小),起到调节水温的目的。具有双重电磁阀,壁挂炉出现任何故障时,阀体自动关闭。

4、风机:为壁挂炉正常运行提供给排气所需动力,保证一定范围的风量。主要指标:功率、风压、流量,噪音,耐高温寿命。

5.热交换器:*管双**热交换器,双通道换热器,水路采用无氧铜材料,对水质无污染,椭圆管外串换热翅片使得换热面积大大增加,提高了换热效率。主要指标:材质,工艺,功率。

6、燃烧器:采用大气式不锈钢制燃烧器,配合电子比例燃气阀精确的自动匹配热输出量,满足中央供暖和家用生活用水需求,无需作负荷调节,保证火焰燃烧充分、完全。氮氧化合物排放量小于欧洲标准。

7、膨胀水箱:意大利ZKILMET(卓尔美特)吸收供暖系统因水温升高体积膨胀而增加的水量,降温时又能稳定系统的压力,保持系统压力稳定。

8、空气压差开关:是一个确保锅炉正常运行的安全保护装置,当风机意外停转、转速降低或给排气管路堵塞引起排气量不足或无法排气,锅炉将自动停止运行;
原理:当风机正常工作时,在空气压差开关薄膜两侧产生不同的压力,从而接通微动开关,保证锅炉正常工作;

9、水流量传感器:主要功能是向控制系统传输热水需求的信号,以便决定锅炉的工作状态;并且根据水流的变化反馈到控制器,控制电路相应的调整火焰功率,确保生活热水温度的恒定;
原理:进入的冷水冲击水流开关的叶轮,使叶轮旋转产生相应大小的信号传输给控制系统,使锅炉能够根据水流量的大小相应调整火焰;水流开关要求的最小流量:2.5升/分钟。

10、安全阀:防止供暖系统超过限制工作压力而可能会导致不安全运行的情况发生,通过泄压限制最高工作压力。

11、极限温度控制器:当锅炉由于不正常的工作导致热交换器内部温度超过88℃,燃气阀关闭,锅炉停止工作。

12、水压开关:保证系统运行的最低压力的装置;正常情况下,当系统初始压力达到0.6-1bar,水压开关才能感测到信号,锅炉才能正常启动和运行,从而始终保证锅炉处于有压有水的运行状态。

13、点火感应针:点火兼检测火焰信号的功能,检测火焰的目的是为了防止残火和不完全燃烧,以保障机器安全可靠的运行。

14、压力表:显示采暖系统水压力,并提示正常工作压力范围。压力表蓝色示数为系统正常压力值(1.0bar-1.5bar);红色示数为系统水低压区间(0-0.5bar),系统水压过低会导致机器不启动,只有当压力大于0.3bar时壁挂炉才启动;黑色示数为系统水高压区间(1.6-4.0bar),当压力表示数为3bar时,安全阀自动排水泻压,以保护管路系统 。

15、同轴平衡烟道:用于从室外吸入新鲜空气,并将燃烧后的废气排出室外。平衡式燃具是一个封闭系统,燃烧器燃烧所需要的空气全部从室外吸入,燃烧产物排放到室外大气中去。同轴平衡烟道的吸、排气筒为一同心套筒,外层套管吸入室外空气,内管排放烟气。燃具工作时依靠炉内浮力(抽力)吸入室外空气,而炉内静压力状况不受室外风力影响,因为当风吹到外墙上的空气吸入口时,同样也吹到烟气排除口上,两者所受压强相同,所以炉内压力不会变化。这也是被称为平衡型的缘故。同时,排出的烟气可以将新鲜空气预热,提高壁挂炉热效率。

三、17项安全保护措施
1、防冻保护功能
当系统水温低于8度以下时,循环水泵自动运行;当水温低于6度时,控制系统强制点火并以最小功率燃烧,直至水温升至30度时,防冻功能停止。
2、水泵防卡死功能
当供暖系统处于待机时,水泵每隔21小时自动运行一分钟,有效防止水路堵塞,水泵卡死。
3、水路过压安全保护功能
当供暖系统水压升至0.3Mpa时,安全阀自动泄压;当循环水压升至0.85Mpa时,旁通阀旁通自动泄压。
4、水温传感器失效保护功能
当供暖或生活热水的温度传感器故障时能自动停止燃烧,并显示故障代码。
5、主回路流量监控功能
当主回路流量太小或循环意外停止时控制器能自动关闭系统,防止系统过热或干烧造成危险隐患。
6、微负压燃烧防泄漏
抽风式结构,燃烧室处于负压状态,防止烟气泄漏。
7、强制平衡给排气
燃烧后产生的烟气由内层烟管强制排放到室外,燃烧所需要的空气从外层烟管进入炉腔,与室内完全隔绝,并可二次吸收烟气的部分热量。
8、防干扰保护功能
有效防止外界和内部脉冲点火装置产生的15KV高压导致控制系统死机;防止电压不稳给控制系统造成的不稳定。
9、风压保护功能
当风机发生故障或烟道堵塞等问题引起风压过大时,燃烧自动停止。
10、熄火保护功能
采暖炉意外熄火时,燃气比例阀自动关闭。
11、超温保护功能
水温升高到保护温度时,系统关闭燃气比例阀,并立即停止工作。
12、系统水路旁通保护功能
当系统主回路故障引起系统循环水压力过大时,旁通阀自动打开,保护系统及水泵。
13、防过热保护
当采暖系统水压不足或管道堵塞时,水温急剧上升,在出现危险前,采暖炉自动停止工作。
14、预排风防爆燃
点火前,风机预先将炉腔内的残留气体排出,防止点火时爆燃。
15、后清扫功能
燃烧结束后风机仍然工作十几秒钟,彻底排尽炉腔内的残留气体,防止废气倒流入室内。
16、防气塞保护
自动排放采暖系统内寄存的空气,防止循环水泵出现抱死现象。
17、来电自动复位功能
当电路断电时,采暖炉会停止工作;电源接通时,自动恢复到原来的正常工作状态。
四、锅炉的安装规程
•安装人员资质:必须由具有安装资质的公司进行安装,安装前请再次确认你使用的燃气与本机铭牌所规定的类型相同;
•管道气:使用管道气的用户,要请燃气公司或者管理部门驳接适合本机功率的燃气管
•安装主体到周围墙壁的距离大于规定距离,上方不得有可燃物、电器设备、燃气管道和明线;下方不得有燃气灶等燃烧器具。
•安装墙壁应是不可燃材料,如果是可燃或难燃材料时,应采用隔热板隔热保护。

1、管路系统的安装
•供暖管路的连接:水压实验(*压打**0.5MPa,稳压5分钟无泄露)
•泄水管的连接:一般情况下无须连接)
•生活热水管路的连接
•燃气管路的连接

2、电路连接
•电源:220V-50Hz
•零线、火线、地线的正确连接

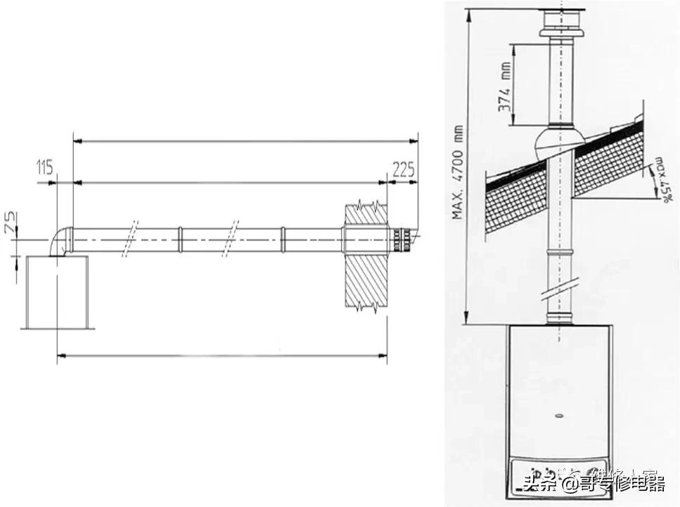
3、烟囱的安装(分离式和同轴式)






五、锅炉试运行与调节
注意:第一次使用时,必须对取暖回路注水(本操作有技术员操作);
1.打开散热器上的放气阀(跑风)。
2.逆时针旋转打开补水阀,直到散热器放气阀有水流出时关闭阀,当水压升到1bar-1.5bar时顺时针关闭补水阀;
3.接通电源,按下“开关”键,启动取暖回路,再次打开散热器上的放气阀排放空气;
4.由于系统内有空气,开始运行要多次排气,多次补水,直到系统水压稳定在1-1.5bar之间,否则会导致泵和散热器产生噪音;

锅炉的调试(必须由专业技术人员操作)
•按下“RESET”和“WIN/SUM” 组合键时, 进入功率设置状态。
•在功率设置状态下,按“WARM_UP”或“WARM_DOWN”键,可以调节当前功率值,按“RESET”键切换功率设置状态,按“ON/OFF”退出功率设置状态。
•正常工作状态下,同时按下“RESET”和“WIN/SUM” 组合键, 进入最小功率设置状态。此时温度显示位置的两个七段数码管显示当前最小功率对应的代码值(电流值=代码值*2.5),预设采暖模式位置的两个七段数码管显示“PL”,表示当前为最小功率设置状态。
•在最小功率设置状态下,按下“RESET”键, 进入最大卫浴功率设置状态。此时温度显示位置的两个七段数码管显示当前最大卫浴功率对应的代码值(电流值=代码值*2.5),预设采暖模式位置的两个七段数码管显示“PH”,表示当前为最大卫浴功率设置状态。
•在最大卫浴功率设置状态下,按下“RESET”键, 进入最大供暖功率设置状态。此时温度显示位置的两个七段数码管显示当前最大供暖功率对应的代码值(电流值=代码值*2.5),预设采暖模式位置的两个七段数码管显示“dH”,表示当前为最大供暖功率设置状态。
•功率设置完成后,按“ON/OFF”退出功率设置状态。
锅炉的操作
•1、启动前请确保取暖回路水压为1-1.5bar水压;

用户启动




六、锅炉的维护和保养
•对锅炉应定期进行检查(每年进行一次例行检查)
•1、检查系统水压是否正常(1-1.5bar)(对此项检查用户可随时进行)
•2、检查锅炉的各控制和安全装置是否正常
•3、检查并清洁燃烧器与热交换器
•4、检查膨胀水箱是否正常无泄露
•5、检查锅炉的水、气连接处及系统是否有泄露现象
•6、检查排烟系统是否通畅以及密封性是否良好
•7、检查点火电极与检测电极位置是否正常
•8、检查循环泵运转是否自如
•9、检查燃气压力和流量是否正常
•10、检查各温度调节旋钮是否正常
七、故障分析、判断

•1、每次进行故障分析判断时,应首先进行以下步骤:
•检查系统情况(供暖、热水系统)
•检查燃气情况
•检查锅炉供电情况
•检查锅炉排烟情况
故障代码

采暖工作流程

卫浴工作流程

八、供暖系统的介绍
根据外部散热设备的不同,采暖系统可分为:暖气片采暖形式、地板辐射采暖形式和风机盘管采暖形式
1、暖气片采暖形式系统
•暖气片采暖系统是最普通也是用得最多的一种,由于壁挂炉循环水泵的扬程有限,所以采暖系统尽量减少阻力。不宜采用单管系统


2、地板辐射采暖形式系统
•地板辐射采暖在地面下埋设低温热水管道,利用管道中的低温热水产生热辐射,均匀加热整个地面,再继续向上传热,从而达到采暖的目的。

3、风机盘管采暖形式系统

4、锅炉耗气量的理论计算
•供暖耗气量的计算
•术语:q--单位面积的热负荷 (kal/m2) ;
• A--供暖面积(m2);
• Qdw--燃气的低位发热值(kal/m3) ;
• G--耗气量(m3/h);
• η--锅炉的热效率(%);
•t--供暖时间(h);
•耗气量G=q*A*t/Qdw*η
•锅炉的耗气量还应取决于以下因素:
•供暖是一个不连续的过程
•房间的保温情况
•锅炉设定的供暖出水温度