从事金融行业的王先生沉稳、开朗、健谈,属于传统又相对开放的80后,追求传统与现代的完美碰撞,能将陈旧、烦琐化为简洁、明快的新中式,是他想在结束多年北漂生活后拥有的“第一个家”的样子。

房屋信息
小区名称/房屋位置:北京市丰台区鹏润家园豪苑
面积:150平米
户型:三居室
风格:现代新中式

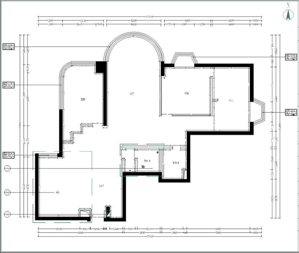
原始户型图

改造后户型图
装修需求: 美观大气,简洁明快;空间具有实用性;超大储物空间。
装修亮点: 餐厨一体化设计,客厅(隐形门)背景墙设计,吊顶造型。
玄关

玄关
玄关处定制入户收纳空间,方便进出存取钥匙、背包、鞋服等;借用厨房墙体打造镜面墙,除了强调穿衣镜基础作用,还能增强空间开阔感。
客厅

客厅
客厅电视墙与吧台为延伸偏对称放置,电视与沙发中心线对齐,隐形门处理让整个客厅更显完整,彰显优雅大气。

沙发背景墙和顶面采用法式石膏花线造型涂刷孔雀蓝墙漆,摒弃传统吊顶造型,增加空间层次感。

充分挖掘客厅死角空间,对其有效利用,融合拐角嵌入式书柜设计,契合业主“藏书爱好”,还可令整个空间布局更为合理,居家生活更惬意。
餐厨一体化设计

餐厨一体化设计
开放式厨房与餐厅空间相通透,在打破传统封闭式格局的同时,还可增加室内采光度,扩大空间感,令整体通透敞亮。

餐厨一体化设计
餐区面积较大,利用屏风一分为二,开辟一处半开放式茶室,方便业主以茶会友会客。
卧室

卧室
“储物”为主,“展示”辅助的顶天立地柜营造简洁干净的居室环境。

无主灯设计、床头简约吊灯调节室内氛围感,打造温馨浪漫的格调。
卫生间

卫生间
客卫采取干湿分区,相关家庭成员洗漱、如厕、洗澡互不干扰。

卫生间
主卫增加浴缸泡澡和独立淋浴区,利用原立管区域增加壁龛放置洗漱用品。
设计师信息
姓名:王婷
从业年限:8年
设计师职称:首席设计师
擅长风格:极简、现代简约、简法、新中式、轻奢
设计理念:设计是一种感受、一种心态、一种舒适的、开心的生活方式!
项目经理信息
姓名:王博爱
工作年限:20年
擅长工艺:木工、瓦工、油工
施工理念:用心做好每个项目,配合设计师落地。