简单的装修丰富的颜色现代感十足的现代简约风格再次来袭
——都市名园180平方米现代风格中大户型
现代简约风格为什么深受现在年轻人的喜爱,简约但不简单的装修,丰富亮色的颜色,再加上现代时尚的设计元素,当然深受年轻人的喜爱。今天创艺装饰便为大家介绍一款现代简约风格的装修案例,感受现代感的魅力。
设计案例:都市名园180平方米现代风格中大户型
风格:现代简约
户型:中大户型
设计符号:经典格调,缔造生活品位
盘龙区设计师:范晓宁定制家具设计师:许金平软装设计师:汤春燕
使用家具:萨米特地砖、拜尔地板、鹰卫浴。
健威哥德堡:茶几、地柜、沙发;城市之窗木廊地:餐桌餐椅
仁豪梦之楠:主卧次卧床;金天拓茉莉花香儿童系列:儿童房
星宇达邦和美加美:灯具
设计说明:
现代简约风格的亮点主要在3方面,功能、色彩、装饰,现代简约风格线条优美,功能齐全,注重实用性。同时在色彩方面,现代简约风格色彩丰富,大量亮色系的颜色运用在一起,形成强烈的色彩对比。在点滴的细节中都能发现色彩的不同。还有就是装饰物的点缀,使用金属装饰品给人一种时尚不受拘束的感觉。
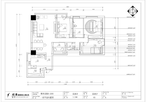
平面效果图:

昆明创艺装饰装修效果图
本案例为三室两厅一厨两卫格局,同时根据业主的喜好,还划分出一个区域为书房。整个房间布局合理,进门过玄关便是厨房、接下来就是餐厅、客厅,另一面则是书房、次卧、卫生间、最里面是主卧和儿童房。
客厅装修效果图

昆明创艺装饰装修效果图
客厅线条优美、金色的镶边线条装饰着洁白的墙面,中性的乳胶漆奠定了客厅的基本色调,灰色的布艺沙发、水墨色的地毯,显示低调与内涵,黄色、银色的抱枕、白色的茶几等明亮的家具与之形成强烈的颜色对比,形成了视觉冲击。

昆明创艺装饰装修效果图
靛蓝色的背景墙上有几条金色边框做点缀,健威哥德堡的电视组合柜,既时尚又美观,同时还增加了客厅的收纳空间,可谓是一举两得。

昆明创艺装饰装修效果图
案例采用客餐厅连通设计,虽然没有明显的区域划分,但是一块地毯在视觉上将两个功能区域分开,一半餐厅一半客厅。
餐厅装修效果图

昆明创艺装饰装修效果图
餐厅与厨房一墙之隔,从厨房做好的美食端出来就可以送上餐桌。餐桌和餐椅都选择城市之窗木廊地,让业主可以舒适的就餐。桌上的小黄花点缀着整个餐桌,一个小摆件便将整个餐厅增添了些许色彩。
创艺装饰作为昆明21年本土知名家装品牌,中国优秀家装企业,服务过十几万家客户,积累了丰富的设计、施工、管理经验,让您省时省心省力,更省钱。
创艺装饰为您提供,0元报价、0元设计、0元量房服务!
省心新整装、新年送大礼,八重好礼送给你!
预约咨询热线:0871-65656588
创艺装饰网站:http://www.yncy1997.com/
创艺装饰幸福家装、幸福价!为您提供超高性价比的一站式家居装修解决方案。

扫码领取500元装修优惠券