乌当区的小镇时代,眼看就在提速。
地铁康养小镇,3号线“轨道+”的概念,噱头已经十足,而且紧邻首席国际范的医院配套,操盘也浮出水面。偏坡原味小镇,其背后的本土商业运营加入,也是很有看点。
先来看近期公示的东风医养健康小镇项目,紧邻3号线东风镇站。今年5月,这块地由贵阳弘颐康养老产业投资有限公司以约5.86亿元竞得。
这家公司有着市区两级的国资背景,同时贵州宏能投资公司有参股,后者曾经是乐湾国际城项目的主要股东。

当时拿的G(19)018、019号2宗商住、商业用地,位于乌当区东风镇乌当村,总出让面积约7.09万方,同时也是贵阳市首次提出自持要求的土地。
其中,G(19)018号地块要求竞得人将15%的建筑面积留存为自持房产(不对市场销售产权),且自持年限不低于10年;要求项目住宅部分应按照建筑规模不少于15%使用装配式建筑。

项目地块区位
项目临近贵黔国际总医院,黄金周后,这所医院也会正式运营。
医院的投资方,同时控股地块的开发企业。所以这个康养的盘,已经不仅是很大,而且内容也很实在。项目案名近期也已经露出。
周边开发有乐湾国际城大型住区,还有乐湾国际实验学校、东风中学、乌当小学。
此外,近日“原味小镇·醉美偏坡”建设项目—布依摆集招标公告。
偏坡布依族乡位于贵阳市东北面,距贵阳市中心30公里、区行政中心所在地20公里,东南面与黔南州龙里县醒狮镇接壤,西邻东风镇,北连下坝镇。

本土的商业管理,也参与到小镇的运营。
2018年11月,贵阳星力百货集团有限公司与贵阳市乌当区五彩生态农业发展投资公司完成签约。这也意味着星力集团首个文旅项目正式落地。
星力集团将积极发挥省内零售业龙头企业的优势,依托偏坡项目主体,以布依文化为主题,全力打造具有世界级视野的民族风情休闲娱乐度假村。
集体验式商业街、精品民宿酒店、特色美食、民族文化休闲、体验与服务等业态于一体。
重点突显旅游商品的“原汁原味”,以满足游客体验原生态民风民俗的需求,为推动贵阳市旅游全面助力。

偏坡原味小镇
近期消息显示,贵州星力集团参与田园综合体建设,建造一期工程,星奇小镇、星光浴场等项目正在筹备推进中。
近期系列项目公示中,更叫好的,可能还属“乌当老年大学”的项目公示。
以往经验来看,老年大学,其热度丝毫不逊于名牌中小学。超额报名,在线抢报都有过前例。
优质教育配套的引入,区域性教育资源的丰富,老年生源得以就近划片入读,也将会助益晚年的学习、生活。
以学校所处的区位来看,为了提升上学的便捷性,还要持续完善公共交通。不过,目测周边的小区,已经会先升格为“老年学区房”。
/以下是详细内容/
紧邻3号线!乌当区东风康养项目公示
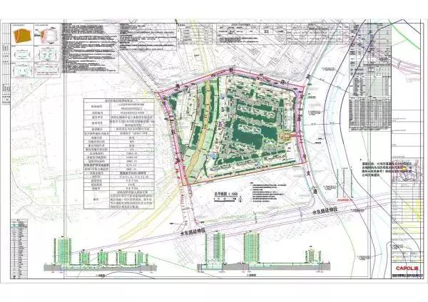
日前,市自然资源和规划局发布关于贵阳市乌当区东风医养健康小镇1-8b地块建设项目行政审批批前公示,乌当区3号线旁康养新项目部分规划曝光。
根据公示内容,东风医养健康小镇1-8b地块建设项目规划申报单位为贵阳弘颐康养老产业投资有限公司。

项目位于乌当区东风镇,总建筑面积192446.35平方米,其中计容建筑面积134134.25平方米。
其中商品住宅118245.93平方米、公建配套1138.14平方米、商业设施14750.18平方米,公建配套设施包括社区文化图书室、快递综合服务站(2栋、14栋首层)、文体活动室、便利店(2栋、3栋首层)等。

项目容积率2.09,建筑密度25.56%,绿地率30.47%,停车位1349个,建筑栋数18(含东、西区地下室),最高建筑高度76.25米,建筑最大层数23层,总户数1119户,总停车位1349个,全部为室内平面车位。


项目18栋楼中,14栋自持住宅面积13530.17平方米,14栋自持商业4718.64平方米,S1栋自持商业1740.04平方米,4栋自持住宅131.86平方米,自持总量20120.74平方米。

此外,项目9栋为公租房,面积4240.42平方米,10栋为局部公租房,面积1673.39平方米,公租房总面积5913.81平方米,户数为99户。

醉美偏坡!乌当区原味小镇建设推进
日前,市公共资源交易中心发布“原味小镇·醉美偏坡”建设项目-布依摆集招标公告。

招标公告,项目投资5000万元 ,工期240天。招标范围:“原味小镇·醉美偏坡”建设项目—布依摆集设计施工图、工程量清单、招标答疑及招标期间补充通知等所示的所有内容的施工直至竣工验收、整体移交、质量缺陷责任期内的缺陷修复等相关工作。
近日,乌当区住房城乡建设局消息,偏坡乡特色小城镇建设取得了可喜成效。
截止目前,偏坡乡特色小城镇完成投资5.28亿元,其中2018年完成投资3.95亿元,2019年完成投资1.33亿元。
现景区大门及停车场、观光采摘园、同心广场等项目已建设完成,10kv及以下电力改迁工程、农耕体验园项目正在有序建设中,预计2019年12月底完工。

“原味小镇·醉美偏坡”布依摆集

景区大门
偏坡乡于去年被列入贵阳市特色小城镇培育试点,项目将建成集旅游和休闲为一体的整体形象鲜明、产业结构优化、服务设施齐全、综合效益较高、产业带动力极强的乡村旅游和布依文化研习基地。
乌当区还将推动偏坡乡农业与旅游业融合发展,建设亲水生态休闲度假走廊和野风奇趣休闲观光走廊,发挥农业观光优势,开发经果林带,实现农业项目与旅游资源结合,促进旅游业发展。
乌当区老年大学效果图公示!
乌当区老年大学综合楼建设项目,由贵阳泉丰城市建设投资有限公司建设,本次公示的项目性质为综合楼。

乌当区新添寨温石路,项目土地使用权通过划拨取得。主要出让条件为,用地面积:5796㎡,可建设用地面积:5796㎡,计容建筑面积:8694㎡。
规划用地性质为行政办公用地,容积率≯2.0,建筑密度≯35%,建筑限高24米,绿地率≮35%。

总用地面积为5796㎡,可建设用地面积5796㎡,本次公示为老年大学综合楼项目整体,总建筑面积为11303㎡。


其中,计容建筑面积8694㎡,不计容建筑面积:2609平方米,建筑密度:31.2%,容积率:1.5,绿地率:35.06%,设置87个停车位,建筑高度:23.4米,建筑栋数:2栋。