生活是一种态度,在这信息高速运转的生活环境中,我们希望有一个让人感到非常悠闲的家,不需要费心费力的维护,每次的到来和离去都是一种Easy模式。新古典风格的这些元素也正好迎合了时下的文化资产者对生活方式的需求,即:有文化感、有贵气感,还不能缺乏自在感与情调感。
项目位置:河南郑州
装修户型:三室两厅
小区面积:140平方
装修风格:新古典
装修套餐:基础装修+个性化造型

▲电视背景墙

▲沙发背景墙

▲客厅全景

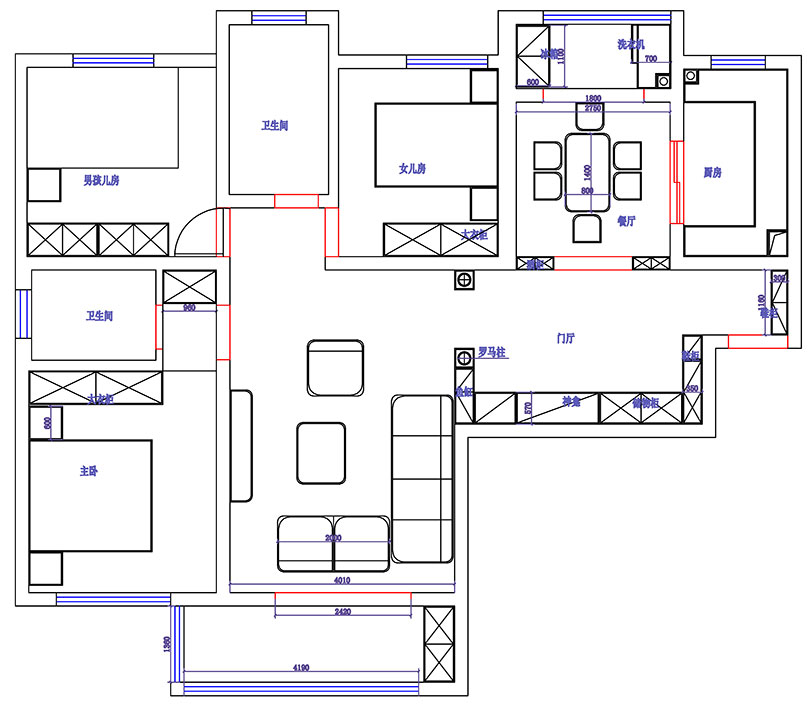
▲户型方案布局

▲餐厅

▲走廊
生活是一种态度,在这信息高速运转的生活环境中,我们希望有一个让人感到非常悠闲的家,不需要费心费力的维护,每次的到来和离去都是一种Easy模式。新古典风格的这些元素也正好迎合了时下的文化资产者对生活方式的需求,即:有文化感、有贵气感,还不能缺乏自在感与情调感。
项目位置:河南郑州
装修户型:三室两厅
小区面积:140平方
装修风格:新古典
装修套餐:基础装修+个性化造型

▲电视背景墙

▲沙发背景墙

▲客厅全景

▲户型方案布局

▲餐厅

▲走廊