6月1日,天府新区官方网站首次集中发布了成都九所学校的建筑项目规划。去年五月,成都九大名校的新校区宣布落户天府新区,其中2所计划2016年完工并投用,其他7所计划2017年完工并投用。
这些学校都修得怎么样了?跟着UP君来看看天府新区这些名校的修建情况如何了!

壹
机 关 第 三 幼 儿 园 天 府 校 区
机关第三幼儿园天府校区根据建设规划,总建筑面积为8165.97㎡。

▲ 机关三幼部分建设数据截图
机关三幼天府校区位于剑南大道以东,华府大道以南,距华阳欧尚不远处。从华府大道拐进去一眼就能看到颜色明快的幼儿园。

▲ 机关三幼总平图
周边楼盘有光明城市、慕和南道、海伦印象等。
贰
机 关 第 一 幼 儿 园 天 府 校 区
机关第一幼儿园天府校区根据规划,总建设面积为8143.85㎡。

▲ 机关一幼部分建设数据截图
机关一幼位于牧华路北侧,站华路旁。机关一幼和机关三幼的建设进度、办学规模、建筑风格都基本一致。幼儿园西侧是个菜地,东侧则是主体结构已完工的石笋街小学。

▲ 机关一幼总平面图
叁
成 都 师 范 附 属 小 学 天 府 校 区
从天府新区官方网站发布的成都九所学校的建筑项目规划,并没有包含石笋街小学天府校区,取而代之的是成都师范附属小学天府校区。根据规划,总建筑面积为21710.20㎡。

▲ 师范附小部分建设数据截图
它紧挨着机关一幼天府校区。位于华阳街道二江寺村四、五组。

▲ 师范附小建设规划总平图
属于这个范围的学区房主要有远大中央公园、佳兆业君汇上品、天府美岸、北辰南湖香麓和海伦春天。
肆
龙 江 路 小 学 天 府 校 区
龙江路小学天府校区根据规划,总建筑面积为23234.90㎡。

▲ 龙江路小学天府校区建设数据部分截图
该校区位于剑南大道以东,牧华路以南,沈阳路以北。学校地处天府新区锦江生态带,交通便利。学校即将于2017年9月正式开学。

▲ 龙江路小学天府校区总平面图
校区对面是华阳鹤林村安置房项目,旁边是万科翡翠公园,稍远处则有德商御府天骄、鑫苑鑫都汇等楼盘。
伍
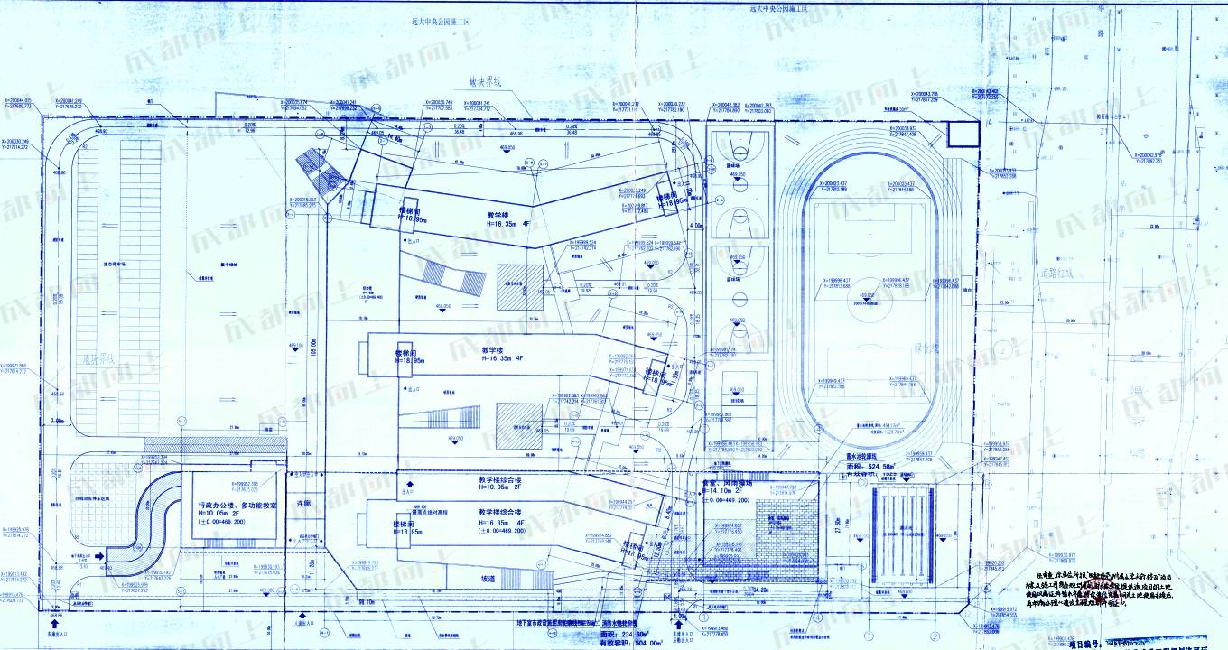
石 室 中 学 天 府 校 区
石室中学天府校区根据规划,总建筑面积为109577.59㎡,学校占地面积达178亩。

▲ 石室中学天府校区建设数据部分截图
学校位于天府大道宁波路西段,沈阳路以北。

▲ 石室中学天府校区总平图
陆
泡 桐 树 小 学 天 府 校 区
泡桐树小学天府校区根据规划,总建筑面积为25370.41㎡。

▲ 泡桐树小学天府校区建设数据部分截图
该校区位于天府中央公园以西,武汉路以南,秦皇寺中央商务区以北,校区占地46亩。

▲ 泡桐路小学天府校区总平面图
从天府大道一路往南走,往右进入宁波路不远就能看到一个超级大的工地现场,这个工地既包括了天府中央公园,又包括了泡桐树小学天府校区和天府七中。
柒
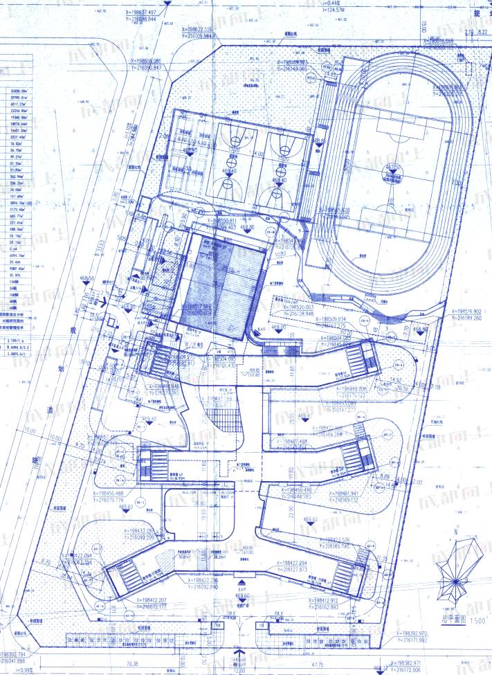
天 府 七 中
成都七中天府校区根据规划,总建筑面积为113965.62㎡。

▲ 成都七中部分建设数据截图
校区位于宁波西路以北,和泡桐树小学天府校区的工地连在一起。

▲ 成都七中天府校区总平图
捌
成 都 实 验 小 学 天 府 校 区
成都实验小学天府校区根据规划,总建筑面积为23129.61㎡。

▲ 成都实验小学天府校区部分建设数据截图
从规划图上看该建设位置位于南宁路东段以南。

▲ 成都实验小学天府校区总平面图
从 “ 成都科学城 ” 几个大字旁一路往东就能看到在建的校区。学校的主体建筑仍在建设中,四周是在建的项目、待开发的荒地、和杳无人迹的大路 …
玖
树 德 中 学 天 府 校 区
树德中学天府校区根据规划,总建筑面积为116870.89㎡,校区占地面积184.5亩。

▲ 树德中学天府校区部分建设数据截图
从规划图上看,该建设位置位于南宁路东段以南,广州路东段以北,梓州大道以西。

周边的道路和地块都在整理之中,触目所及都是土坡和弯弯绕绕的道路。
- END -
编辑:Tracy
美编:Amy
主编: Comet
图文来源:规划建设和城市管理局 / 成都向上 / 天府新区
商务合作 / 申请入向上微信群:请添加个人微信账号:Kanpta1205
谢谢!
本文章由成都向上团队原创,请勿擅自复制、转载;如需转载,可联系客服人员授权;如有抄袭,UP君将投诉到底,直至删除!