
今天和大家分享的是好好住APP认证设计师 涵瑜设计的作品。
这次的作品是一套双层小复式,结构方正,采光良好,但也存在小复式会遇到的空间零碎,面积狭小等问题,尤其是一层的客厅,楼梯间和书房分割了客厅本来就不大的面积,阳台的几扇推拉门更是拉低了客厅的采光效果。
针对这个问题,设计师打掉了原始书房的墙壁,拆掉了阳台原有的推拉门,改成了折叠门,客厅的视觉效果立即增大了20 ㎡!采光的优势更是凸显。你家阳台有推拉门吗?要不要改成折叠门试试?

About Room
户型 3 室
使用面积 126.0 平米
装修花费 80.0 万元
房屋位置 广东 深圳
所有图片/描述均选自
好好住APP设计师用户「涵瑜设计」

一层原始户型图
一层空间主要存在以下缺陷:
1、厨房直接面对餐厅,摆放餐桌后动线会受阻;
2、楼梯间和一楼书房分割客餐厅本来就不大的面积;
3、阳台很大,客厅却较小,但大阳台却被几扇推拉门分割,影响了客厅的采光效果。

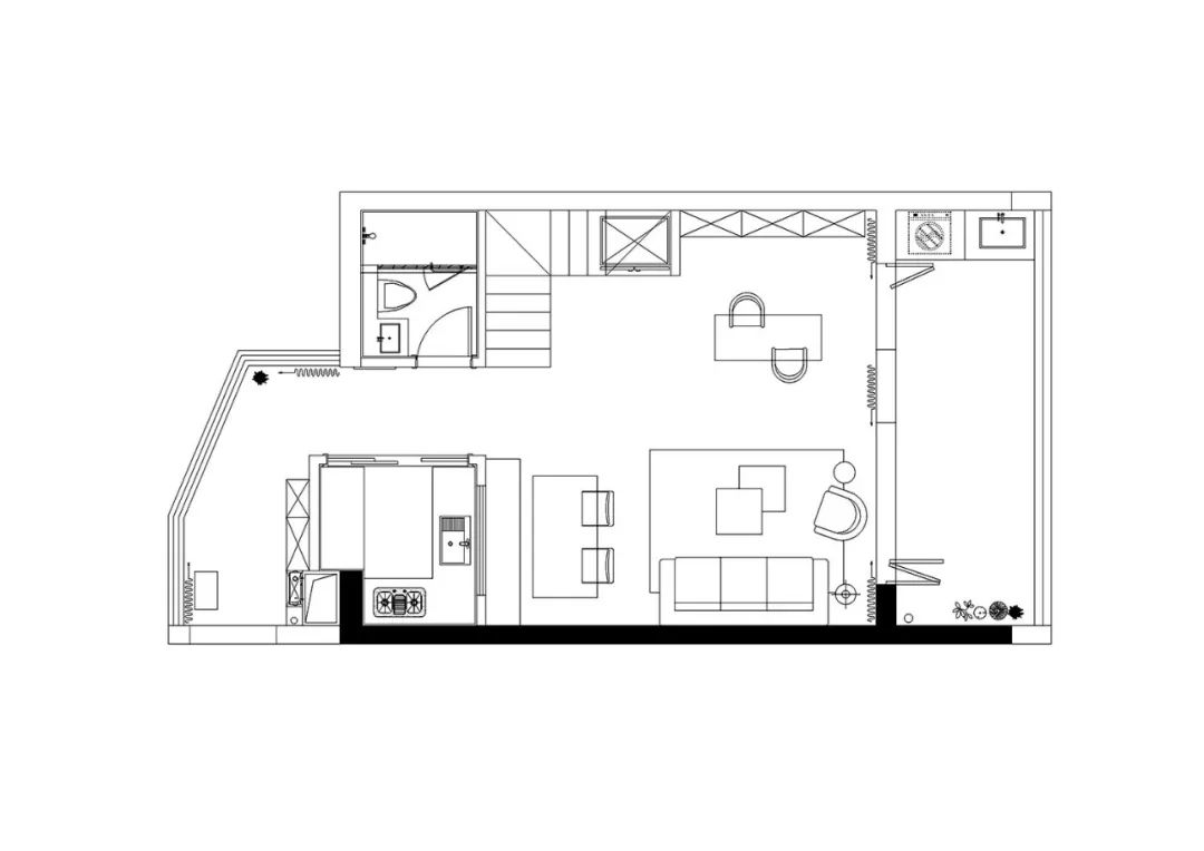
一层改造后的户型图
针对原始户型的缺陷,设计师做了以下改造:
1、将厨房门改到过道,由原来的两扇推拉门改成四扇推拉门,有效的拓宽了过道的视线,也增加了厨房的采光;
2、改造原有楼梯,增加第一跑楼梯的步数,减少第三跑楼梯的步数,这样的布局就不会形成独立楼梯间,楼梯下刚好放置一个冰箱和一些其他的收纳设计;
3、打掉原始书房的墙壁,改成敞开式书房;
4、拆掉阳台原有推拉门,改为更加通透的折叠门,开启时客厅和阳台连为一体,关上后又成立一个独立阳台,互不干扰。

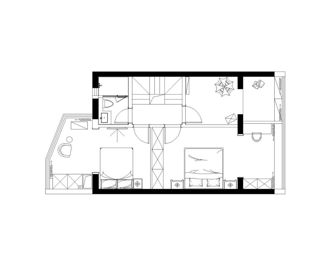
二层原始户型图
二层前后有两个阳台,却都没有被很好的利用。

二层改造后的户型图
二层主要做了以下改造:
1、二层儿童房利用原有阳台,设计了榻榻米床,而原房间的面积则全部作为儿童的活动空间;
2、二层主人房的阳台空间被设计成了衣柜和梳妆台,有效满足了收纳上的需求,同时也很好的体现了落地窗的优点。

玄关的鞋柜和房间大部分柜子都是工厂定制,现场安装。

玄关入户后,是一条通向客厅的走廊。

客厅选择了气质雅致的浅灰和灰蓝色作为色彩主题,将阳台原有推拉门改为折叠门后,采光和视野都得到了优化,整体空间显得更加轻盈通透。

折叠门关上后,客厅和阳台各自独立,互不干扰。

折叠门开启后,客厅和阳台连为一体,客厅的视野和采光条件都得到了优化。

打掉原有书房的墙壁,让书房和客厅连为一体。书柜和楼梯上做了线条上的处理。考虑到家中没有电视,设计师在天花板上暗藏了投影幕布,周末的时候一家人可以围坐在一起,看一部心仪的电影,其乐融融。

原结构中厨房门直接面对餐厅,造成餐厅空间动线受阻,设计师将厨房门改到过道,面对餐厅位置做了一面折叠窗,在窗下设计了卡座,丰富了视觉空间的同时又很好满足了功能使用。

餐厅卡座可容纳至少五人同时就餐。

厨房在面对客餐厅的位置开了一扇窗,这样既能避面开放式厨房的油烟,又在视觉上增大了空间。在厨房忙碌的同时,还可以看到孩子在客厅玩耍嬉闹。

二层主卧整体风格舒缓雅致,浅灰色墙面与暖色家具进行搭配,自然的色彩层次过渡,让室内空间变得更加协调。

床头四副精致的建筑装饰画经典又活泼。

原始阳台空间被设计成了衣柜和梳妆台,有效满足了收纳需求,同时也很好的体现了落地窗的优点。

二层的儿童房利用阳台空间设计了榻榻米床,原房间的空间则全部作为儿童的活动场所。

墙面暖灰打底,以蓝色点缀,俏皮童趣的家具和自由舒展的空间更能释放孩子的天性。

老人房低调沉稳,挂画和床品的搭配化繁为简,宁静悠远。

二层的阳台连接着老人房,采用了驼灰色防腐木,既美观又实用。

原卫生间的采光一般,设计师选用白色仿石材纹瓷砖,使整个卫生间显得干净、透亮。
涵瑜设计还晒出了更多作品
长按二维码去看看吧
版权声明