
【1】
区域价值:全面承接海淀北
昌平阳坊镇建设正式启动
昌平西开始亮相
在海淀的“十四五规划”中,明确提出海淀未来的重点发展将会向北,海淀科学城北区将会作为海淀未来发展的重中之重。
尤其是沿着北清路沿线,是北京自贸区“科创片区”的重点布局。

海淀北部的崛起,给昌平带来的巨大的发展契机。
比如与海淀北部“接壤”的昌平南部地区,已经成为海淀中关村“北扩”最为直接的受益者之一,目前的房价已经突破6万+。
而 西山上品湾MOMA项目所在的 阳坊板块 属于 昌平西 ,是最靠近海淀北部的昌平地区,未来的发展潜力也开始凸显。
“ 昌平西地区 ”未来可以承接海淀北部的产业精英外溢,同时也可以承接昌平南的生命科学园、未来科技城、沙河高教园区等就业人口的外溢。
从 昌平西的“阳坊镇” 出发,30分钟即可达到海淀北部的北清路,40分钟可到达海淀上地,50分钟到达中关村核心区。
昌平南崛起后,昌平西开始“ 亮相登场 ”。
【2】
交通价值:西六环半小时直达海淀北
尚无地铁规划,但公交线路发达
“西山上品湾”项目位于昌平西的阳坊镇,紧靠西六环路,距离六环出口约2公里内。

沿温南路下北清路,直线距离约15公里内覆盖翠湖、永丰、上地等热点区域,30分钟车程快速到达海淀北核心科技产业园。


项目周边目前尚无轨道交通规划,但200米距离内拥有4个公交车站,其中 5路公交直通海淀北部和昌平城区 ,642路直达地铁16号线温阳路站,可快速接轨市区。
因此项目 交通主要依赖公路和公交,但三条高速和一条环路还是很给力的,可以实现快速上六环、30分钟直达海淀北。
【3】
生活配套:能够满足基本生活需求
区域配套有待进一步提升

教育配套:阳坊的教育资源主要以本地学校为主,500米内有阳坊小学和阳坊中学,1.5公里内有一所回民小学和二一学校。

医疗配套:一公里内主要依靠阳坊社区卫生服务中心以及北京汉方道门诊部,8公里内依靠海淀区中国人民解放军第九八四医院。

商业配套:阳坊片区内大型商业暂时没有,目前购物可以选择项目南500米处的华联超市和南700米处的新世纪商城(阳坊商场)。
其次购物可以选择去昌平核心区,开车不过半小时就可以到达昌平区乐多港万达广场等商场。

阳坊最大的优势就是生态环境,项目位居北京生态涵养区和昌平西部生态保护区,周围八大核心景区环伺。
4A、5*级A**景区众多,白虎涧森林公园、凤凰岭自然风景区、阳台山森林公园、妙峰山森林公园、翠湖城市湿地公园、百望山森林公园、滨河森林公园、蟒山国家森林公园等风景区开车半小时内就可到达。
综合来看,阳坊镇的生活配套仅能满足基本生活需求,整个区域配套还需要进一步提升。
【4】
项目价值:均价3.8万
昌平地区价格最低的项目
性价比优势非常突出
和昌平南地区动辄6万+的价格不同,昌平西的阳坊镇距离海淀北也非常近, 最关键的是价格仅有3.8万/平米 ,应该说性价比非常突出。
我们综合判断:这个价格依然有一定的上升空间,尤其是针对海淀南北的“码农”外溢。

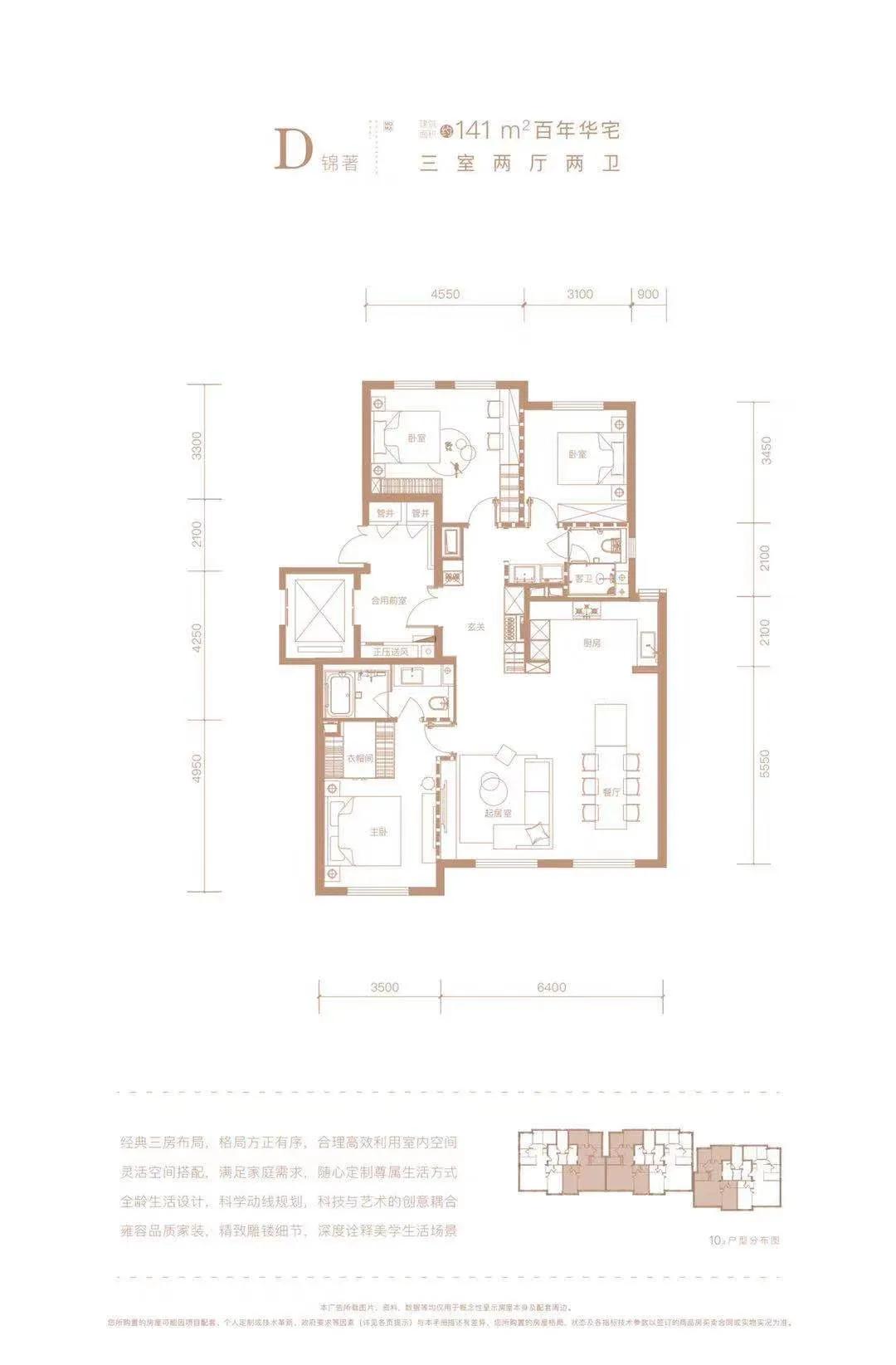
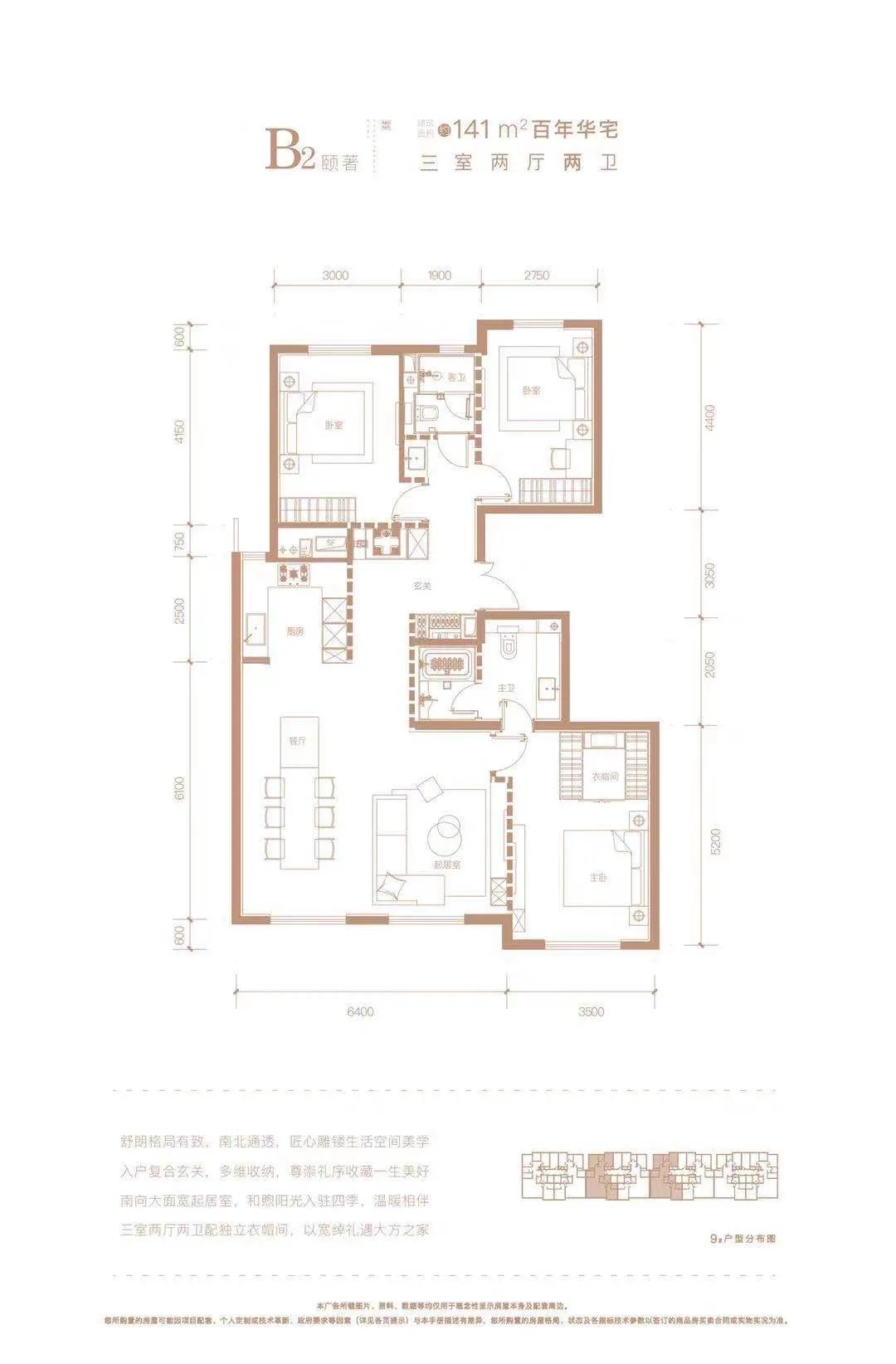
西山上品湾项目本次推出三种三居室和一种四居室的11-13层洋房类改善型户型,总价520万起:
三居室主要是130㎡、140㎡、150㎡户型三种,四居室约200㎡户型一种,层高3米,南北双通透,南向双卧室,三面阔景采光。


项目主打科技精装住宅,拥有九大科技系统,还有恒温、恒湿、恒氧、恒静的居住属性,品质上可以得到保证。
内部规划约1.5万㎡的商业街区。
项目预计2022年8月交房,目前属于准现房项目,还有一个月的时间就可以全面呈现。
140㎡三居户型图:全通透户型,总价520万。




【5】
价格评估:整个昌平区价格最低
京西北的价格洼地
西山上品湾项目的核心优势就在于两点:第一是距离海淀北部非常近,30分钟就可以直达海淀北。第二就是性价比优势非常高,均价3.8万可以说是京西地区的“价格洼地”。
京西北地区主要包括两个地区:一个门头沟,一个是昌平西。
目前门头沟新房项目的价格几乎全部都在6万以上,包括非地铁盘的价格也已经6万以上,比如西山相府的价格预计在6.2万左右。
所以别看不起门头沟,价格高的吓人。

同时昌平南地区的新房房价也已经全部突破6万+,包括目前在售澳海明月、奥森one等项目已经6万,后面包括即将入市的东小口地块、生命科学园地块都在6万以上。
昌平南也已经沦陷。

所以两大紧靠海淀的近郊区房价,都已经迅速被拉升了。
西山上品湾所在的“阳坊镇”紧邻海淀,均价3+万/平米,对比门头沟和昌平也是6成左右的价格,对比海淀更是4成水平。
对于急于上车客户,不仅可以买到舒适型紧凑三居,也可以用抄底总价购入改善三代房,我们认为还是具有一定的购买潜力的。
【了解“西山上品湾MOMA”更多信息私信我们、商务合作私信我们】
项目测评
大兴
| 中海寰宇时代 | 和锦诚园 | 京华雅郡 | 京能|电建·洺悦湾 | 中海云熙 | 招商雍和府 | 金麟府 | 金悦府 | 中海云筑 | 和悦华锦 | 禧瑞天著 | 颐璟万和 | 万和斐丽 | 金茂悦 | 熙悦林语 | 金地悦风华 | 中国铁建国际公馆 | 金隅学府 | 臻珑府 | 融创·公园壹号 | 融创·亦庄壹号 | 住总如院 | 和悦春风 | 路劲御合院 | 新城熙红印 | 中旅亦府 |
石景山
长安云锦 | 绿城·西府海棠 | 禧悦学府 | 远洋五里春秋 | 万科翡翠山晓 | 中海天钻 | 长安和玺 |
昌平
未来金茂府 | 中海丽春湖墅 | 金辰府 | 和悦华玺 | 萬橡悦府 | 未来金茂府悦公馆 | 金茂北京国际社区 | 奥森ONE |
通州
万科城市之光·东望 | 台湖金茂悦 | 禹洲·朗廷湾 |
房山
熙湖悦著 | 首开熙悦观湖 | 金樾和著 | 中海京西里 | 万科七橡墅 | 金地大湖风华 | 中国铁建山语澜廷 |
丰台
诺德春风和院 | 诺德逸府 | 国风长安 | 西城天铸 | 金融街融府 | 万科翡翠西湖 | 京投发展·臻御府 |
顺义
公园十七区 | 祥云赋 | 合景天汇广场 | 观承别墅大家 | 国誉府 | 橡树珑湾 |
海淀
万科翡翠云图 | 山屿湖 | 西山锦绣府 | 天恒·学院里 | 葛洲坝北京紫郡蘭园 |

