项目名称
蓝光长岛城
开发商
成都聚锦商贸有限公司(蓝光的分公司)
项目地址
成都市郫都区红光镇太双路
蓝光长岛城销售中心
在售地块
一期
可售套数
1086套
项目信息
在售产品
住宅
是否通气
是
面积区间
14-20栋 高层:95-125㎡(主力)
10-13栋/23-25栋洋房:129-148㎡
21栋多层:101-132㎡
可售套数
1086套
总价区间
110-210万
均价
高层均价:11000元/平
洋房/多层:12000元/平
梯户比
高层:2梯6户
多层:2梯4户(仅一栋)
洋房:1梯2户
总层数
高层:10-18层
多层:7层
洋房:6-10层
占地面积
约421亩
层高
高层:2.9米
洋房:3米
物管公司
蓝光嘉宝物业(一级物业资质)
产权年限
70年
容积率
2.7
物业费
高层:2.8元
洋房:3元
公摊
13-16%
绿化率
30%
拿地时间
2008年
车位比
1:1.5
交房时间
2022年4月
交付标准
成品房交付(装标2988/㎡)
核心卖点
三、核心卖点
1. 成都西控政策,土地的稀缺,而市政规划7200亩郫都长岛城板块,其中仅2800亩是住宅用地,其余的约4543亩全部用于文化、公园、公建配套建设以及各类高品质生活配套,环境舒适,自带13万㎡功能生态园区。
2. 一站式教育体系,配套的幼儿园已建成,预计九月投入使用。此外与成都嘉祥七中并驱的西川汇锦都学校(私立)的入驻更是满足了各位家长对教育水平的高标准高要求。
3.成熟的“四横四纵三轨道”交通网络;2020年地铁6号线开通后驱车约几分钟左右便可到达地铁站,(社区巴士免费直达地铁站)
4.商业:重金打造近1.5万余平全业态多维度商业配套,同时紧邻蜀都万达广场,满足购物、休闲、娱乐等一站式生活需求
5.品牌:蓝光开发商成都发展于全国,是房地产30强中唯一的川派企业,至今已发展至全国16大区域,服务超百万的业主;嘉宝股份,拥有 “国家物业管理企业一级资质”。2019年成都市物业服务企业综合实力TOP10”榜首

周边土拍价
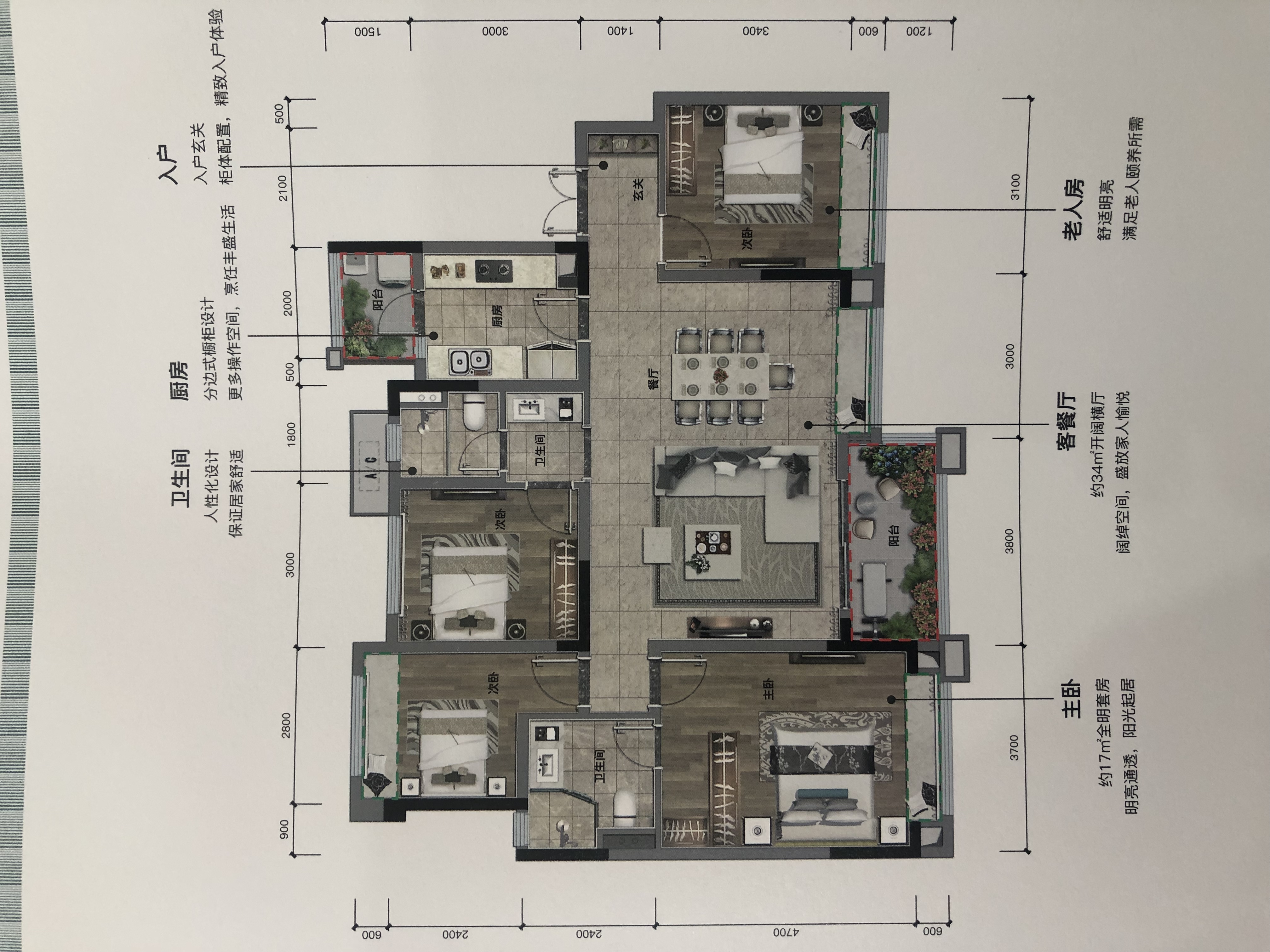
户型图

95平户型

115平户型

125平户型

129平户型

148平户型
了解详细信息及优惠可私信






