简约大气

温度与质感并存,世间美好与你环环相扣
作品信息 设计风格 | 现代简约 项目面积 | 138㎡ 项目户型 | 五室两厅两卫一厨 设计师 | 张凯 施工单位 | 慕光装饰设计 项目地址 | 昆明 - 滇池俊府
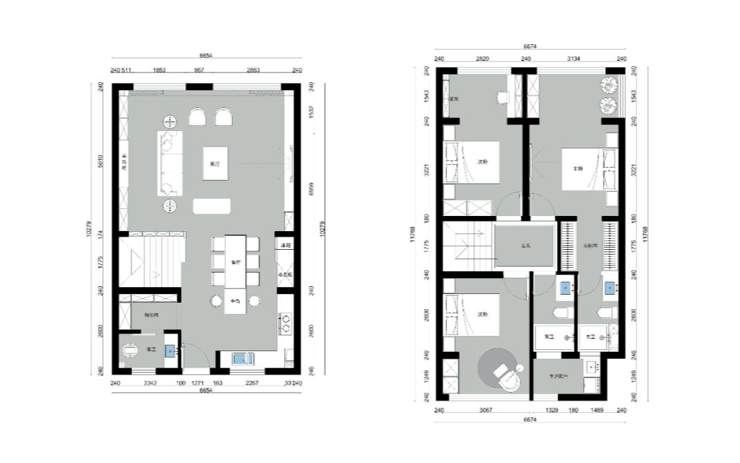
户型解析

* 原始户型图

* 户型布置图
① 一楼拆除原先卧室的墙体,设为餐厨一体化空间,加入中岛设计,提升生活的便捷性; 原先入户处两个房间,改为卫生间+鞋帽间的设计,增强收纳功能。
② 二楼设了3个卧室,卫生间+衣帽间组合,满足居者对品质生活的追求。
设计说明
整体以高级灰和原木色为主,在追求简约高雅的现代风格中,色彩简洁,通过多种温润质感材质的碰撞,不经意间透露空间的高级气质,展现业主对家的精致化要求。
1
客厅

开放式客餐厅,增强公共空间的互动性,简而大气的石材背景墙,赋予空间浓厚的艺术氛围。
通过不同种类的灯饰,来营造客厅的自然惬意氛围。采光足够,一抹亮色橙的加持,配合金属的圆形茶几,空间散发着温暖清透之美。

2
餐厅

餐厨一体化将空间完美利用,咖色与米色相间的座椅,结合白色调的餐桌、小吧台,彰显餐厅高雅氛围的同时,增添生活趣味。
浅灰色与白色交替的橱柜,有隐形灯带的糅合,厨房空间更加时尚明亮。

3
楼梯
金属栏杆搭玻璃面,再配上石材踏步,简练大方。楼梯边设置整面墙定制柜体,开放式储物,作为隔断的同时,又增强收纳力。

4
卧室

主卧巧妙运用了深木色护墙板与浅灰色石膏板相融的形式,在高级灰调的基础上,丰富空间层次,看似简洁,实则温蕴而精致。
精巧的灯具,温煦的床品是主人对精致生活的表达,休闲区陈设通透,温暖阳光,传递悦然心动的优雅与静谧。

蓝色融入灰白色调里,打破了空间的单调感。造型吊灯、卡通元素的加入,让纯粹简约的空间多了一些生动与可爱。阳台作为学习区,配了书桌柜,让房间的功能更强。