
丨黄冈学校实景
1
泾河新城这两年发展很快,想当年,还是乐华城独树一帜的孤独存在。如今各路开发商纷纷拿地,比如经发、西咸城投、泾河实业、金地、南飞鸿等。
记得去年冬天去踩盘时,泾河新城的房价 (高层)未过万的楼盘可选余地很多。现在均价区间1.2-1.6万/㎡,不禁感叹,连泾河新城也快高攀不起了。
这次钱哥和同事去看了西安厉害的私立学校之一黄冈学校 (小学-初中-高中),它旁边的2个纯新盘,是否值得入手?可投资?还是可自住?且听我详细分析,以供大家买房参考一二。
我们从高新出发,开车到达黄冈学校50分钟,如果在城北上班的话,其实更方便,也就半个小时左右可达。
2
第一个目标是 南飞鸿云境澜湾 ,位于西咸新区黄冈泾河学校南门东侧。项目的西侧一路之隔是黄冈学校,东侧是乐华城欢乐世界。

丨项目沙盘实景图,拍摄于9.24

丨小区和黄冈学校一路之隔,拍摄于9.24
占地55亩,是一个小型社区,规划4栋高层,2栋小高,2栋洋房,容积率2.5,目前在售的3# (高层)、6#(小高),户型面积区间89-133㎡,以三室为主,高层均价1.4万/㎡,小高层均价1.5万/㎡,2023年11月交房。

丨施工进度,拍摄于9.24
南飞鸿是西安本地开发商,大家最熟知的便是鱼化寨版块已交房入住的华洲城系列,小区品质和物业服务质量可做参考。另外南飞鸿玖玺大观 (华洲城6期)在售,平销状态。(之前有写过,点此处查看)
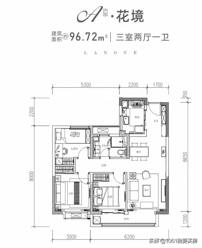
项目整体品质一般,户型设计、精装标准还算可以,比如说 96㎡,三面朝南, 壁纸、电视背景墙、中央空调都有。

丨96㎡户型图
目前房子的销售状态是平销,之前已开过盘,房源有剩余。南飞鸿的价格、品质和隔壁邻居金地乐华翰林艺境差不多,从踩盘过程中,售楼部来看房的人流量来看,房子不太愁卖,但也谈不上火爆。

丨项目展示中心,拍摄于9.24
3
看完南飞鸿云境澜湾,过个马路就是 北宸天樾, 位于西咸新区乐华一路与泾河湾二路十字交汇处西北角,黄冈学校正大门对面。
项目是由3家开发商联合,弘阳集团+卓越集团+正荣地产。这块住宅用地今年4月份竞拍所得, 楼面价高达7100元/㎡。 所以,它的房价预计不会低。

丨项目展示中心,拍摄于9.24
先简单说一下这三家开发商:弘阳集团在咸阳的项目有钰珑府,阎良的项目有昕悦府;正荣地产在西安较有名气,城北的正荣府、紫阙台,商业有大家熟悉的彩虹谷;卓越以做写字楼出名,在鱼化寨版块的项目是卓越坊,阎良区的卓越府。
据置业顾问说,北宸天樾对标紫阙台。小区占地143亩,分两个地块开发,容积率2.5,规划25栋住宅,1栋幼儿园 (公办幼儿园,建成后交给政府)和2栋独立商业。

丨项目楼栋示意图
项目由高层、小高、洋房和叠拼组成,高层和小高面积84-117㎡,洋房120-169㎡,叠拼178-182㎡,容积率2.5, 预计小高和高层均价约1.4万/㎡,洋房均价约1.6万/㎡。
首开22#、24#、25#、26#, 具体开盘时间未定,目前处于前期咨询中。其中 22#、25#是高层, 22-25层,两梯四户,面积有84㎡两室,98㎡、115㎡、117㎡三室。 24#是小高 (19层),两梯三户,98㎡、117平米三室。全部都是精装交付。
26#是洋房 (11层),一梯两户,120㎡毛坯底跃,126㎡中间平层精装四室,163㎡毛坯顶跃。叠拼产品都是毛坯,目前未有具体信息。

丨实景沙盘,拍摄于9.24
小区整体品质比较高,夜光跑道、立体儿童游乐场、羽毛球场、图书馆、开放式草坪等都齐备。另外,下沉式庭院已做好,实景展示。 (去踩盘当天下着大雨,没能拍照)
去参观了样板间,户型设计、精装标准方面还是蛮加分的。举个例子, 98㎡三室做到了南北通透,贯通式大阳台, 符合北方城市的居住习惯和喜好,壁布、阳台真石漆、卧室木地板、客厅瓷砖、厨房消毒柜...阳台半封闭,因此算一半面积。

丨98㎡三室户型
所有的户型都是贯通式大阳台,精装方面,小高和高层同一标准,洋房的精装多了中央空调、新风系统、全屋智能化、电视背景墙、厨房洗碗机等。
4
整个泾河新城的配套设施基本共用,比如说,大的购物商场目前是静安奥特莱斯;公园是泾河国家湿地公园 (在建);游玩的话有崇文塔、乐华城欢乐世界、茯茶小镇;医院有西安交大附属泾河医院(在建);产业的话院士谷等。

丨乐华城
围绕黄冈学校一圈的楼盘除了这次踩盘的北宸天樾、南飞鸿云境澜湾,还有金地乐华翰林艺境、黄冈学府城。
对比之下,北宸天樾的整体品质更胜一筹。其他3个楼盘从品质和产品来看,更适合刚需购房者。至于这一片区的房子是否适合投资,就看购房者的需求了,不管是看重教育资源,或是区域升值潜力,都需谨慎考虑。
是否适合自住?这一点主要看购房者自身的经济能力,如果在城北上班,或泾河新城上班,可以毫不犹豫的选择在这一片区买房。若是在西安其他区域上班,就得三思而后行了,可以先一算交通成本。
但最重要一点, 泾河新城不限购, 虽然这一两年,房价上涨了约2000元,相对西安其他区域来说,价格还是占据竞争优势。
830政策后,沣西纳入限购,西安不限购的区域越来越少了。泾河新城不限购,房源充裕,房价 (1.2-1.6万/㎡)不算贵到离谱,不至于让人抓狂、难以承受。
很早之前金地乐华翰林艺境的房子带有黄冈学校的学位,如今没有哪个楼盘敢说自己的房子带有学位了。私立要摇号,公立依照每年教育局发布的学区划分。
买房买在黄冈学校附近,将来住在这里,即便黄冈学校就在家门口,过一条马路即到,能不能上得了黄冈学校?也是未知数。

丨黄冈学校,拍摄于9.24
▓▓▓▓▓▓▓▓▓▓▓░░░░下期推文见 ……
文字/钱哥
106.1《我要买房》栏目的另一个码字工