诗人艾略特说:“一个造出新节奏的人,就是一个拓展了我们的感情并使它更为高明的人。创造一种形式并不是仅仅发明一种格式,一种韵律或节奏,也是这种韵律或节奏整个合式内容的发觉。”
对于屋主来说更喜欢西方文化但没有确定特定风格,我们设计师致力于在满足日常生活功能需求的基础上,增加收纳柜与各空间的紧密联系,力求实用和美观度达到平衡,帮助客户找到自己想要的生活。

布艺的沙发、简约的抱枕、精致的挂画以及温暖的灯光,给人轻奢典雅的感觉。新古典元素并不是简单的堆砌,而是将家中的每个角落安然共处。冬日正午的阳光,透过窗户肆意的洒在身上,暖暖的好舒服。

东易日盛长春站

生活就该有格调,日子也该有艺术感。以浅色系为空间基调,加20%的蓝,再用5%的金属做点缀,这样的客厅温馨而有质感。

东易日盛长春站

爱就是一家人围坐一起,吃很多很多顿饭。恰逢新春,与家人相聚,吃一顿和乐融融、香气四溢的团圆饭,简简单单却觉得很美好。

家,有千万种样子,舒服、自在才是它最好的模样。最幸福的事莫过于,忙碌了一天回到家,和爱人一起吃顿温馨的晚餐。

每个人都应该有一个可以让心灵停泊的港湾,也许是一个小木屋,也许是一张床,又或许是一个生活休闲区。时不时的过来打个盹,尽情放空自我,也是很不错的呢~

东易日盛长春站

卧室可以表达的色彩包罗万象,既可以艳的惊人,又可以素的质朴……但奔放的颜色往往会阻碍质感的表达,整体以浅色系为主,使空间设计增添了另外一种格调,它不浓妆艳抹,不矫揉造作,安静地沉淀出亲密岁月的本质。

东易日盛长春站

单色或多彩,严肃或嬉戏。一个简单的陈设和人字纹的织物,便将这些细微差别放大成不同的空间氛围。床头的石膏线,不仅打破了墙体的生硬线条,更像是探寻另一个奇妙世界的魔法橱,宽容的装载起孩子们的奇思妙想。

东易日盛长春站

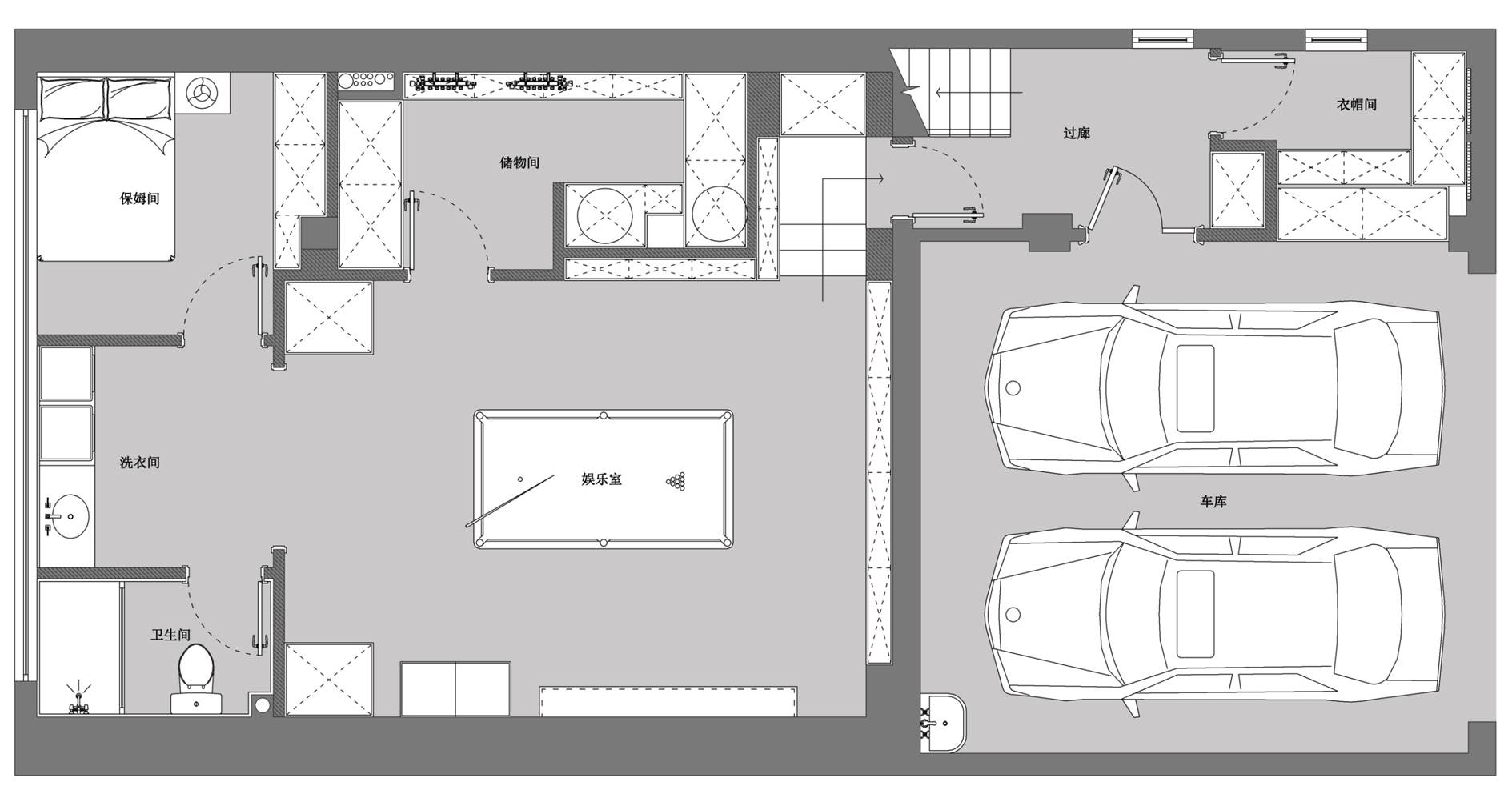
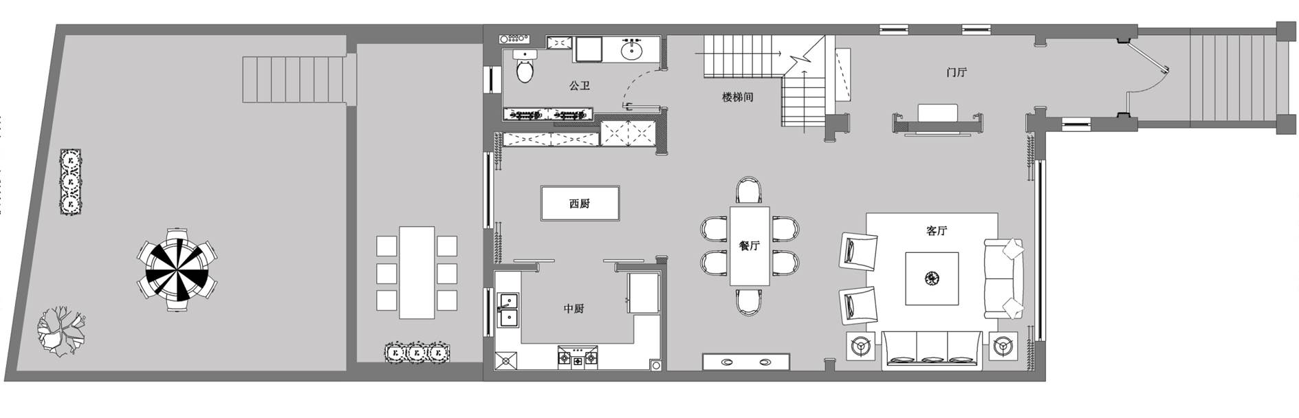
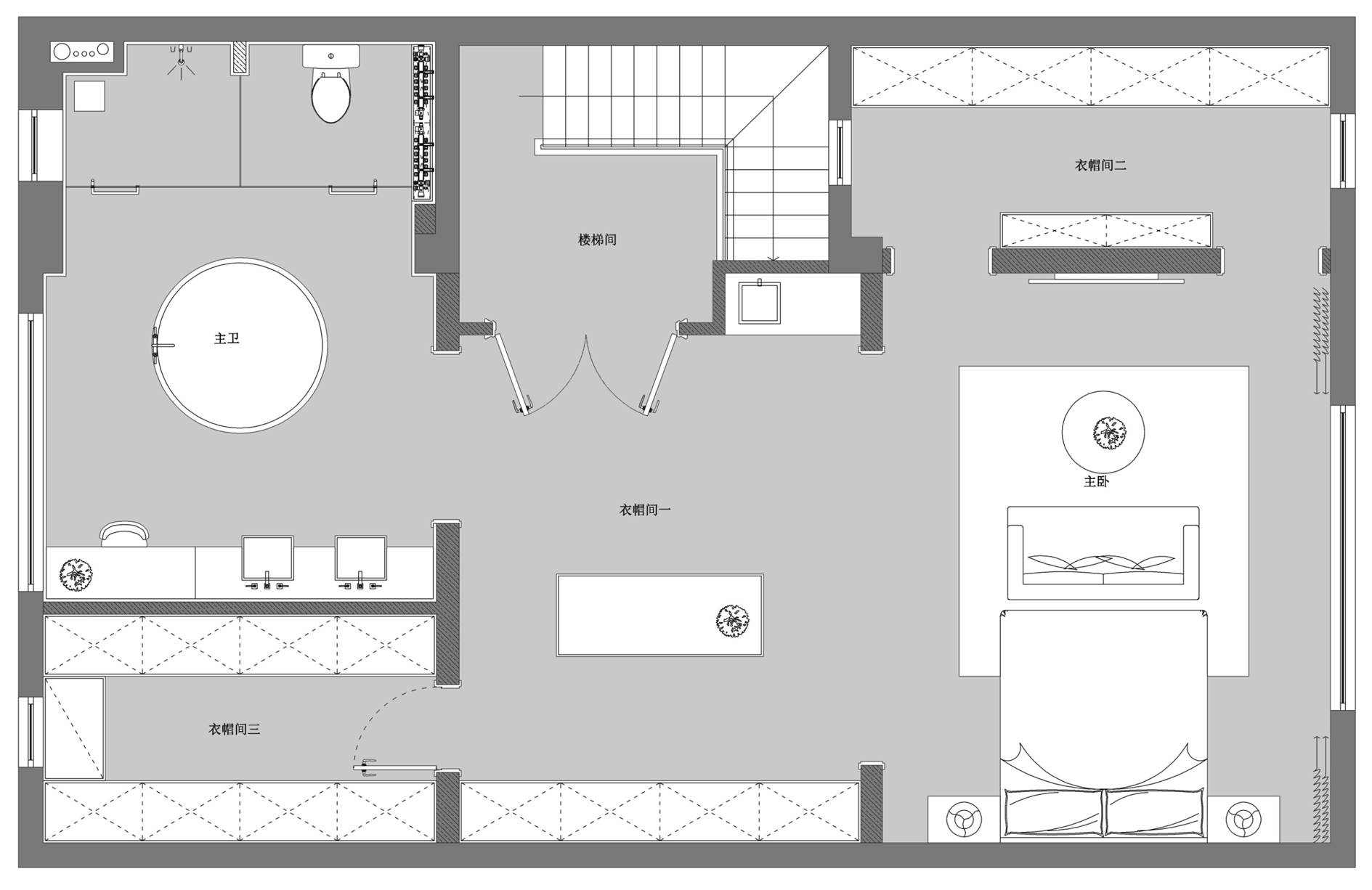
平面图
项目名称:长春市御翠园
设计单位:长春市东易日盛富盛德别墅装饰
项目地点:中国 长春
项目面积:500㎡
主创设计:张俊勇
设计成员:李伟 刘泽

负一层平面布置图

首层平面布置图

二层平面布置图

三层平面布置图

顶层层平面布置图

设计理念:
注重人文关怀,希望通过对居住环境的改善来满足个人精神上的追求。倡导以人为本,以舒适实用为主,在此基础上融入自然;以外在的美学造型为辅,打破传统风格束缚,打造具有屋主个人身份特点的私人风格。推崇减法设计,化繁为简,以简约的手法打造室内空间。不忘初衷,方得始终。希望我们不要忘了,买房、装修的目的是为了改变我们的生活,提高我们的生活质量,我们设计的不仅仅是装修,而是有品质的生活。

代表作

玫瑰谷

天茂湖

伟峰东樾

益田瓦萨

御翠园

紫金苑

紫御华府