

▲ 建筑面积118平,地址:天津,完工时间:2019年,考虑业主居住的使用习惯,并为他们日常下厨烹饪,一起进餐营造仪式感,在施工的过程中他们有了小宝宝,这是一个出乎意料的小惊喜,为了迎接小生命的到来,对方案也做了相应的调整

▲ 原始结构图

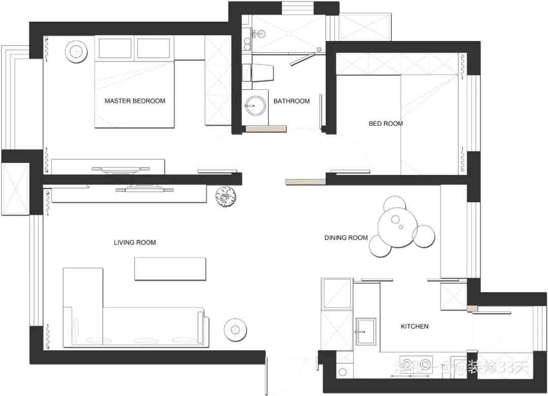
▲ 平面布置图:
1.拆掉厨房在入户一侧的非承重墙,做成玄关柜,并占用餐厅的部分空间,扩大厨房面积,同时解决了鞋柜、冰箱、洗衣机的放置;
2.拆掉客厅部分墙面,餐厅一侧新建墙,对入户和卫生间形成遮挡;
3.卫生间调整格局后,门的位置调到对侧;

▲ 原户型缺少玄关空间,拆掉厨房在入户一侧的非承重墙,定制1米3的玄关柜,解决入户收纳

▲ 入户视角,拆掉客厅部分墙体,餐厅墙体进行延伸,避免入户正对卫生间的尴尬,将所有门加高到2米3的高度,视觉上提升了整屋层高

▲ 客厅以纯净的灰色为基调,墙面做了线条装饰,搭配精致纹理的石膏线吊顶走边,纯粹高级内敛,突显细节的精致

▲ 选用低矮款的家具,搭配金属吊灯与边几增添轻奢感

▲ 沙发背景墙的蓝色,是在灰色漆的基础上刷的蓝色漆,等到家具基本进场后油工才上漆的,高明度低饱和度的蓝色一次成型

▲ 电视墙设计地台式电视柜,细节处以线条作为呼应,整块的大理石背景墙点缀金色壁灯,颜值在线

▲ 客厅小景

▲ 客厅望向餐厅,餐厅空间是横向延伸的,为了充分利用里侧空间,在窗户旁做了一排边柜,满足餐边收纳

▲ 大理石台面的餐桌用金属圆柱支撑,搭配精致的金属吊灯,用餐氛围充满仪式感

▲ 安装百叶帘可以随意调节光线

▲ 玄关柜面向餐厅的一侧做嵌入式隐形冰箱,同时与黑色透明玻璃围合成厨房

▲ L型厨房,灶台和洗菜区的操作台有一个5公分的高度差,提升烹饪舒适度,同时洗衣机能够嵌入其中

▲ 蓝色橱柜与另一侧的玄关柜色彩上互动延伸,洗区边上增设一列储物格

▲ 次卧原本是要设计成衣帽间,为了迎接小宝宝的到来,施工过程中调整了方案,在靠窗一侧放置了一张低尺寸成品床,长辈来照看时也有独立的卧室,定制衣柜用黑色透明玻璃与黑胡桃材质均匀划分储物区域

▲ 主卧,侧面整墙衣柜使用和背景墙相同的黑胡桃色,弱化分界感

▲ 床头黑胡桃护墙板拼接大理石

▲ 卫生间调整格局后,将台盆柜和壁挂马桶设计在同一侧,新增一字淋浴房,方便以后业主夫妇给宝宝洗澡
▲ 视频
文字编辑 | 东东
设计 | 清和一舍(天津)
版权声明:装修33天出品,未经许可不得转载。