随着手机电脑等电子产品的普遍,近视群体越来越庞大,越来越多的人因为近视等眼科疾病去眼科诊所,这让眼科医院的数量不断的增加。随着眼科医院这个行业的竞争越来越激烈,为了让自己的诊所受到消费者的关注,眼科医院装修成为了大家关注的重点。

地下一层平面图
文华东方设计的深圳前海MOU眼科医院的设计方案中,地下一层的车库进入电梯厅设计了绿化景观,让空间充满绿意盎然的生机。

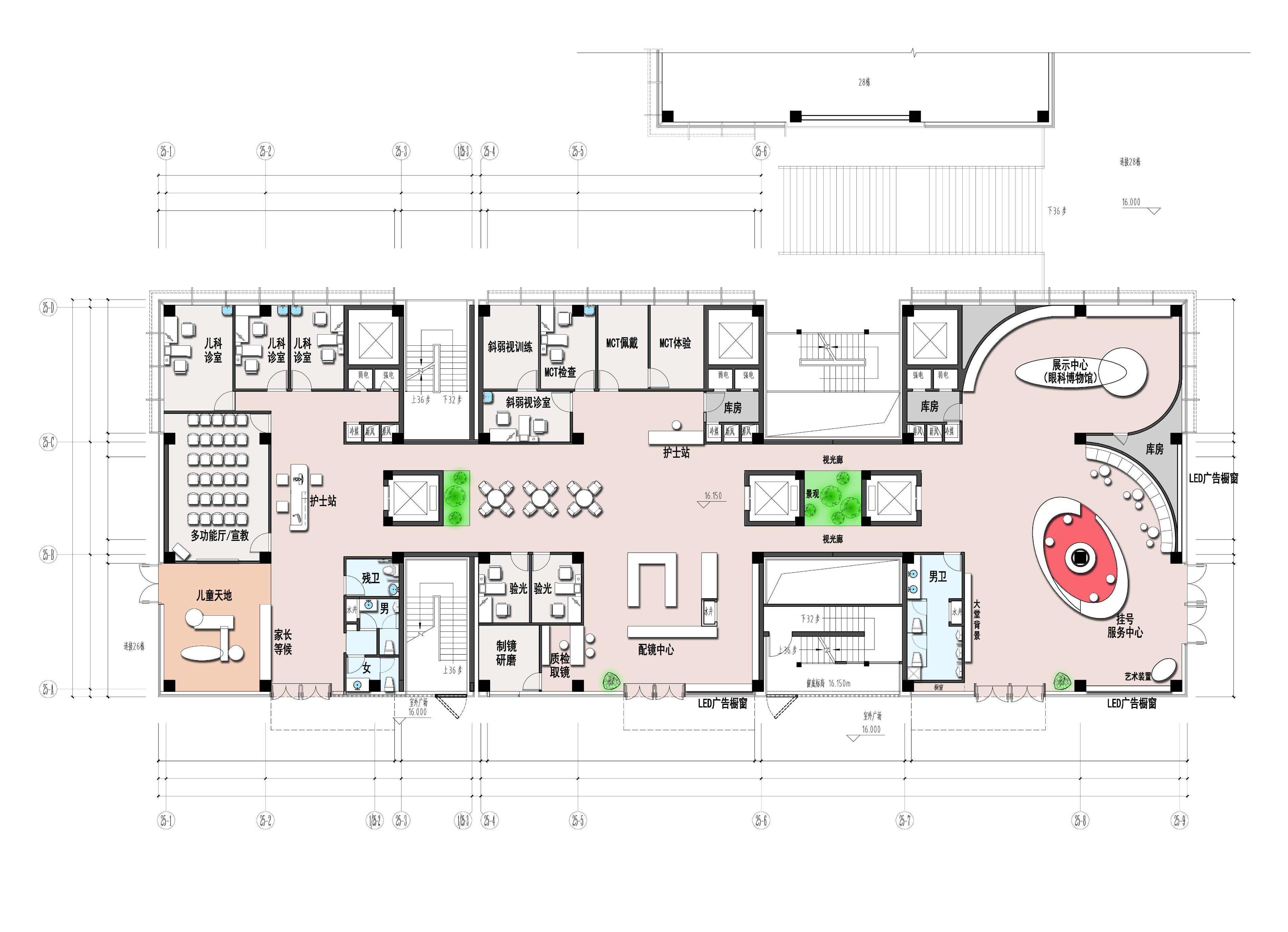
一层平面图
一层主要规划了挂号大厅,同时在挂号大厅的一侧开辟为眼科展示中心,将临街的铺面设置为验光配镜中心,充分感受专业的验光配镜服务。在一层的另一端设计为青少年眼科的区域,因为青少年主要是近视,一方面和其他的眼疾诊室分离,另一方面,儿童眼科诊室采用更加活跃的色彩,消除儿童的不安情绪。

眼科门诊设计诊区主要功能用房包括:诊室、专家专病诊室、治疗室、换药室、验光室、眼底照相室、AB超检查室、视野检查室、角膜内皮室、超声显微镜室、眼科OCT室、眼底电生理室、眼底血管造影室、眼激光治疗室、门诊手术室等。眼科的特点是专科检查设备多,所需功能检查房间也相应较多。
挂号中心采用木纹铝合金方通的设计方案,并将线条作为主要视觉元素,造就现代建筑的经典风格。基于理性功能主义的医院设计理念,我们在项目建设过程贯彻了整体思维。前期设计工作中,天花吊顶照明灯条和空调、喷淋等机电系统纳入一体化范围,呈现整体且整洁的视觉效果。

二层平面图
二层主要是眼科的治疗诊室,眼科检查设备种类繁多,不同种类不同厂家的设备都有不同的安装要求。为保证设备的安全与稳定,在建筑施工时,应根据其对强弱电的配置以及设备的接地要求,按照有关规范做好等电位接地的设计与施工,确保到场后能够正常安装并投入使用。眼科暗室、眼底激光治疗室、眼底造影室等需要控制光线,配置不同类型的遮光窗帘;眼科治疗室需要根据不同治疗类型如弱视、眼部理疗等配置不同类型的治疗桌、治疗床等。

金属铝板是空间常见材料,具有防火防水防霉的优越性能,同时适当地以木饰面为空间氛围助力,实现空间的耐久性和便于日常维护。
广泛使用各类玻璃材料,既有概念寓意:眼球含水量99%,用玻璃象征水;更是从实际需求出发,使用玻璃隔断平衡采光和隐私需求。

三层平面图

三层主要是手术室和院长医生的办公室,为缓解患者和家属的精神压力,空间用平静的蓝色,白色和木色达到一种平和的心理状态,设计的空间传达平静和温暖之感,使患者与家属有被欢迎的感觉;护理室充满阳光,并选用自然色系的有机材料和质地柔软的材质;尽量消除不必要的医疗设备给患者带来的心理暗示,特别是在非紧急护理的房间,这有助于降低患者的心理压力。露台被设计成一个花园,使医院室内外环境丰富、美观,保持空气清新,同时有助于患者的诊治和身体康复,以及舒缓医务人员的工作压力。

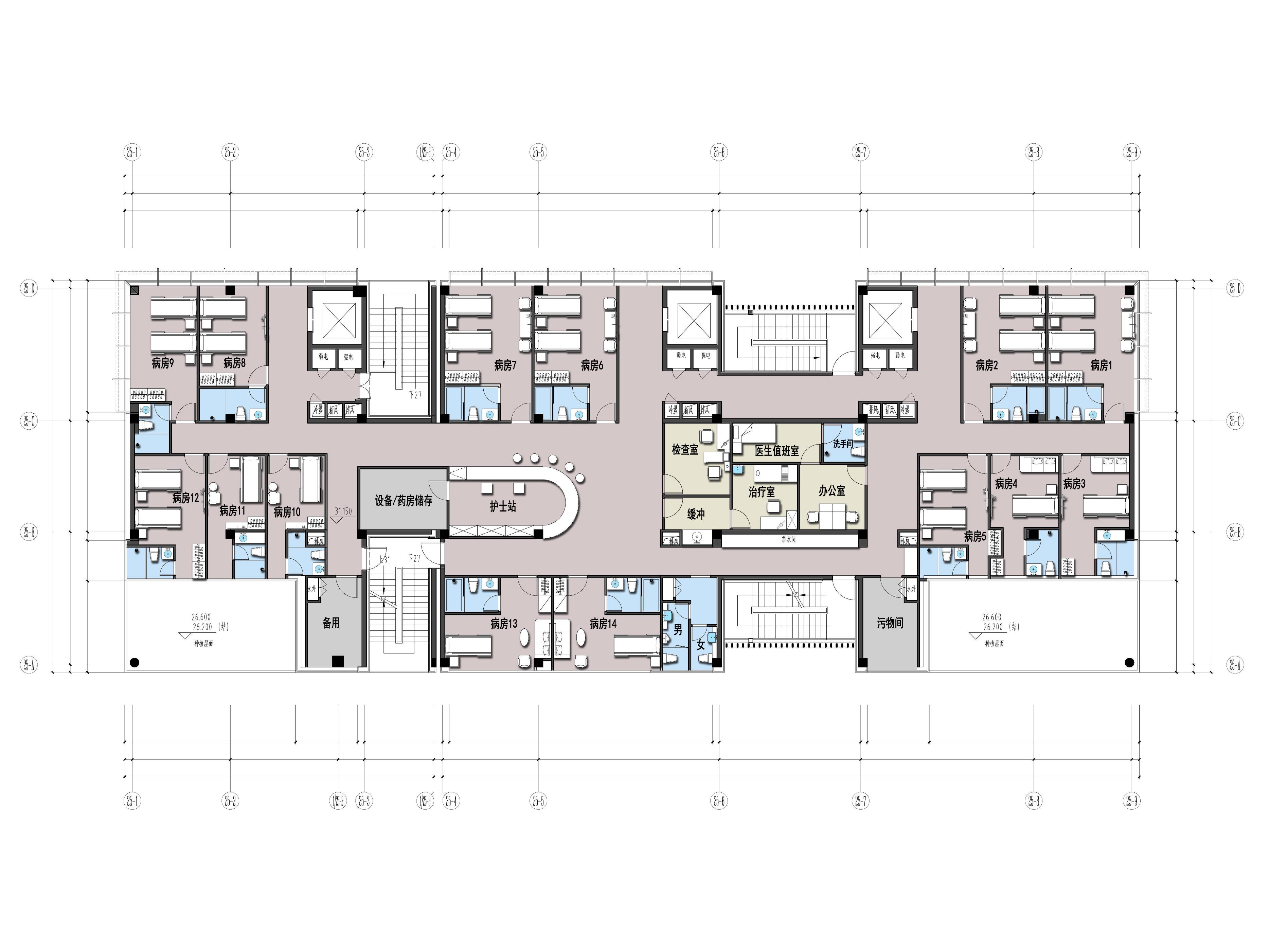
四层平面图

四层主要是住院病房,创造舒适的环境对于患者和患者家属来说非常重要。尽力为他们建立良好的环境,为其提供一系列的设施,比如无线网络、可以小憩和休息的空间,等等。

除了患者,也要考虑到工作人员的感受。因为如果他们对工作环境的感受和评价是负面的,那么患者也会受到影响。因此,需要增加员工休息放松的区域,用于改善他们在高压环境下的心理状态。工作人员保持愉悦的心情对于提升患者体验的质量有着非常重要的意义。