情怀 / 品质 / 生活 / 专注 / 设计
设计会说话的房子·实现有情感的家
GuangZhou,2019,THE TALKING HOUSE

项目名称 | 启悟
项目地址 | 帝景苑
项目类型 | 二手房改造
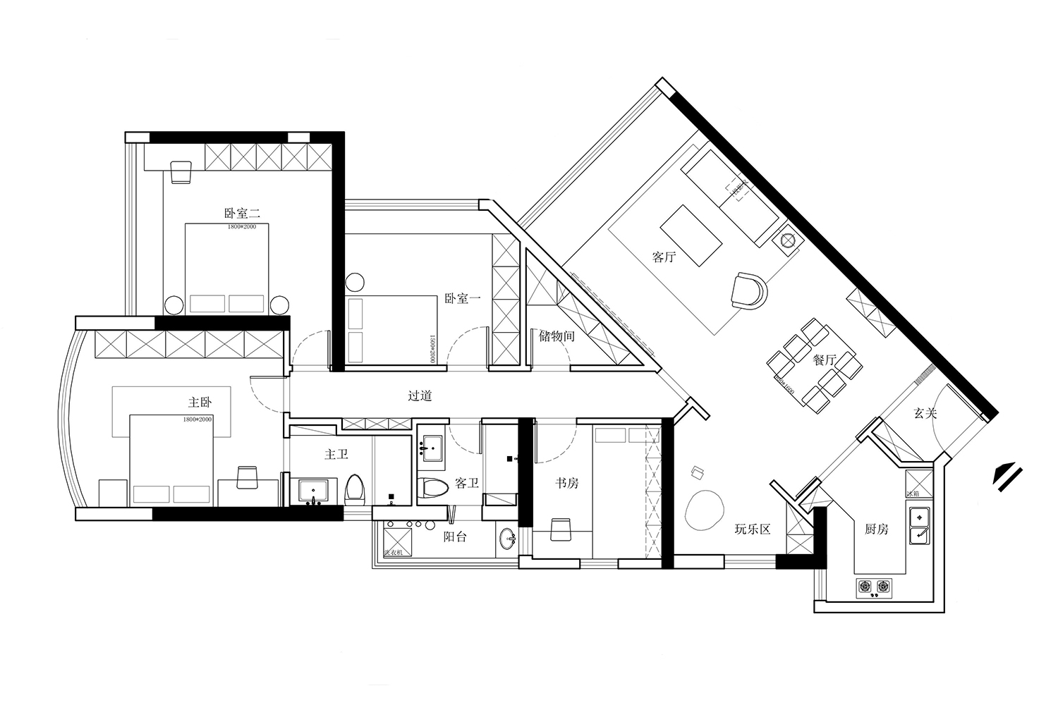
项目面积 | 180㎡
项目风格 | 现代禅意
项目预算 | 80万
项目户型 | 四房两厅

洗净浮华,沉淀心情,安宁而又不卑不亢的生活,是他们在这座城所追求的生活。化繁为简,回归自然,本案设计师为他们打造了一个极具东方禅意文化的安定居所。
【玄关】

当灯光打落,透过木格栅,光与影散发着朦胧之美,照亮家的每一处角落。坐在凳子上,换鞋,休憩,过渡。
【客厅】

宽敞的空间,明亮的采光。质地坚硬的蘑菇石背景墙,浅灰色的沙发、地毯,一切都那么自然、淡雅、返璞归真。


木色与白色的交织,灰色与木色的交织,素净的色泽,凝聚着优雅的气息,安逸的氛围。

加宽原来的飘窗做成地台,加宽的位置合理的利用起来,让其拥有强大的收纳功能。闲暇时光,在这儿温一壶宁静,品一盏香茗,赏一段轻柔弦乐,偶尔透过百叶窗,观望着窗外若隐若现的美丽风景,任思绪万千。


沙发背景墙挂画完美的拼接,完美诠释了“山气日夕佳,飞鸟相与还”的意境之美,筑造了空间的气质,让人走进自然的艺术。


一家人在一起便是他们最欢乐的时光。投影仪代替了传统的电视机,在周末的晚上,一家人就坐在这柔软的沙发上、温润的木地板上,观看着他们喜欢的电影。
【餐厅】

古木的质地纹理,原木的清香自然,营造了一个充满禅意文化的餐厅。傍晚时分,他们结束了一天的工作,他们就在这儿,粗茶淡饭,啰嗦今天的生活;亦或饭后在这儿下一局围棋,或练一门书法,释放疲惫的精神。

【厨房】

【过道】

漫步进入过道走廊,宛如穿越般。当灯光透过障子纸和实细木条制作的天花,充满着文化的仪式感。过道走廊特别制作的展示柜上,摆放着一家人的照片、小玩意儿。让原本单调的过道走廊,增添了色彩,增添了家的温情。
【主卧 】

主卧色调延续素色,淡雅的空间,安逸的空间氛围,让人放松身心,回归自然,享受这份宁静。
【次卧 】

床头山水水墨挂画,营造了意境之美,让人置身于山水之间。充满创意的吊灯,纤细美丽的褶皱造型,为整个空间增添了几分的艺术气息,提升了整体的韵味。

拾一本书,在寂静的夜里,细细品味着书本的内容,伴随着暖暖的灯光。