
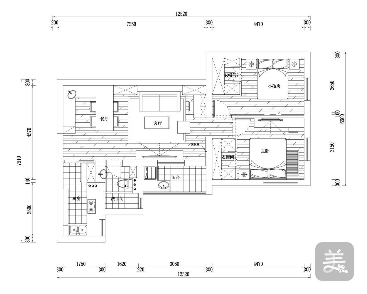
业主情况:夫妻。婚房、旧房改造 业主要求:喜欢北欧,干净的环境 设计特点:北欧的干净中添加了符合业主喜欢绘画,摄影的氛围 装修预算:半包7万

业主喜欢北欧,喜欢简约、干净的环境。但太纯粹的北欧风格又很难满足现实生活的需求,因此设计中引入了当下流行的宜家理念。

配色以灰、白、棕为主,显得格外的脱尘、宁静;局部使用少量鲜艳色彩,给空间增加活力。大多数物件本身的色彩都不超过两种,看起来更加朴实、纯粹。

这对新婚夫妻在闲暇的时间里,还喜欢烹制西点来增加生活乐趣,因此设计将西厨功能和餐厅规划在一起,无论是享用日常三餐还是点心零食都很方便。

从餐厅往客厅看,蓝色墙壁上是业主两人用简单笔划描绘出的幸福小景。坐在餐厅,吃着自己亲手烘焙的饼干,看着自己亲手画的画,生活就是这么美好!

客厅里的沙发是没有靠墙的,后面还有一个特别的收纳、置物空间。业主喜欢绘画和摄影的氛围,因此在装饰摆件上不需要太花心思考虑,把他们喜欢的东西摆一摆就很有文艺范。

懒人沙发宣示着业主喜欢自由、惬意的生活状态。电视柜的高度、沙发茶几的样式等等细节,也是根据业主有盘坐地面的习惯而量身选购或定制的。

业主喜欢沙发面向阳光,但这样一来,电视的位置就显得很尴尬。这里使用了电视柜、半隔断、洗手台三个层次上的组合铺垫来消除突兀感,同时又不会影响到阳台的采光。

阳台即是书房,也是家庭清洁、晾晒的工作区,传统的书香被自然气息所替代,没有了笔墨和书卷,有的是电脑和绿植,更加符合新生代文艺人的生活和审美。

从阳台看回客厅,木质的搁架在两个空间相互形成了呼应。一部分插座和开关的布局按照业主的特别要求集中在了搁架的后面,更美观也更加人性化。

再看一些细节设计,如入户门前地面的不同材质,如与餐边柜一体的矮座,如出双入对的灯饰照明,如吊顶的大倾角的设计,可见细致的设计用心。

整个开放空间,并没有复杂的装修与装饰,但整体上给人带来舒适感,细微处又传递出高品质的生活格调。让生活中的简单而美好,从物质繁华中脱颖而出,反而更惹人爱。

耐脏易打理是卫浴的必需样子,当然美观也是必不可少的,各种功能的空间布局以及饰面材质的组合搭配是设计中的重点。木纹砖为主的饰面呼应同为易湿区的阳台,整体风格更加统一。

由于餐厅那以及分离出了西厨功能,厨房内就重点满足中厨需求,使用了白色、橄榄灰和浅咖色的材质来表现空间的整洁、清爽与明快。

清新宁静本是北欧风格的特点,但要如何让卧室比客厅更静一筹?比如这间儿童房,设计将鲜艳的色彩集中在一幅抽象画上,使得整体的观感更加简约纯静,但又不失属于年轻人活力的一面。

设计使用衣帽间而非衣柜来收纳衣物,强调儿童的隐私和独立。双开单扇的尺寸,满足全年龄段的人性化定位。修长的木质门面和白色包线既带着几分优雅气质,又杜绝了墙面只有浅蓝色的单调感。

主卧的空间比儿童房的还要稍小一些,再加上双向采光的特点,对于家具的摆放方式的限制较多。这里的设计侧重于简约主义和实用主义,以及风格的统一。

在没有购置电视机的情况下购,把首饰柜与梳妆桌摆放在一起,使用更加方便。而美观性上稍有瑕疵,留给往后进行家具改造或是置换来解决。

房间整体的风格与儿童房相差无几,潜移默化地糅合一家人的审美习惯。床品选择浪漫的素色碎花,与儿童房中朴实的条纹格子是相异的生活状态表达。

客厅茶几上的小景,摆放着业主调配生活色彩的道具。

主卧首饰柜里,还没有琳琅满目的珠宝,只有几件叠得整整齐齐的温暖围巾。
——————————————————————————
如果你还有更好的案例或攻略,或者有什么和小美一起聊聊的,欢迎回复或者关注最美装修(微信号:zuimeizhuangxiu)一起吐槽。给我们投稿也是非常欢迎的!
更懂装修,更多好文章!