将海派洋房搬进高层,
百年「荣宅」的典雅流淌于此。
早春的成都阳光还不算太刺眼,路过鳞次栉比的成都南边住宅区时,时常有光从高楼若隐若现地漏出。泰悦湾小区门口,一个漂亮的女生风风火火走出来迎接我们,这是本次家探访的业主小雪女士。
即使是第一次见面,她用如火的热情和爽朗的笑声,一下拉近了此次采访的距离。正如她的家乡*疆新**,充沛的阳光中混合着芬芳的果味。在那片被称为“塞外江南”的西域中,丰裕的自然资源、充沛的阳光、广袤的疆土,造就了当地人们无忧无虑、直率果敢的性格。
这一点,在小雪身上体现得尤为明显。在还没完全拿到这套房子的居住权时,她便已经联系到了独立设计师巴比Q,开始规划美好生活的蓝图。当被问道,如果没买到这套房子怎么办时,她爽快地回答:问题不大~

屋主小雪,摄影:邹邹©宅二三
小雪在*疆新**本科读的是英语,但毕业后却发现实在不想做老师。比起教书育人中那些固定的一板一眼,她更喜欢跳跃的、富有表现力的创造性工作。于是,在上海学习工作三年多后,他们和朋友创业来到成都,开始了“有朋友、有猫、有理想居所”的另一种生活。
逃离逼仄的大城市,但海派风格却在她的心中扎了根。正如百年荣宅,那个堪称上海最为高雅的花园洋房之一,内部构造完美融合了中西式风格,细节处更是凝结了上个世纪的建筑美学设计,呈现了当时的奢华生活氛围。小雪痴迷于如此颜色深沉、有包裹感、厚重感的装修,“特别有家的感觉”。
与独立设计师巴比Q的相遇让小雪倍感惊喜。两个灵动的女孩仿佛彼此寻得了知音,一个善于做梦,一个则擅长将梦变为现实。在多个回合的碰撞之下,这套住宅既拥有「荣宅」的复古与雅致,也展现出一种近乎“现代折衷主义”般的多元混搭美感。
01
户型
设计师巴比Q在完成一套设计方案前,有提前给业主布置前期作业的习惯。她认为家居设计是一件互动性很高的事情,“有来有往”才好玩。

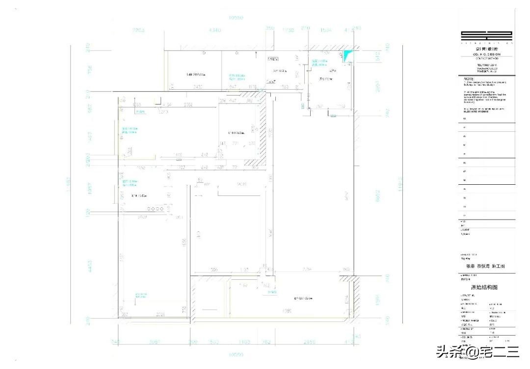
原始户型图
小雪在备忘录里列了近三十条关于理想居所的打造细节,从入户的收纳到厨房配合的电器,从客厅的“猫小窝”到卫生间的复古浴缸…业主一个个碎片的想法,到了靠谱的设计师手中,便成为了一套房屋落地的“to-do list”。
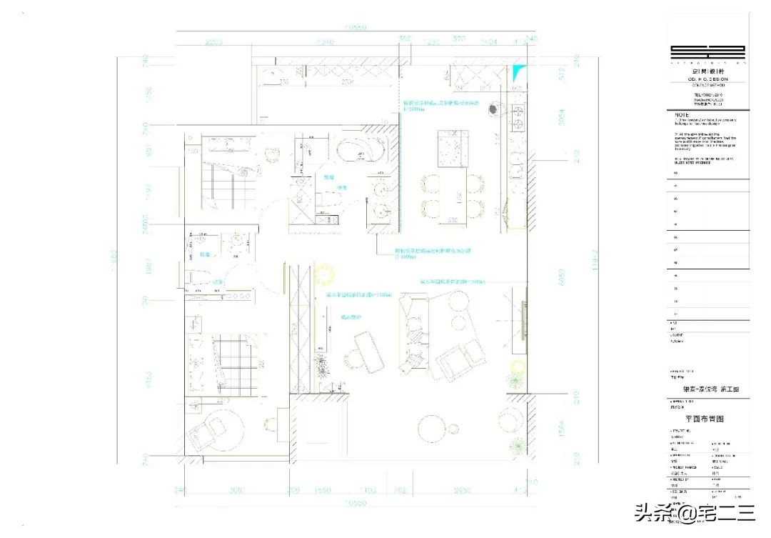
在户型的改造中,设计师为拥有隐藏身份——甜点师的小雪量身定制了开放式厨房,也根据目前“不需要考虑儿童房”的现状打掉了一个房间,增加主卧收纳的同时也打造了一个开放的工作区/书房。而次卧与卫生间则通过有趣的“此消彼长”,圆了小雪的浴缸梦。同时,还将淋浴独立化,加强了洗漱台的功能性。

改造后户型图
设计师巴比Q说,我们都在表达着对好事物的理解,不是试图要说服谁,而是博弈。因为设计师本就该是除了业主以外最希望家好的那一个。

摄影:邹邹©宅二三
02
客厅
复古感贯穿了这套住宅的每个角落,尤其是客厅。尽管灵感来源于“荣宅”,但小雪对「海派复古感」的幻想并不僵化。

摄影:邹邹©宅二三
作为拥有浓重个人主义色彩和独立精神的水瓶座女生,她喜欢的是一种调调,于是,所有看着顺眼、感觉合适的东西都被她装进了这个客厅:纯实木电视柜,焦糖色丝绒多人沙发,欧式烛台吊灯,英伦格子布艺休闲椅… 复古是一种氛围,而不是一种风格。


摄影:邹邹©宅二三
在整个起居室墙面的改造中,设计师放弃了颜色单一的乳胶漆和容易受潮发霉的墙纸,选择了更加环保耐磨且质感高级的海基布,这样使整个空间更加接近屋主可承受的色度,而优雅细腻的纹路更凸显墙体质感。
客厅与阳台打通,使得整体偏深色的空间看起来更加通透与明亮,连接处留有垭口,墙面做弧形切角处理。原本设计师想要做更有复古质感的连拱设计,但小雪却希望它更简洁一些,于是在“碰撞”中,有了如今的模样。门垛部分,设计师在此打上了整面的柜子,为家中增加了大量的隐藏收纳空间。

摄影:邹邹©宅二三
小雪日常的兴趣爱好有很多,但最钟爱的还是画画。她喜欢在iPad上画一些关于猫的可爱插画,也喜欢在手账本上涂抹上天马行空的色彩。于是,设计师为她悉心准备了一张颇具美式田园风的实木圆桌,搭配来自故我今我的水曲柳实木框架手工藤编靠背椅,变成了阳台上的绘画角。 一个小小的画架,为画画时增添了一份仪式感。

摄影:邹邹©宅二三
清晨,阳光顺着窗户爬进百叶窗,透过阳台的绿植再将阴影斑斑点点地洒在花砖地面上。在这里她可以拿起画笔,将脑子里有关美的画面描绘下来,也可以什么都不做,让思绪任意漫散。

摄影:邹邹©宅二三
在客厅摆件与装饰物的选择中,除了一些旅游时淘来的可爱摆件,小雪也愉快地与我们分享起了父亲带自己去戈壁滩上捡石头的美好回忆。*疆新**是一片神奇的土地,连同那里的石头,都美如玉。当小雪打开装满宝贝的盒子时, 那些曾听闻但不曾见得的迪坎儿彩石、玛瑙石、*疆新**石、额河石… 都突然具象地陈列在眼前,令人目不暇接。


摄影:邹邹©宅二三
虽然住在城南的高端小区中,但小雪并不致力于用家装来丰富自己身上的“中产”标签,相反,她坦言自己所选择大多数家具都是网购的,有些甚至便宜到不可思议。
尽管追求品质生活的先生有时候会持不同意见,希望购入更昂贵的家居单品,但小雪却用实际行动证明: 一个有质感的家,不是用金钱堆出来的,而是每一件烘托氛围、贴合秉性的家居好物在与主人日复一日的互动中,逐渐形成的。
02
厨房/餐厅
作为一名美丽的甜点师, 厨房是小雪大显身手的地方。因此,设计师为其量身定制了一体化的餐厨空间。L型的动线不仅将“进门—下厨”的距离缩到最短,同时也在视觉上起到了延伸效果,开阔而整齐。
厨房经常被使用,但却一点也不显凌乱,这得益于设计之初的巧思:在有限的空间内拓展尽可能多的隐藏空间。较高的岛台或许牺牲了一定的美观度,但却足够容纳下一台解放双手的洗碗机。

摄影:邹邹©宅二三
旁边的实木高柜门中则更是别有洞天。不仅能够顺利安放蒸烤箱,还隐藏了拆不掉的结构柱,同时也容纳下了或许会看起来乱糟糟的蛋糕模具等等。贴心的设计师为了让小雪能克服身高差,更好的利用岛台,更是给她定做了一个脚蹲。每日,芳香会从这里飘弥,钻入家中的每一处缝隙,为家中注入一丝甜蜜的烟火气。

摄影:邹邹©宅二三
实际上,在这种复古风格的家装设计中,开放式厨房是一个很大胆的做法,因为木色的统一并不容易。一旦没选好材料,观感会大打折扣,显得凌乱而不美观。
为了做到最佳性价比,设计师更是发动全身气力,提前调好颜色,打好色板,分别交由各大商家进行定制。

摄影:邹邹©宅二三
起初,小雪并不能接受看起来似乎没什么用且预算高昂的护墙板。但在设计师的坚持下,玄关入门处至转角到卧室的L型墙面还是都穿上了木质墙裙,而如今,它成为了家中最美的地方。
墙裙有一种天然的复古情怀 ,木质半高墙板底部落地,在到顶之间的位置留出空白,以腰线收边,空白处配以好看的装饰画,眨眼片刻,海派风便扑面而来。

摄影:邹邹©宅二三
所搭配的6人餐桌不仅色系上与整体实木风呼应,修长的桌面也很好地起到了空间分割功能,为两侧留有狭长的过道,加强整体空间的纵深感。搭配的温莎雕花餐椅整体造型优雅精致,线条优美流畅,如同竖琴一般简约大气。
不仅猫猫们喜欢跳上桌子,在这里优雅踱步,小雪也时常把这里当作第二个工作台。点上一盏香薰,灵感便如同淡淡的香味,不尽流淌。

摄影:邹邹©宅二三
03
卧室
与客餐厅的海派风不同,卧室的打造则更加尊重小雪先生的喜好。走进卧室,就像是走进了美国乡间的小别墅。设计师为墙面选择了一款复古小碎花墙纸,清新而不沉闷,实木藤艺双人床搭配橙黄真丝床品,则为空间增添一份轻盈与温馨。而特别定制的中古梳妆台、复古全身镜、更是为整体空间加注了浓浓的年代感。


摄影:邹邹©宅二三
不规则排列的装饰画或挂在墙上,或靠在墙边,或放在桌子上,时刻营造着一种静谧之美。这些都是小雪亲自挑选出”最有感觉“的几幅画,由设计师打印出来,再装裱上墙,不仅美观,性价比也极高。
值得一提的是,主卧中完美复刻了美剧《良医》中令人过目难忘的木质衣柜。从选材、打版到着色等各个环节,设计师都严格进行着把关。复刻并不是一件容易的事,挑剔的她始终坚信“差不多就是不一样”,也许正是这一份笃定与倔强,才助她完美地为业主打造出心仪的家空间吧。



摄影:邹邹©宅二三
次卧延续了美式风格,墙面选择的是更为简洁的千鸟格壁纸。复古的灯品是房间中最不可忽视的加分项,不仅不占据过多空间,还能在很大程度上提升房间的整体氛围。
午后的阳光从木质百叶窗倾泻进来,与浅绿色鹅绒布床面相映成趣。尽管在改变户型时,次卧的面积被卫生间“侵占”了一部分,但在合理的布局和装饰下,房间却丝毫不显局促,透亮而清新。

摄影:邹邹©宅二三
闲暇时,顺着窗户的方向往外眺望,不禁让人想起电影《莫娣》结尾的那一幕:「The whole life is already framed, right there.」(余生如画,早已被装裱)。


摄影:邹邹©宅二三
04
书房/多功能厅
为了满足自由职业的小雪在家办公的需求,设计师将其中一个卧室的墙面全部打掉,与客厅、餐厅、阳台无缝连接在一起,做成了“餐厨起居一体化”的开放式多功能空间。
这一设计解构了传统“书房”的概念,不仅满足了“轻办公”的需求,也作为一个陈列装饰品、收藏品的角落,肆意展现出屋主对“家”这一空间的诠释。从某种程度上来说,灵感挥洒的地方,也同样是灵感积聚的地方。

摄影:邹邹©宅二三
如果说一束干花、一方烛台、三五个淘来的有趣玩意儿和几幅挂画还不足以构成这个家中最浪漫的角落,但凑近些,会留意到一张小小的照片:微风中,手捧花束的白裙少女含羞看向自己的爱人,爱人也用笑意回应。
小雪开心地向我们介绍起这张“婚纱照”,那是他们去龙泉山观景台上露营时,朋友随手拍下的。那天她穿着50块钱的裙子,没有请专业的摄影团队,连照片也是从地铁站随身路过的打印机上打印下来的,但她喜欢这种真实。如同她的性格一样,这个家中的每一个角落,都不刻意。



摄影:邹邹©宅二三
在书房的角落,还摆放着一个定制的木柜。打开柜门,感应灯应声而亮,四处淘来的各色中古杯子在光线中折射出缤纷的色彩。小雪很少用这些玻璃杯真正喝点什么,但却喜欢它们的“美而无用”。
正如周作人先生所说,“我们于日用必需的东西以外,必须还有一点无用的游戏与享乐,生活才觉得有意思,我们看夕阳,看秋河,看花,听雨,闻香,喝不求解渴的酒,吃不求饱的点心,都是生活上必要的。”
-
当问及“家”的定义,屋主小雪笃定地认为,有人才有家。家装风格是屋主审美与喜好的集中体现,但却不能反过来定义和约束人。
她喜欢复古的风格,但不代表性格沉闷、无趣,她也喜欢多元的色彩,甚至想在下一套房子中尝试大胆的对冲效果。她总是眼神亮晶晶地想要去做新的尝试,这种不断将灵感付诸实践的感觉让她兴奋,而她的快乐也时刻感染着身边的人。



摄影:邹邹©宅二三
这套小小「荣宅」是她与先生的第一套房子,也许没有尽善尽美,但在设计师与他们的共同努力下,仿佛真正定格了20世纪初上海滩住宅蓬勃时期的绝美瞬间。
小雪说,她最喜欢在夜晚一个人躺进卫生间的复古浴缸中, 水温,蒸汽,灯光,都刚刚好消解掉一天的疲劳。
-
设计师巴比Q(何超)
Q:本次案例中您最满意的部分是什么?设计灵感来源于何处?
A:我最满意的是整个过程的配合,而不是哪一个部分的好坏。做家装设计时,我们依托于业主的喜好,要做的事情仅仅只是“通过我,表达你”。这也是我让业主做“前期作业”的原因,小雪跟小张两口子喜欢「荣宅」,这就有了这个家的底色。
Q:您一贯秉承的设计理念是怎样的?什么样的设计能被称为“好设计”?
A:如果一定要问我有什么理念要秉承的话,那就是我入行时师傅告诉我的:室内设计师不是艺术家,要随时进入并且随时抽离。是的,我们要做的事协助工作看上去艺术,实际上需要极度琐碎。而好的设计不就是完工时做到了客户的期待之上么?
Q:您平时有哪些兴趣爱好?
A:我应该是一个好奇心很重很重的人,爱好太多,有趣的我都喜欢,但也能安静地看一整天书。
Q:最喜欢的建筑师/设计师/艺术家是谁,能简单讲讲为什么吗?
A:我喜欢安藤忠雄的安静、纯一不杂,也酷爱Kelly Wearstler 的free spirit。对我来说,美观和实用是一回事,都是能让人感到心情舒畅的一种状态。
-
主编: 牧之、鹤鹤
监制: 安琪
执行主编: 涩々
编辑: Mao
撰稿: Mao
摄影: 邹邹©宅二三
平面设计: 蛋蛋
校对: 白
收录话题:#家设计#家居设计##家具##软装##设计#
原文链接: 110㎡平层变身复古洋房,她与她的“荣宅旧梦”