
灯光剧场 ©ELBE
感谢 Sò Studio 对gooood的分享
théATRE,剧场—聚场,一个超现实的茶园,在都市里享受茶的一件“ceremony”(仪式感)的事。
▼餐厅一角,富有仪式感 ©丁宇豪

“打开”是我们对空间做的第一件事情,将外立面打开留下方1/3的空间与室外完全相接;希望客人能从第一眼感受到室内发生的故事,第一眼看到我们的茶园和产品。外立面的材质第一次尝试用U型玻璃,玻璃本身的肌理感可以让我们看到室内斑驳的影像像油画笔触的感觉。
▼餐厅“打开”的立面 ©丁宇豪

▼U型玻璃细部和接待台 ©丁宇豪

外立面打开,将室内茶园的白色飘带露出来,形成了一个共享的茶园空间,加强了内与外的对话。从外部看白色飘带连成一体内部发着暖光也将整个视觉中心都停留在茶园里,走进看模糊的影像,不真实的虚影让人想马上走进去。
▼“橙色”的白空间 ©丁宇豪

在我们的空间内部第一眼看到的感觉应该是“橙色”的白空间,我们这次的灯光用了2700k的色温有些重点区域甚至用到了2200k的色温的光源,暖暖的琥珀色让人更容易有亲近感。从设计的角度讲我们希望的空间是整体的、朴素的、高级的;并不想让颜色分散人的注意力。
▼“橙色”的白空间 ©丁宇豪

4种不同肌理的白色让空间的前后关系自然的凸显出来,同样3种白色的石材通过不同的冷暖和反光强化空间的冷静极简;而外立面的帘子和白色金属的飘带,形成了最强烈的反差。我们塑造了20%距离感,又营造了50%亲密感,模糊暧昧的关系让空间的超现实的基因深入人心。
▼不同肌理的白色凸显前后关系 ©丁宇豪

清楚的记得我们在设计中有这样一段对话:“当你看到Constantin Brancusi的工作室有什么感觉?有点说不清散落在四周的雕塑,想走进看看每个雕塑的表面,又觉得好像挺相似的。天窗的光线让每个雕塑都有了阴影。”也正是Brancus的雕塑作品也正是我们装置的灵感,不同的几何雕塑造型给空间带来了一些棱角和趣味。
▼玻璃雕塑 ©ELBE

吧台与Vip相连在空间的另外一头。我们尝试将吧台区域营造一个更加PURE(纯净)区域,将整体抬高强化其独立性;吧台右边相接VIP,入口的感觉同样延续外立面半开放的感觉。
▼吧台和展示区 ©丁宇豪

我们在内部做了一个特殊的灯光设计留点惊喜给现场的客人。可变色的灯光控制会在每天八点以后让这个“剧场”整体进入另一种情景模式。
▼灯光剧场 ©ELBE

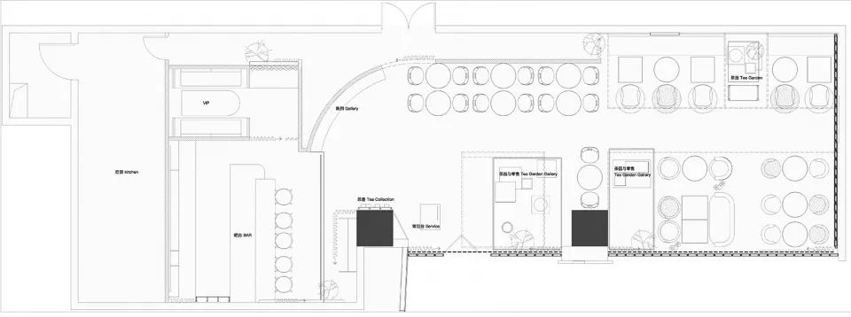
▼平面图

项目名称:thé ATRE茶聚场北京王府中环店
面积:135 m2
地址:北京王府井大街269号王府中環东座4层404C
客户:théATRE
影像制作承制公司:牧一制作 Concept+Production
摄影师:丁宇豪、Elbe
设计团队:Sò Studio(http://sooostudio.com/)
家具品牌:Cassina; MatzForm; Sancal
灯光品牌:&tradition
灯光设计:AILD筑映照明设计
