“等我老了,回农村老家,没事种种菜、养花草,闲时喝点小酒,约个小牌,这就是我想要的田园生活...”
对于很多人来说,回农村自建房的原因大部分都是想回归真正的生活,想落叶归根,李老板也是这样。
李老板找到我说自家的宅基地不是很大,赚了点小钱想回乡建个别墅风光一下,喜欢欧式,根据李老板的需求,我们给他量身定做了一款小宅基地豪宅。






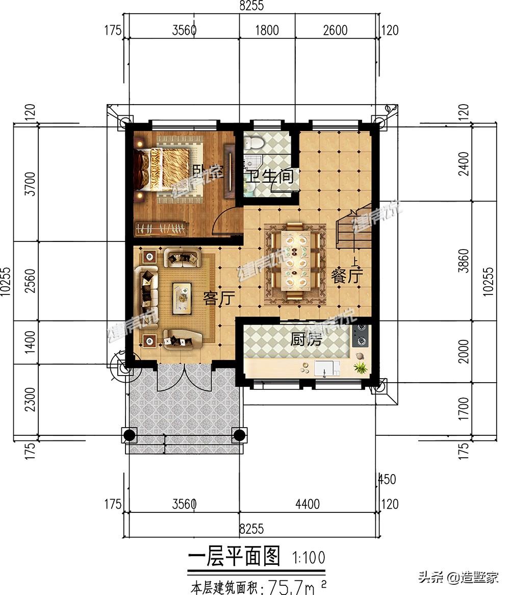
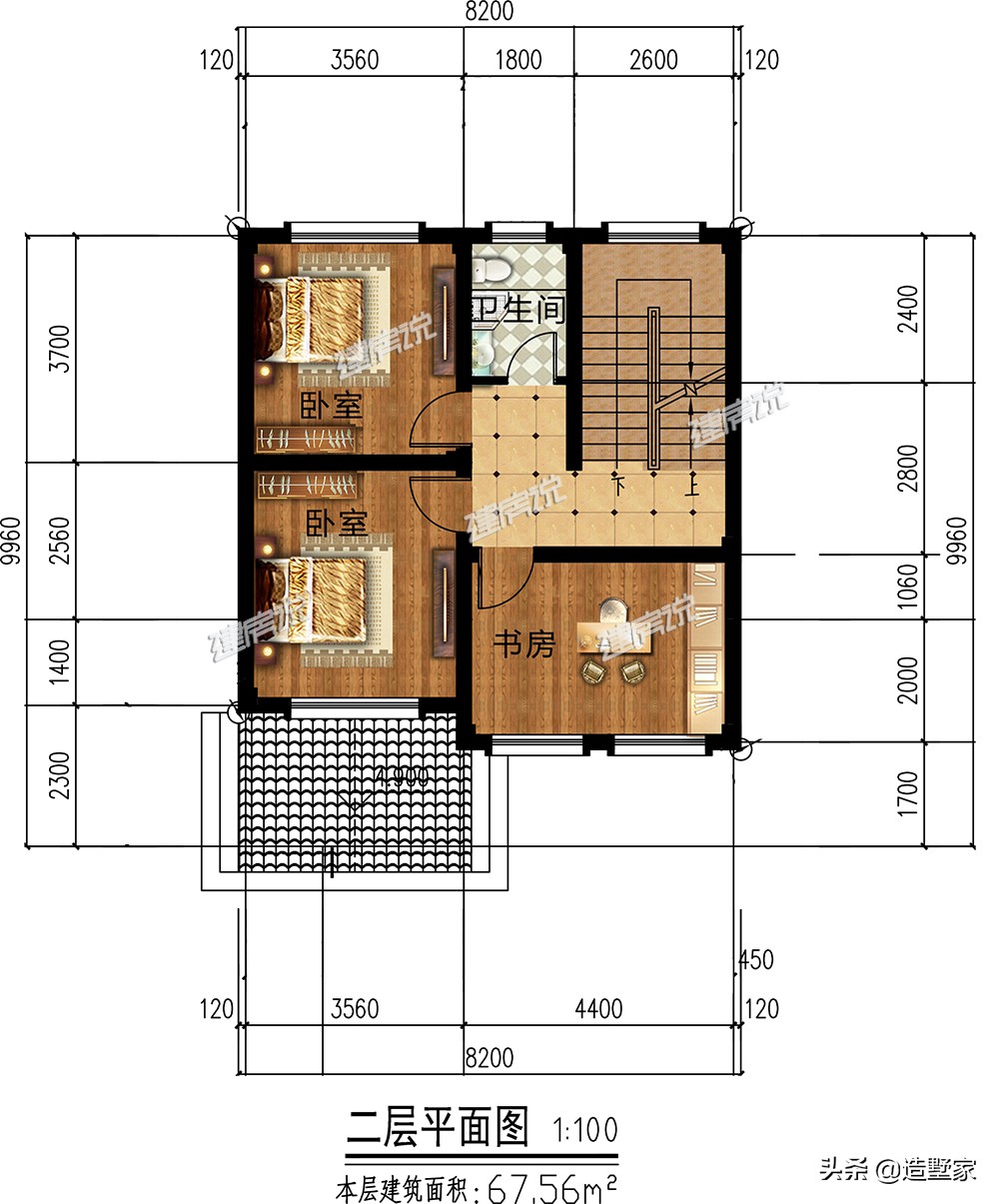
编号:JF8132,层数:3层,结构形式:框架结构,造价23-30万,开间8.255米,进深10.255米,占地面积75.7平方米,建筑面积197.22平方米,建筑高度12.1米
三层欧式别墅,精致的雕花搭配大气的罗马柱,线条优雅别致,气势一点儿也不输那些大面积豪宅,带露台,闲时喝茶赏花,过惬意的人生,这样的生活谁不想要呢?
小宅基地别墅方便日常打理,也更加温馨,家里宅基地小的朋友抓紧时间盖起来吧,建栋这样的别墅,日子一天比一天红火!