编者按:很多朋友问农村宅基地怎么审批,每个地方都不一样,今天晒家的罗先生就给我们带来了江西省萍乡市当地的宅基地审批流程,还给我们分享了5个建房设计小技巧,网友看了都说非常实用,。一起来看看江西罗先生的晒家故事。
大家好,很高兴在这里分享建房故事,能把自己的新房记录下来,在住宅公园发表,分享给农村建房的朋友们。老家永远是避风港,建栋新房子,便于父母养老,平日自己回家也过的舒适。不管是工作累了,还是面对任何的苦难,家永远是最安全最温暖的。经过这次的疫情,愈发显得农村有房的重要性。

乡村道路、绿化景观都非常不错,空气清新,鸟语花香。门口是大鱼塘和菜园,能吃上自家种的绿色蔬菜,自家养的天然塘鱼。在这次疫情下,很多人在家呆了个把月就憋不住了,而我却不然,在家吃好喝好,住在老家的新房里,各个方面都比城里住的舒适。

现在农村建栋房子不容易,对于建房审批我印象颇深,很多农村建房朋友都在询问申请手续,我现在给大家分享一下我家宅基地审批手续。
审批流程
1、首先进行申请建房的报告,然后请邻居和组长签字,最后递交给村委会签字盖章。
2、村委会收到报告会拍建房人照片公示半个月。在公示期间,建房人申请建房表格递交乡镇土地办,土地办收到建房表格派人实地考察。
3、考察后等待审批,大概半年后审批下来用地规划许可证,上面标注宅基地建房面积,层数,高度等。拿到用地规划许可证,便可以动工建房了。
我家审批用地信息为:占地面积为120平方米,总面积不超过350平方米,最多建三层半,总高度不超过13米。建房时候有很多人让我建三层,我觉得没有必要,一来房子住不完,搞卫生又累;二来不如把剩下的钱用来装修,这样子两全其美。

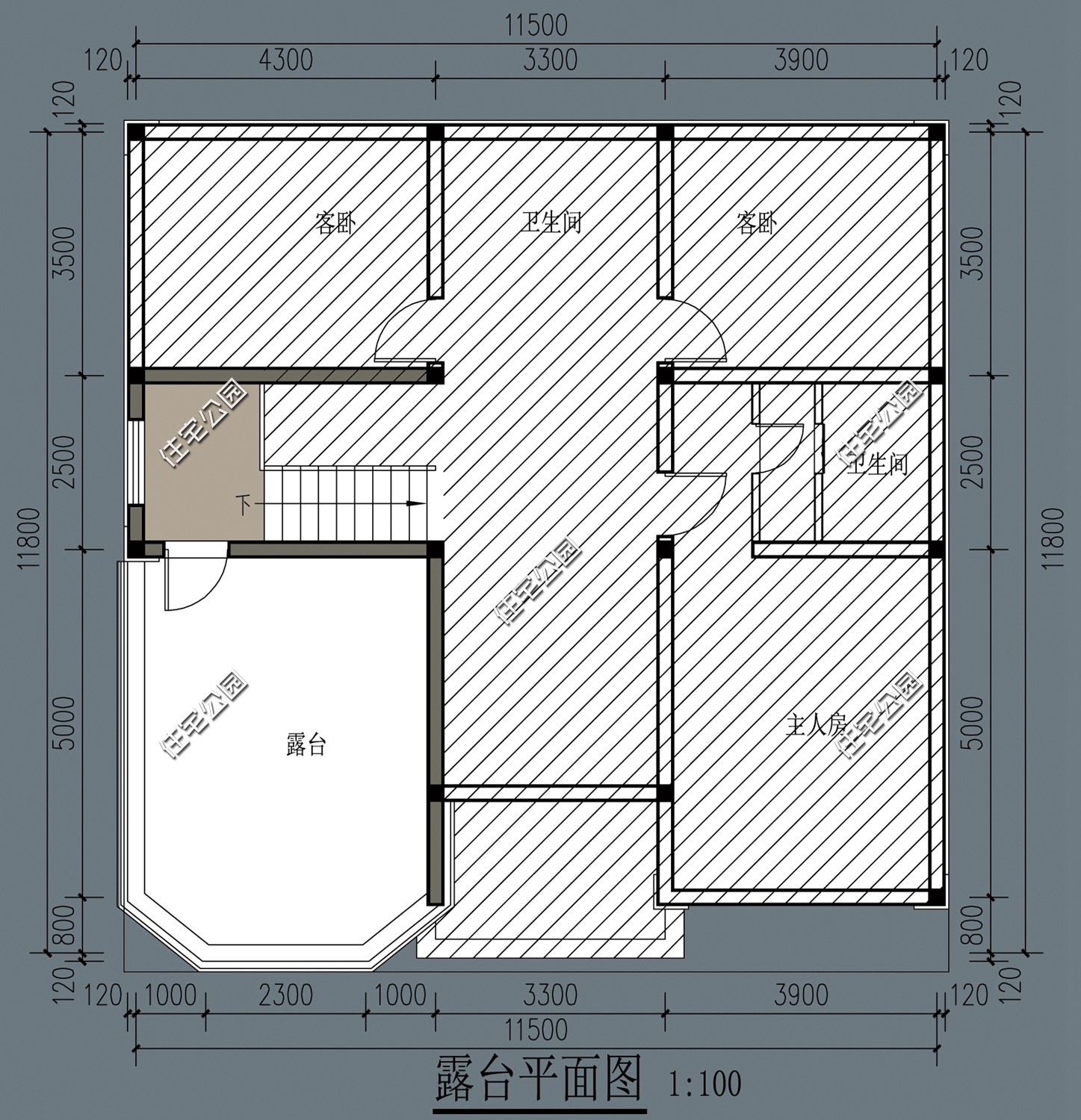
房子建筑面积136平方米,5室3厅3卫1阳台1露台,图纸是找朋友设计的,现在找不到图纸了,布局和住宅公园这套类似,只是是镜像关系,左右对调。





建房时主体半包加上材料费,毛坯房大概花费25万,硬装修花了45万左右,买家具家电大概花费13万,造防护坡+院子硬化+院子护栏大概花了8万,总费用90万出头。

装修风格一楼主要以黑白灰为主,接待家人简约大气,二楼加了金黄色,增添稍许温馨。

设计小技巧分享
房子室内有几项很不错的地方,我分享给大家,大家如果觉得这样的设计有用,便可以参考一下。
1、楼梯间下方做为储物室,还特别设计了鞋架。既充分利用了空间,平日生活也非常舒适。


2、卫生间采用干湿分离,淋浴完以后卫生间地面不会湿漉漉的,不怕滑倒或者上厕所踩湿鞋子。


3、客厅弧形窗的设计,可以最大化采光,也增加室内的使用面积。


4、衣柜采用嵌入式,将衣柜嵌入墙体之中,不占室内面积,看起来也不显突兀。



5、基础施工时设置了一个小小的架空层,可以一定程度上起到防潮的作用。


以下是室内其他各个房间的情况。
一楼和二楼的客厅,一楼客厅适合平日接待客人或者白天在下面活动的时候看电视聊天,二楼小客厅则更适合晚上一家人温馨。


厨房餐厅相连,搭配现代化的餐桌、橱柜,美观又方便。


卧室一共设计了5间,楼上3卧,楼下2卧,平日满足家人所需,来一两个亲朋好友也能留宿。


大露台的设计,在城里如果你想要一个这样的露台是不可能的,只有农村建房才能做到,午后在露台上看看书、喝喝茶,小憩一会,真是惬意。


最后祝愿住宅公园的粉丝朋友们都能建一栋自己喜欢的房子,房子不用太大,一家人住的舒适温馨就好。在任何困难和灾难来临之时,都有自己的一个“避风港”。
关注住宅公园,每天分享乡邻晒家。