楼盘名称:文景观园
建筑面积:360㎡
使用面积:280㎡
户 型:三层复式空间
设计风格:欧式风格
工程造价:250000元
主材造价:650000元

手稿一

手稿二

手稿三

一层原始平面图

一层平面布局图

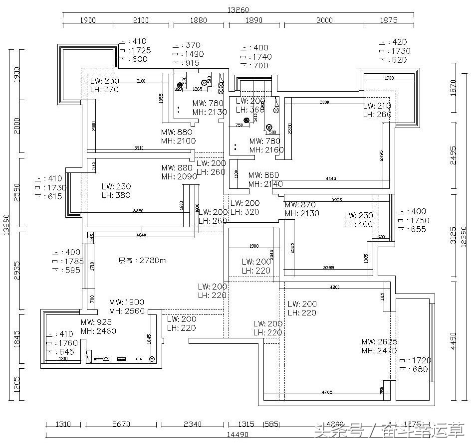
二层原始平面图

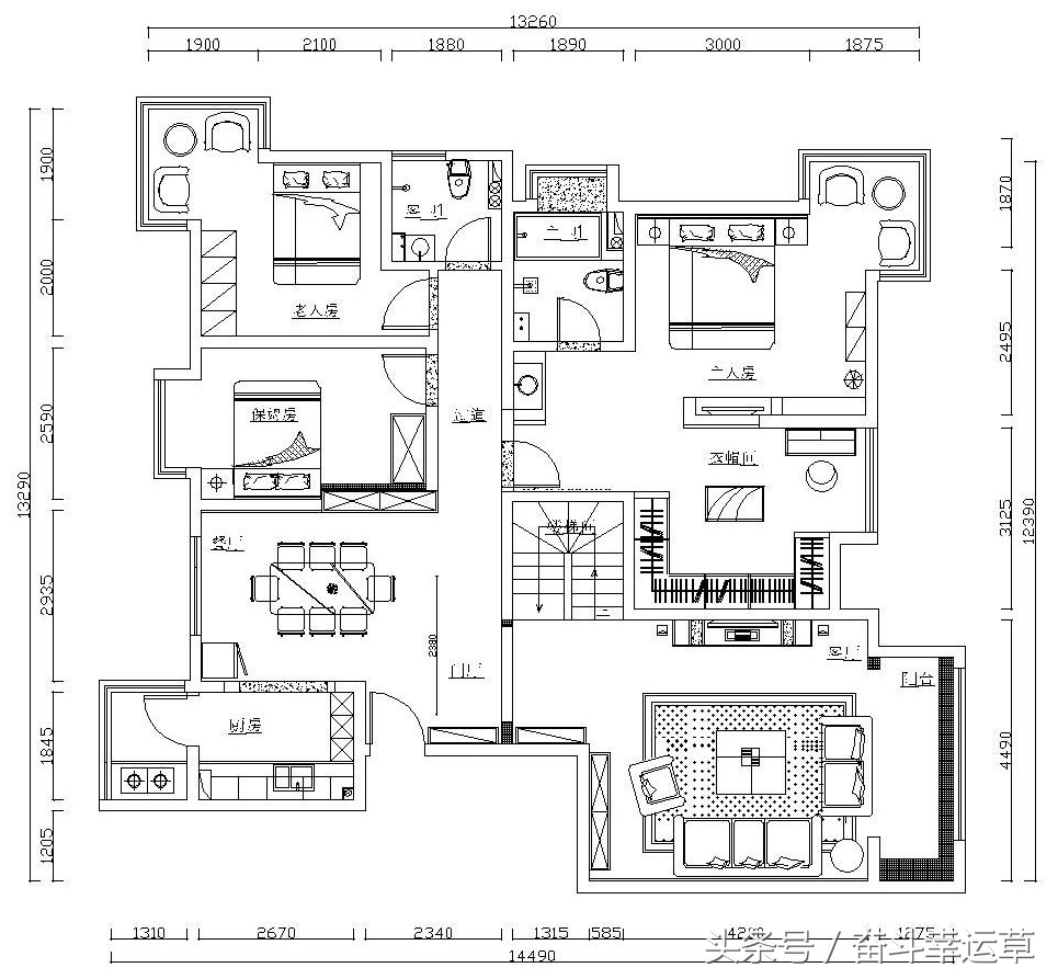
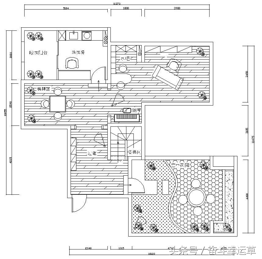
二层平面布局图

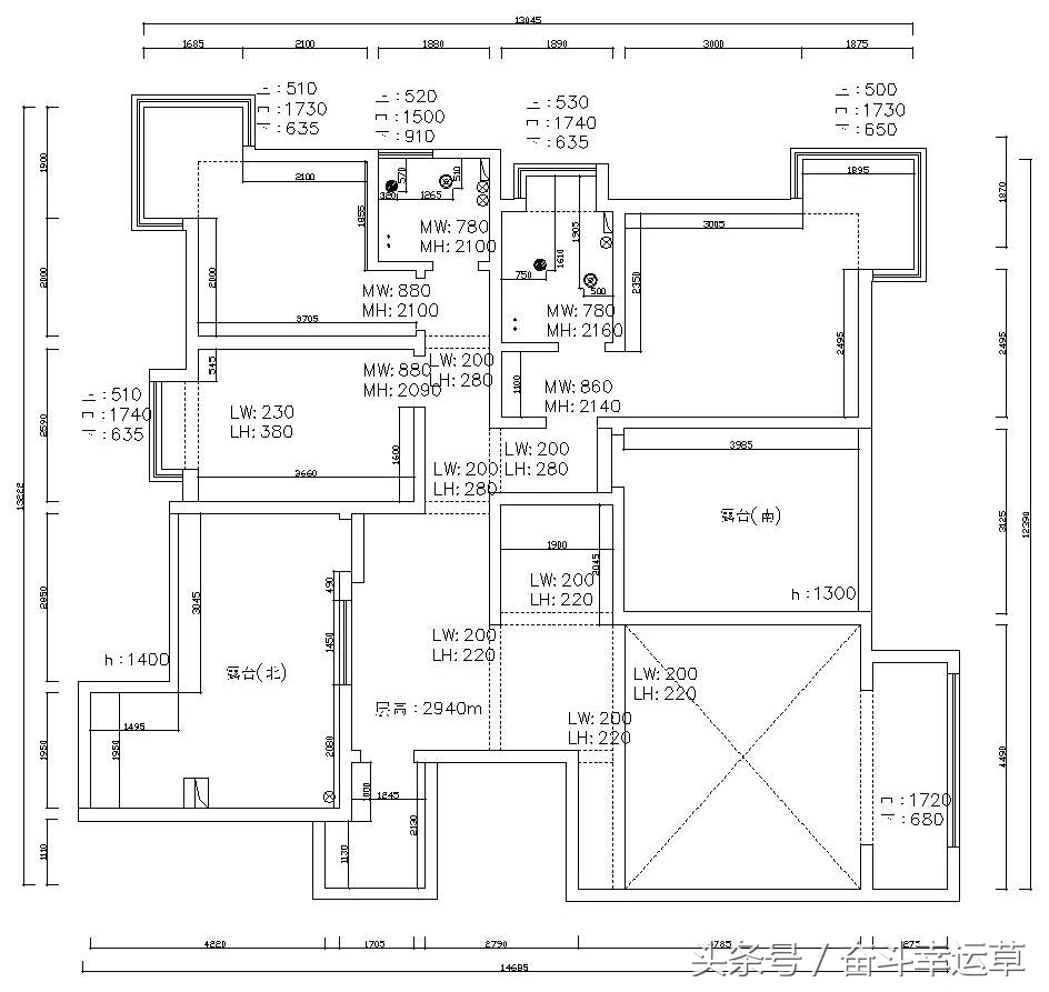
三层原始平面图

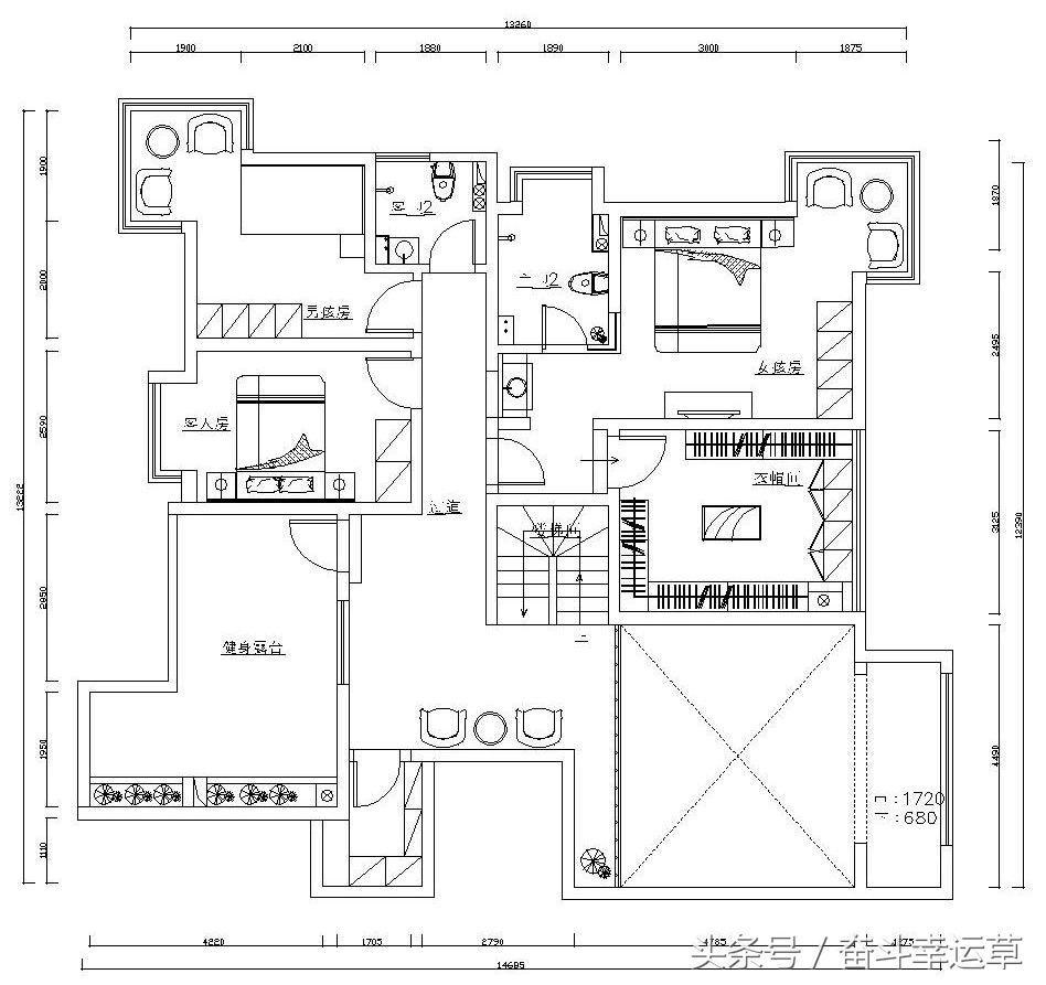
三层平面布局图
环保设计理念:家庭装修不是材料的累加使用、复合使用。应该做到简装修、重装饰。
风格说明:本案将简约欧式与田园风相融合,呈现出“欧式混搭风格” 的设计手法。此种风格所表现丰富的文化艺术底蕴,开放、创新的设计思想及其尊贵的姿容,一直以来颇受众人喜爱与追求。混搭风从繁杂到简单、从整体到局部, 精雕细琢,镶花刻金都给人一丝不苟的印象。一方面保留了材质、色彩的大致风格,同时仍然可以很强烈地感受传统的历史痕迹与浑厚的文化底蕴,同时又摒弃了过于复杂的肌理和装饰,简化了线条。此空间为复式居住空间,客厅上方为挑空,设计主要是功能布置为主,空间注重软装与硬装的复合使用及搭配。

餐厅一

餐厅二

客厅一

客厅二

客厅三

二层平台

主卧一

主卧二

女孩房

男孩房

书房

棋牌室

空中花园