案例名称:滨江奥城
设计风格:简美风格
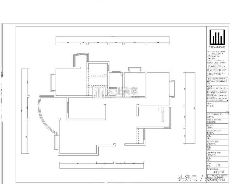
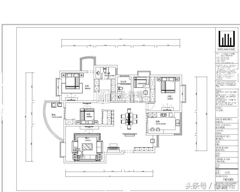
户型面积:4室2厅2卫
本案位于建邺区200平方户型。户型比较方正,通透,采光较好。
初次与户主接触是在他家的新房里,通过交谈,户主是第二套房装修,加之他们都是教授,要求设计的稳重点颜色少深点。我们把原来储物间的墙拆改成酒柜,和小房间衣柜做成背靠背的形式,这样即节省了空间又有美观性。靠东边的房间比较长,故把靠近旁边小房的墙拆掉往后改动,这样房子变的比较方正了。回来之后通过和客户的交流我们把风格定义在简美风格。配以米色或者皮质沙发,驼色墙纸,水晶灯具等,章显低调、大气、上档次。






更多设计细节、装修案例,装修报价,获得设计方案,量房验房服务……,敬请关注【*京大南**业美家装饰官网】,记得预约哦,预约后,根据您的需求,为您准备装修预案!