一个房子的户型好不好,每个人评价的标准不一样,小助手分享了那么多套装修案例,在我看来一般户型较好的前提一定是有一个方正通透的客餐厅空间。
这类户型是没有沙发墙的,整个主空间呈一体化,显得宽敞舒适,也便于家人之间的娱乐互动。等我有钱,再换房子,就打算买套没有沙发墙的房子,学今日屋主她家这么设计,光是看着都舒服~

基本情况和设计理念简介
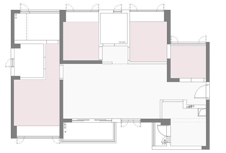
坐标广东深圳,这是一套使用面积120㎡的四房两厅一厨两卫住宅(数据不含公摊),屋主是一对年轻夫妻。四个卧室都要保留,预留未来的儿童房和长辈房,还要做出一个客房,并兼备办公阅读、临时健身功能。

户型整体方正,主卧、客厅、餐厅、厨房全朝南,采光很好,客餐厅通透大气,带有单独玄关区域。结合屋主实际生活诉求,考虑到空间利用和视觉美观性,设计师针对原户型做了如下改造细节:

①拆除狭窄玄关隔墙,打造开阔玄关空间,设置充足入户收纳空间。
②打通厨房外迷你阳台,扩大空间,完美利用。
③改动儿童房门洞,使得公卫洗漱台可以外置,实用性倍增。
③主卫改衣帽间,主卧阳台改主卫,空间极致利用。
文中有多处具备普适性的巧妙设计“神细节”,共总结出7处,在文内有做小标题标注哦,方便大家参考。
屋内实景
①细节一
狭窄的入户门厅打通后,少量借用了厨房空间。利用烟道外围的一圈空间,打造一组L型顶天立地柜,柜子分成两面,左侧朝大门处为常用鞋柜,右侧朝客厅方向则是备用鞋柜,满足充足收纳机能,还完美包裹了烟道。

白色极简哑光门板,无拉手设计,倍显简约。适当的中底镂空,少量的胡桃木色点缀,让简约鞋柜也更实用更灵动。
墙体打通后,空间开阔了,但是入户门厅的空间划分效果欠佳,设计师巧妙利用拼色六角砖设计,单独铺设于入户处,有趣又生动,更耐磨更好打理。

②细节二
镜头切向进入大门的右手边位置,这里是客房隔墙,利用墙面打造入户玄关端景,一正一反的凹槽式拱门造型超有设计感,一边安装温润的木质护墙板,一边涂刷哑光黑板漆,层次鲜明。左侧可以作为DIY手绘墙,右侧可以作为衣帽悬挂区。

▲客厅、餐厅全景
没有沙发墙的房子,必定有一个通透完整的客餐厅空间,一般这类户型的采光也很棒。屋主家主空间区朝南,带有一个落地窗阳台和小窗,配合全屋大地色为基调的装修效果,倍感惬意舒适,即便拍摄时没有绿植点缀,也充满了自然清爽的居家气息。

▲餐厅
屋顶没有突兀的房梁,方正的顶面可以适当四边走顶,这样更有利于整体视觉层高的拉伸。沙发背后,带有实木栅格框架,有一种天然的“屏风”效果,从视觉上完美划分空间。

③细节三
餐桌椅左侧,靠着窗户下方,打造一体式的餐边柜和定制卡座设计,依旧是隐形门配置,让大量杂物收纳藏而不露,未来有孩子后,各种玩具都能存放在卡座下方。

墙面两组洞洞板,除了装饰,也是优质的储物挂件,可以自如的匹配不同挂钩,配件,从而打造照片墙、钥匙收纳区等功能,小巧精致!

④细节四
站在客厅看向玄关区域,玄关区域的吊顶,沿着左侧客房墙体结构,做了拉平处理,从视觉上,高低错落,完美拉伸了客餐厅层高。同时也藏入了空调风口,下风口下方,沿着客房侧面增设了带有展示效果的壁龛柜,以蓝色打底,强化室内色调丰富感,同时完美收口,美观大气,不浪费半点空间。

▲电视背景墙
⑤细节五
电视背景墙右侧是进入主卧的门洞,突兀的门洞必然会影响整个电视墙的设计整体性。设计师巧妙利用护墙板材料,让主卧门融入电视背景墙当中,为了让隐形门效果更好,底部做了木色的分层搭配,并沿着线条结构,在左侧安装了壁挂式的电视机。整个视觉效果,轻盈、简约,非常漂亮。

推开门进入主卧,平时关上门,若不仔细查看,还真不能发现这里有个门洞。

细腿的金属布艺拼接单靠椅,轻便好移动,可以随意调整摆放位置,更显灵动自由。右侧的过道墙面涂刷灰色底漆,百搭高级,陈列大小各异的原创艺术装饰画,让室内空间更显文艺之气。

客厅一旁直达朝南阳台,这个阳台主要用于洗衣晾晒,白天的时候会关上白纱帘,用于遮挡杂乱的晾衣服,朦胧的日光下,倍显温馨,仙气十足。一大一小的圆形浅木色组合茶几,可以叠加存放,更节约空间,高低错落实用好看。

▲厨房
主空间整体是暖色调,为了增加空间对比效果,厨房就采用了更为高级的整体黑白灰色调,橱柜柜门采用了仿石材花纹,复古又高级。台面则用到了不锈钢材质,干净卫生好打理。

生活中,可以选择一些跳色系的精致碗盘,光是摆放在厨房都觉得精致漂亮。美好生活,往往都是源于一些小细节。

▲儿童房
给未来宝宝打扫的儿童房,真是高级不失童趣。整体色调和客厅基调一致,没有明显的性别差异化,男宝宝或者是女宝宝住都很合适。儿童房其实采用成品柜子更环保,不过提前定制好柜子,也能提前通风散味,不必担心环保问题。右侧是一整面墙的超大定制柜子,并衔接上书柜书桌功能。左侧有两组房子形状的黑板墙造型,将来孩子可以涂涂画画。

⑥细节六
这个房间不必买床架,沿着柜体结构定制了地台床架,孩子暂时没有分房睡的时候,这个房间可以利用软垫,懒人沙发,打造成孩子的游戏区、阅读区。未来孩子大了分房睡,铺设床垫即可。

▲主卧玄关
主卧门打开,有一个隔墙作为玄关端景,屋主以自己的摄影作品作为挂画,更有生活气息。

▲主卧
床头背景墙以脏脏粉打底,高级温馨又不会过于突兀。配合竖纹木栅格床头靠背,点缀金属极简床头壁灯,轻奢精致又温馨,适当的床头背景墙线条,也让空间层次丰富,更显高档。

左侧飘窗铺设定制软垫,打造一个轻松休闲区。

床对面的富余空间陈列斗柜,除了摆放精致装饰品,也收纳了超多女主人喜欢的帽子。

▲衣帽间
由主卫改成的衣帽间,常穿的衣物会存放在这里,左侧靠窗设置了定制梳妆台。

衣柜采用了高级深灰半透明玻璃门,存取物品一目了然。还有一组定制柜子,在右侧墙背后,因为没有细节图,就遗憾不能展示了。

▲主卫
由主卧阳台打造而成的主卫,地面适当做了抬高,管道布局更为理想,保证排水顺畅。此处墙面采用了粉色瓷砖拼接白色瓷砖,呼应主卧床头背景色,更显精致,整体性更好。有单独的玻璃淋浴房,也有泡澡区,生活品质很高,日常打理也很方便。

⑦细节七
定制洗漱台,底部悬空更显轻盈。右侧接近马桶的位置,设置镂空区,恰好可以用来收纳卫生用品,细节超棒。
定制台面,台下盆设计,卫生死角很少,扫水极为方便。搭配可抽拉的花洒式水龙头,早晨洗头非常舒适便捷。

▲客房
亲朋好友来家中临时小住的房间,定制榻榻米床衣柜一体式布局,增加超大备用储物空间。

剩余空间,平时可以用来做小器械健身。
文末总结

这套房子整体给人带来的视觉效果是,清新甜美,高级不失温馨。以大量高级浅灰色打底,融入等量木色系,少量深色凸显层次感,造型上多以小而美的精致搭配为主,有跳跃性又不会凌乱。空间整体把控良好,让我感到赏心悦目。文内的7个设计小细节分享,值得多数家庭装修中做参考效仿。本文就分享到这里了,感谢阅读!