
作为武汉本地商业项目的标杆之一,今年的武汉天地商圈不断扩容和升级。
5月,定位为“公园式家庭社交空间”的壹方北馆正式亮相;8月,总高度436米的武汉天地A1写字楼核心筒顺利封顶,2020年建成后将与武汉天地商务区连为一体成为汉口最大的商业综合体。
十四年的深耕发展,当年的永清棚户区已华丽变身为城市时尚中心的武汉天地,也已成为武汉一张靓丽的城市名片。人们不禁会问:在日新月异的商业格局和激烈的市场竞争中,武汉天地为什么能够成功?这种情怀还能够持续吗?或许本文可以解答你的困惑。
01 基因:永清街的往昔 汉口滨江 旧日租界 蜕变重生
武汉地处长江和汉江的交汇之处,地理位置十分优越,有“九省通衢”之称,自古就是军事和商业重地。明末清初,汉口已成为全国四大名镇之一,清朝时这里已有楚中第一繁盛处之称。

藏于武汉博物馆的描绘旧时武汉三镇繁华景象的明代古画——《江汉揽胜图》
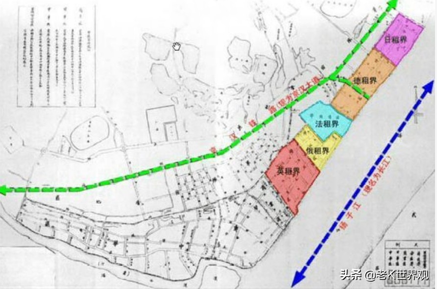
1861年,汉口正式开埠,成为对外通商口岸。英国、俄国、法国、德国、日本、比利时先后在汉口强设租界。开埠使得汉口的贸易更加多元化,市场更加繁荣。20世纪初,汉口已成为一个具有相当规模的国际大都市,被称为“东方芝加哥”。如今已是全国重点*物文**保护单位的汉口旧租界区,矗立着的西方风格的历史建筑群,见证了那段历史。

清末民初的汉口五国租界区

昔日汉口“十里洋场”的街景
清末至1937年之前,永清地区为日本在汉口租界的主要地区。汉口日租界在汉口租界区中地理位置最为偏僻,日本商人财力又很有限,所以其商业并不繁荣。

1930年代的汉口旧日租界区
抗日战争爆发后,中国政府宣布收回日租界,由汉口市政府直接管理,著名的八路军驻汉办事处和新四军军部均设在此地区。永清街至今仍保留了以刘家琪、张自忠、郝梦龄等抗日将领名字命名的道路,以及寓意牢记日寇侵占东三省的东北城市而命名的道路,如沈阳路、长春街、大连路、抚顺路。
1938年武汉沦陷,其后武汉一直是华中日军的重要军事基地、物质中转站和金属矿源。1944年12月,从中国西南机场起飞的美国陆军航空兵的B29轰炸机,使用大量*烧弹燃**对武汉进行了多次轰炸。由于汉口地区是日军的主要活动区域,受损最为惨重,日租界内的房屋建筑被严重破坏,几乎成一片废墟。

二战期间从成都机场起飞的美军B29轰炸机

1944年12月大轰炸后,航拍可见汉口沿江码头北部地区已无一栋完好的建筑
1945年日本战败,日租界内的日侨房产被国民政府当做敌产没收,永清片区由此被作为政、军、商在汉口北端的重要居所区。
解放后,该区域传统空间特征保留完整,但同时存在一些老城区的“通病”:用地构成多样化,环境杂乱,公共设施不足,交通不畅,市政管网缺乏完整系统。

2005年前的永清片区给人以萧条和老旧的感觉
1992年以武汉市政府实施的二桥建设工程为契机,拉开了永清地区旧城改造和城市发展序幕。长江二桥、江滩公园的前后建成,永清地区才算是枯木逢春,活力乍现,再不为江边菜地的秽气所困扰。随后的十多年间,永清片沿解放大道两侧先后建成了一连片高层办公楼和现代居住小区。

2012年之后的武汉长江二桥汉口一侧,已是高楼林立的现代化城区
2002年,经过多方论证和研究,武汉市政府决定在永清片启动武汉建国以来最大的旧城更新改造工程,“永清片商务综合区”规划正式出炉。
2005年,香港瑞安集团拿下解放大道沿江一侧的永清*迁拆**片,计划总投资100亿元人民币,建设由学校、住宅、写字楼、商业体、公共设施等组成的新型城市建筑群“武汉新天地”。
项目分A、B两个地块,黄埔大街以南的A地块规划为商务综合区,项目内的吴佩孚行居等9幢历史建筑将予以保留并改造成商业街区;黄埔大街以北的B地块将以居住用途为主。


当年的规划方案延续了汉口租界区的特色,采用小街坊尺度划分地块,合围式建筑布局
永清片由此迎来了重要的蜕变,优良宜居的地理环境和别具意义的历史背景,使得永清片在武汉城市化发展的大潮中,具备了改造成功的基因,而成功的关键就在于发展商是否尊重这座城市以及这些老旧建筑背后的人文历史。
02 内核:旧城改造的情怀 尊重城市 尊重历史 成功典范
“新天地”系列发源于上海,1998年,香港瑞安集团拿下上海市中心淮海路棚户区改造项目,以整旧如旧、保留特色、突显历史为主线,做出了让市场惊叹和认可的以当地石库门弄堂风情为主题的商业地标——上海新天地。2016年,上海新天地被《福布斯》评为“全球20大文化地标”之一。

鸟瞰上海新天地,传统建筑和周边高楼相映成趣
成功的瑞安集团没有停下脚步,2005年,瑞安集团携上海新天地项目的成功经验来到武汉,打造以汉口旧租界历史保护建筑和60余株原生梧桐树为核心的5.7万方的商业街区。整个武汉天地项目占地61万方,总体量约163万方。

武汉天地商业街区规划图
该项目的总体规划顾问为美国SOM公司;在设计上,由原上海新天地的总设计师本杰明·伍德主持。他十分善于利用传统建筑特色,并赋予它新的生命力和商业价值。

上海新天地街景
在改造施工中,瑞安采取了“存表去里”的方式,通过修缮和维护,在保留建筑外观和外部环境的同时,对内部进行全面翻新;并重新规划和设计,拆除部分老房,增加绿地和水池,和保留下来的法国梧桐共同营造出园林式的街区。
改造后,老房子的风貌和氛围得以保持,而之前整片的居住区变成了集商业、文化、娱乐、购物为一体的时尚街区。而老旧建筑改造的成本,远高于新建的成本。


武汉天地商业街区的历史建筑改造前后对比

武汉天地商业街内外的林荫道
2008年至2010年,武汉天地整个自持商业街区分期完成并全部开业。
在实际的招商和运营中,武汉天地鼓励外摆,因为外摆是户外休闲风情的灵魂,并特设了国内首条带空调的户外美食街。建筑的所有平顶屋顶都采用了屋顶绿化,营造出人与自然和谐相处的环境。

武汉天地一角

绿树成荫的天地市集
而由于上海和武汉两个项目不同的消费客群,武汉天地并没有简单照搬上海新天地的模式而引入过多的西餐,也不趋同于武汉本地其他商业体的定位,而是在品牌引入上不断尝试和调整,并严格把控。
在经过了最初几年的挫折后,武汉天地商业街的人气逐渐被激活,随着周边写字楼和住宅区的不断建成和客流导入,武汉天地商业街最终得到了消费者和品牌商的认可和垂青。

鸟瞰建成的武汉天地商业街区
武汉天地商业街保留了老汉口的风情风貌和历史文化,并与现代建筑完美融合,使之成为了高楼林立的城区中可以触碰到的过去。它所体现的中国传统文化和西方建筑文化交织在一起的本地历史文化元素,融合了时尚元素和现代化设施,塑造为代表城市生活氛围的时尚IP。
2012年启用的武汉天地企业中心5号楼,体量5.9万方,是武汉首个5A甲级写字楼,其所构建的高品质国际化商务平台以及所在外滩区域的历史文化沉淀,形成了有别与武汉其他传统商务区的差异化定位。仅用18个月就已满租,并在全国副省级城市中创造了“最快满租率”的记录。

武汉天地A5办公楼
在武汉天地项目启动之时,瑞安集团就提前规划引进了优质的教育资源,由瑞安集团提供教育用地并承担学校、幼儿园的建设费用。2014年,七一中学、长春街小学进入武汉天地新校区,两所学校的建筑面积超过3万平米。从双语幼儿园到品牌小学、重点中学,武汉天地将贯穿12年的精品教育资源容纳到一个大社区内。

鸟瞰长春街小学和七一中学
武汉天地商业街与甲级写字楼、高端住宅区形成互联互通,不仅实现了项目整个产品系包含住宅、写字楼的高溢价,也使整个永清片成为集住宅、办公楼、教育、零售、餐饮、娱乐等多功能设施于一体的城市新地标,更是带动了整个汉口滨江区域的经济发展。

鸟瞰武汉天地商圈
对所在城市和当地文化的尊重、对人文历史和规划设计的重视、对自身产品的研究以及可持续发展的态度,成为武汉天地成功的内核,也使其成为武汉旧城改造项目成功的典范。
03 成就:腾飞的武汉天地 优质生活区 高端商务区 城市新地标
2016年9月,体量12万方的武汉天地壹方南馆开业,项目聚焦年轻、时尚客群,定位为国际风尚购物中心。不同于传统意义上的高端购物中心,壹方集国际潮牌、国际美食、IMAX戏院、lifestyle书店、儿童体验游乐及家庭消费等于一体,是武汉品质最高、业态搭配最有趣的一站式购物中心。

武汉天地壹方南馆
2019年5月,体量7.2万方、致力于打造亲子家庭聚集地的高端社区购物娱乐中心的武汉天地壹方北馆正式开业。其独居特色的天空树中庭、室内花柱、屋顶公园、梯田式公园露台营造出公园式主题商业空间,也引领了武汉购物中心变革的潮流。

武汉天地壹方北馆门前标志性的水晶烟花
已然成为湖北省旅游名街和武汉城市地标的的武汉天地商业街,与壹方南馆、北馆形成全业态多元化商业系统,三座不同风情的商业项目差异定位且互为补充,成为武汉天地商圈的商业核心群,推动着商圈不断完善和发展。

武汉天地商业街的喷泉广场
如今的武汉天地5号楼已改名为平安金融中心,已有40多家国内外知名企业和驻外机构入驻,世界500强企业达17家。2017年,平安金融中心单栋楼宇税收超过14亿元,是全省首个税收超10亿元的单体楼宇,并已连续3年税收超过10亿元。
中山大道西侧,中信泰富A3大楼与平安金融中心隔路相望。大楼2017年2月开始招租,不到一年就满租。承租企业既有全国综合实力TOP20的华中区总部,也不乏世界500强的武汉区域总部。2017年,中信泰富大楼合计纳税近7亿元,是江岸区近年新崛起的“亿元楼宇”。

高品质的中信泰富A3大楼
未来,即将建成的武汉天地A1写字楼将与已建成的环球智慧中心、中信泰富A3大楼及平安金融中心共同构成武汉天地商圈的高端商务群,成为引领武汉经济高质量发展的新增长极。

武汉天地的高端商务群
瑞安集团对待城市更新的情怀以及可持续发展的态度得到了丰厚的回报。2018年财年,瑞安武汉天地(包含武汉新天地、壹方南馆、北馆)自持商业面积合计约24万方,出租率为89%,武汉新天地及壹方南馆表现强劲,2018年的租金及相关收入较2017年增长20%至人民币2.65亿元。
随着2019年壹方北馆的正式开业及出租率100%的优异成绩,武汉天地明年的财务数据将更加靓丽。
不断扩容的商业体、汇集武汉顶级办公楼的商务群、以及一直以品质和价格引领武汉市场标杆的住宅区,十四年来,武汉天地商圈一直在完善和升级。随着更多企业和品牌的入驻,商圈活力和综合竞争力在不断增强,其商业价值也不断被赋予新的上升动能。

武汉天地整体规划效果图
04 挑战:武汉天地的未来 汉口滨*核心江** 长江主轴支点
在上月刚结束的军运会中,武汉向世界展示了中国城市的新形象。现代化的场馆、专业的服务、整洁的街道以及惊艳的长江灯光秀,让中外运动员和游客流连忘返,更体现了大武汉中部崛起的雄心壮志。

惊艳的武汉长江灯光秀
未来,武汉的城市发展将会持续加速,而发展的核心区域将是长江主轴。已经成型的武汉天地商圈北接建设中的二七滨江商务区,南接汉口历史文化风貌街区的长江左岸创意设计新城和汉口文创谷,是引领长江主轴左岸发展的核心。

从武昌遥看长江二桥和高楼林立的汉口滨江,武汉天地A1格外醒目
已获批的二七过江通道的建设,将增强汉口二七片与对岸武昌滨江商务区的关联,有利于两片区的深入开发和武汉“两江四岸”的均衡发展。

军运会期间的长江二桥和武昌徐东
武汉天地商圈处于二七片、汉口历史文化风貌街区、武昌滨江这三个未来极具发展前景区域的中心,是实至名归的武汉长江主轴发展的支点。

未来的长江主轴建设中,武汉天地商圈将发挥重要的支点作用

长江主轴规划效果图
在上一个十年里,瑞安集团凭借对所在城市及历史的尊重与情怀,以及可持续发展的态度,在讯息万变、竞争激烈的商业市场中突围而出,以一己之力奠定了武汉天地城市标杆商圈的地位,不仅实现了项目自身价值的飞跃,更是赋予了城市全新的商业价值。
在下一个十年中,新的挑战与机遇已经来临,秉持情怀和态度,保证品质和细节,整合技术和变革,不断完善和创新,武汉天地将以革新者的姿态,以翱翔蓝天的“海鸥”精神,引领武汉商业的深度发展和城市更新的持续推进。
——END——
(来自:武汉商业观察)