
在论及葡萄牙建筑师 Álvaro Siza 的作品之时,西班牙建筑师 Rafael Moneo 曾写道,“Siza 是某种与大众和乡土相关的建筑的主要代表…从边缘化的处境出发,他将对国际风格的抵抗转化成为了一种长处。这种抵抗始于对当下现实的接受。知道它们的来龙去脉,从内在出发,试图去改变它们…而对现实的接受则始于关于场地的知识。”无疑,Moneo 的论述指出了 Siza 的实践与他所在的葡萄牙本土建筑文化之间的深深联系。

Álvaro Siza (右)与 Carlos Castanheira(左)

Álvaro Siza 与 Carlos Castanheira
为卷宗Wallpaper*设计特别版封面
当这位原本位于潮流边缘的建筑师逐渐在全球建筑领域获得斐然的声誉之后,他的实践也不可避免地离开了其所熟悉的文化语境。在亚洲,Siza 与 Carlos Castanheira 的实践最早始于韩国 Paju 书城,并随后进入了中国。在数个位于亚洲、尤其是博物馆建筑项目中,无论大小,Siza 与 Castanheira 似乎均采纳了一种指向内部性的策略:在如雕塑般的建筑体量之中,创造出一个自足的无垠世界。

上图:Siza 与 Carlos Castanheira 在韩国 Paju 书城(Paju Book City)的实践项目 Mimesis Museum
下图:Siza 中国大陆首座建筑作品实联水上大楼(The Building On the Water)
新近完成的、位于宁波东钱湖畔的华茂艺术教育博物馆也不例外。在这座上下六层、总面积仅为6300平方米的建筑中,坡道与运动、圆弧与折角、色彩与光线的诸多处理,在一处狭小的空间中创造出了一个博物馆的“深远的灵魂(A Big Soul)”。

Siza 与 Carlos Castanheira 新作:宁波东钱湖畔的华茂艺术教育博物馆

尽管宁波东钱湖以其优美的自然景色而著称,但华茂艺术教育博物馆所处的环境却很难与 Siza 此前的项目——位于 Leça da Palmeira 海岸的露天游泳池或是 Boa Nova 茶室所在的开阔的自然景致相提并论。一条蜿蜒的柏油马路串联起了环东钱湖的不同地块。毗邻东钱湖一线的部分业已被酒店和正在建造中的湖景公寓所占据,而博物馆和一些其它建筑则散布在地块的沿路一侧。

上图:Siza 在 Leça da Palmeira 海岸设计的露天游泳池 Piscinas de Marés (Pools on the Beach)
中图:Siza 设计的 Boa Nova 茶室
下图:Siza 设计的 Pinto & Sotto Mayor 银行大楼借由周边紧凑的街区和建筑的几何关系来发展平面
在这一组致力于打造一个未来艺术园区的建筑群落中,华茂艺术教育博物馆作为第一栋具有标识性作用的建筑,落于一个被道路、临近地块和一座小山丘割据形成的梯形地块中。道路的另一侧,则是早先已开发完成的一个别墅住宅区,一系列在建筑上显得平庸无奇的坡顶小住宅三三两两地坐落于绿树成荫的住宅区中。

上图:俯瞰华茂艺术教育博物馆,位于宁波东钱湖一个被道路、临近地块和一座小山丘割据形成的梯形地块中
下图:向左滑动查看华茂艺术教育博物馆场地以及各层平面图
这片场地,并没有 Leça 露天游泳池所面对的一望无际的大海和怪石嶙峋的海岸线的壮丽景象,甚至不像位于葡萄牙传统玻璃工业城市 Oliveira de Azeméis 的 Pinto & Sotto Mayor 银行大楼一般,得以借由周边紧凑的街区和建筑的几何关系寻得平面发生的种种线索。以“绿地中的物件(Objects in the Field)”的方式进行布置的周边场地,呈现出一种零散和无规则的状态,唯一能够称得上构成一个外部条件的则是位于梯形地块顶边的一座小山丘。

华茂艺术教育博物馆像一个优美弧度的黑色扇形体块从碧绿的草地中徐徐升起,并折射出深浅不一的光线
或许正是在这样一种无法向外部寻求借力的环境中,Siza 与 Castanheira 在华茂艺术教育博物馆中所采用的场地和体量策略变得可以理解:在一个位于陌生环境的封闭体量之中,创造出一个熟悉的、丰富的内部。基于这一策略,一个带着优美弧度的黑色扇形体块从碧绿的草地中徐徐升起,连续的黑色金属波纹铝板包裹着整个建筑的体量,丝毫没有留下任何开口。在天光的变幻作用下,黑色铝板表面折射出深浅不一的光线。诸如开窗之类的参考物的缺失使得这一体量并不大的黑色扇形体量,显得近乎神秘。在其面前,或许引发的更多地是一系列本能的问题:它的背后隐藏着怎样的空间?它由几层组成,又以怎样的方式进行组织,并且为何不需要任何的开洞和窗扇?

上图:黑色体块与绿地之间形成微微的夹角,明亮的长窗透露出些许建筑内部的景象
下图:立面图纸则清晰地表达出长窗与巨大建筑体量的比例关系
然而,建筑师也并未全然地将谜底隐藏起来。在黑色体块和略略倾斜的绿地之间,一道横向长窗透露了些许内部的景象,在密实的黑色体量和平整的绿色表面之间留下了一道诱人张望和探索的缝隙。配合这道缝隙,建筑师在此特意为好奇的目光设置了一段户外的廊道。 这段户外廊道嵌入至建筑的黑色体量下方,略低于绿地的外廊。虽然人们往往被建筑物的内部景象所吸引而步入至廊道,但进入其中后,它却又恰恰构成了一个转身回望的空间。此时,黑色金属波纹板和外廊的大理石板边缘则构成了一个横向取景框的上下边界,过滤掉远处的建筑物,而使得绿地占据了视野的主要范围。建筑物主体本身的优美弧度使得这一取景框的上边界在此变得更具趣味性。它舒缓地向前延展,而又呈现出微弱的变化,直至到尽端,这段弧线反曲过来,显露出些许立面的波纹肌理。

与横向长窗呼应的是,建筑师将户外廊道嵌入至建筑的黑色体量下方,且略低于绿地
围绕着建筑的绿地,从道路边缘朝着地块内部微微起坡,但却始终与上部的黑色体量保持着一种若即若离的关系。在两者最为靠近之处,黑色波纹板包裹的体量在碧色的地面之上投射下一道黝黑的影子,收住波纹板下边缘的金属镶边嵌条反射着天光,构成了两种黑色之间的一丝银光。正是这一细节的处理,始终提醒着人们这一黑色体量的“悬垂“状态,为其看似沉默不语的完整体量赋予了一丝轻盈之感。种种关乎外部的设计策略,均使得人们在围绕其游览和观看之时,始终处于一种好奇心不断迸发而跃跃欲试进入内部的状态之中。

黑色波纹板包裹的体量在透明长窗的设计下增添了悬浮与轻盈之感

若要一探这一黑色扇形体量的内部究竟,必先需要寻得它的入口。与博物馆建筑往往将入口布置于靠近主要道路一侧相比,华茂艺术教育博物馆的入口设置显得有些特殊。事实上,唯有沿着梯形场地一侧的小路,绕到建筑倚山一侧的背面,一个毫不起眼的入口方才显露。如果说面对周边平常、甚至有些杂乱的环境,黑色的神秘性成为了吸引视线和注意力的选择,那么它的内部,则回到了一个为人们所更为熟知的西扎的作品——一个白色的纯净世界。

华茂艺术教育博物馆的入口略显隐蔽,与黑色扇形体量形成对比的是博物馆内部纯净的白色
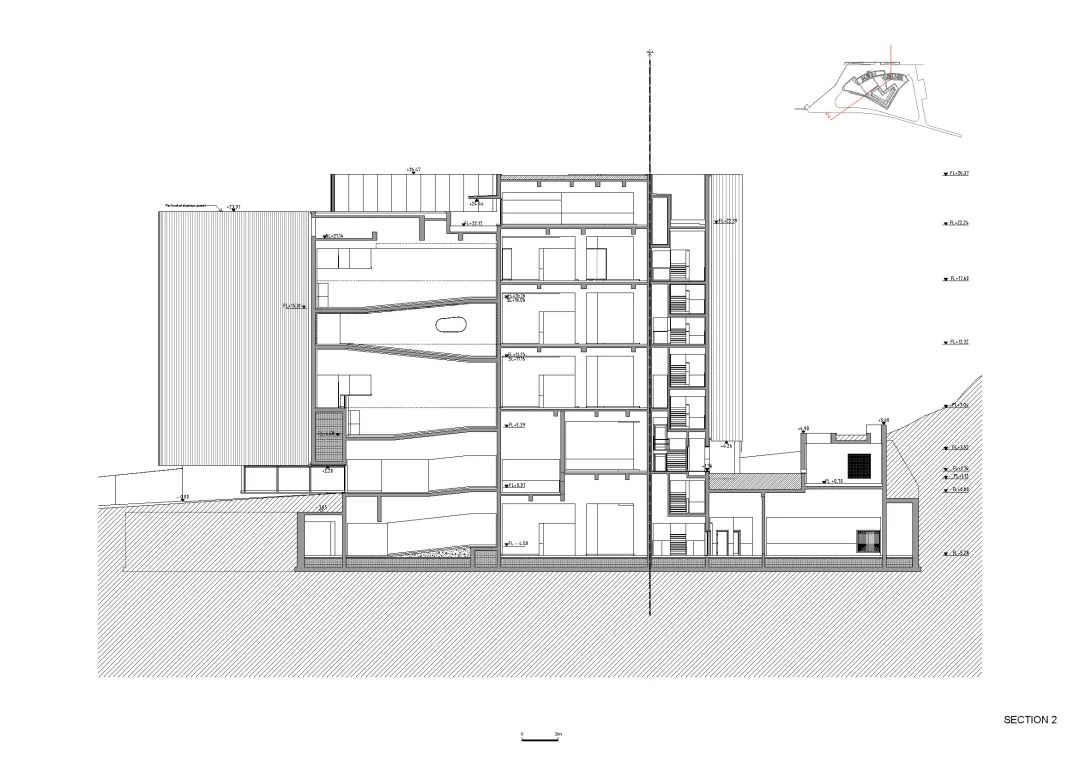
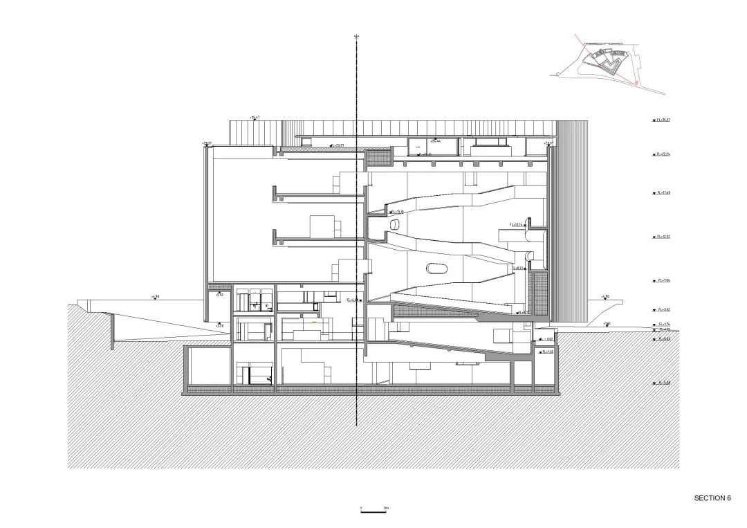
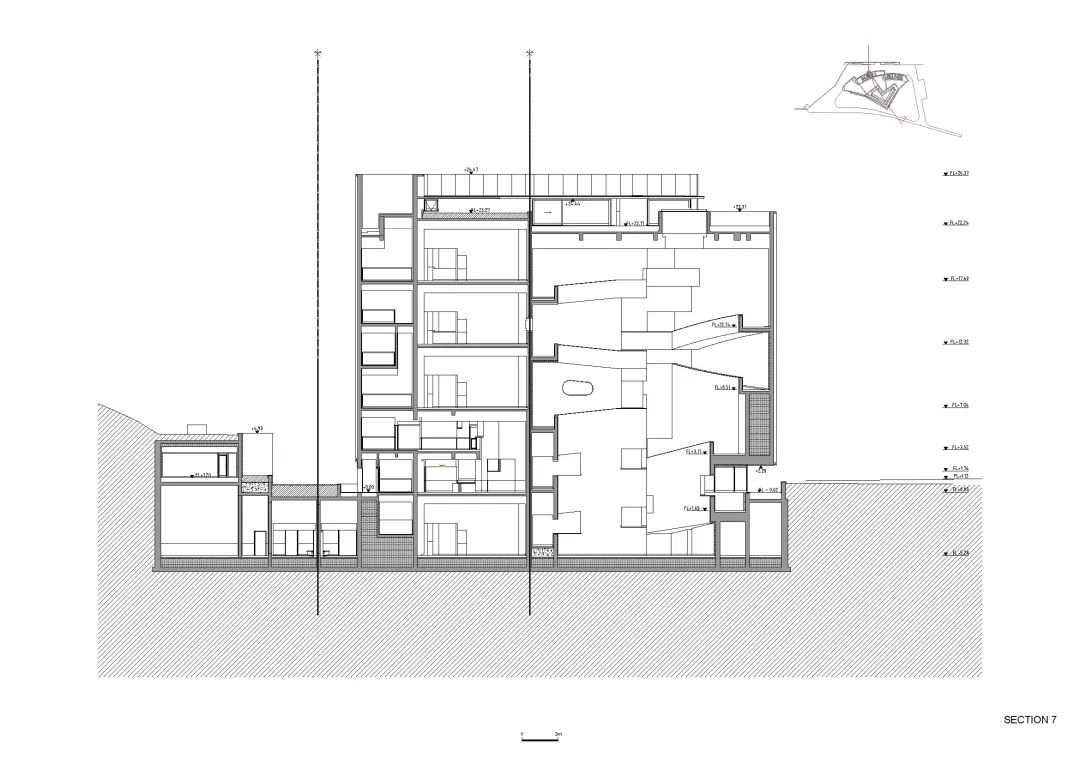
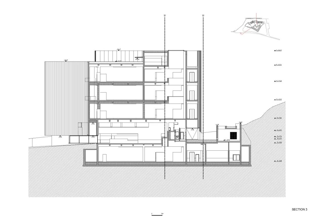
在经过一个小小的门厅后,一小段坡道将人们引向了一个豁然打开的中庭空间。围绕着这一贯通地下一层至四层的中庭,艺术教育博物馆的功能布置和流线组织显得直接而利落。地下一层主要用做库房和展厅,地上一层为主入口和门厅,二层至四层则以展厅为主,不同大小的展厅空间围绕着中庭连续布置。一条从地下一层一直贯通至地上四层、连接全部展厅的坡道将整个空间流线串联起来,构成了一种关于内部的漫步式体验。

博物馆内部全部展厅的坡道将整个空间流线串联,中间则是一个豁然开朗的中庭,构成一种关于内部的漫步式体验
尽管在功能和流线的组织上十分直接,这段漫步式的空间体验却一如既往地如同 Siza 过去作品中的一般,丰富而充满张力。从入口门厅、通过坡道再到中庭,人们在经历了一个吸收性的空间压缩之后被骤然释放至一个通高的、明亮的空间之中,而这种充满戏剧性和对比的空间体验在顺着蜿蜒的坡道盘旋而上的过程中,被不断地重复和加强。坡道时而继承了来自建筑物外轮廓的微弧曲线,时而又以折角的方式尖锐地凸出于中庭之中。夹杂在坡道带来的面向中庭完全打开的视野之间的,则是穿过不同展厅之时的被框定的景致。

上图:在围绕中庭展厅墙壁上或锋利或圆融的开口,如瞭望口一般框住不同的景致
下图:向左滑动博物馆的剖面图,从一层至四层的开放式中庭,各楼层之间的动线连接清晰可见
那些圆润的或是锋利的开口,或是如同堡垒厚墙上的瞭望口一般,或是如同一个超现实的立方体一般,限定出一个个面向中庭的局部视角。在某种程度上,这种视线关系让人想起了 Siza 在巴西的 Iberê Camargo 基金会博物馆项目。在一个类似的倚山而建的场地中,后者由悬挑的折角封闭走廊、曲线化的主要体量以及富有控制力的开口构成了一段内外交替的体验。

Siza 设计的 Iberê Camargo 基金会博物馆
而在华茂艺术教育博物馆中,这种关于曲与折、放大与收缩、开阔与限制的体悟则被完全翻转至建筑物的内部。与 Iberê Camargo 基金会博物馆相比,这种体验的丰富性在华茂艺术教育博物馆显得更为极致,每一次迈步或是转身、甚至是回头均产生着截然不同的空间。

直径为20cm、长约22m的 LED 灯管构成的线性发光体从屋顶轻轻悬挂下来,直至地下一层
在这一段如蒙太奇般拼贴而成的动态的空间体验中,两道自屋顶而下的线性发光体构成了两个静止的视觉焦点。位于扇形平面中央的中庭被展厅和坡道侵占之后,形成了一个近乎 L 形的转角状态,而这两道由直径为20cm、长约22m的 LED 灯管构成的线性发光体便处于 L 形两柄空间的中央。它们各自从屋顶轻轻悬挂下来,直至地下一层、距离地面约一人高度。在上端,LED 灯管通过一个纤细的金属连接构件与天花相接,在下端,灯管底部则以镜面不锈钢收尾。无论是弱化其与天花的交接或是去物质化的底部材料处理,建筑师似乎均试图赋予这两道线性发光体以一种近乎神秘的悬浮状态。它们既是整个空间的视觉中心,又赋予了周边的白色环境以不同深浅和亮度的阴影。

位于扇形平面中央的中庭被展厅和坡道侵占之后,形成了一个近乎 L 形的转角状态,两道 LED 灯管置于其中
凸出的和内陷的白色坡道,根据其离开线性光源的距离,渲染上了从微亮至微暗的退晕般的光彩。明亮的发光体也使得那些位于白色墙体之后的展厅空间显得更为深邃。偶尔,安装于展厅天花上的线性灯管也透过开口,与中央的线性发光体遥相呼应。白色,不再是匀质的、均一的,而通过光线与颜色的融为一体,获得深浅不一的丰富性。

博物馆内部坡道多变的几何形态,使得空间产生一种动态变化,观者在移动的过程中,视角以及景别都在时刻发生变化
然而,正如柯布西耶最早借由坡道提出了“漫步式建筑”的概念,在此,这一空间绝非是静止的或是单一的。相反地,恰恰是坡道多变的几何形态和其所暗示的运动意味使得空间成为了一种动态的过程,并从而改变着参与其中的不同元素的性质。在观者漫步的身体和移动的视点作用下,两道连续的线性发光体不断地被连续的坡道所重构。它们时而如同 Dan Flavin 的作品一般,以光线补完着建筑开洞所形成的缺口边缘,时而则被凸出的坡道打断,而真正成为了一道悬浮于半空中的“光线”。

博物馆顶层的露天平台
正是在如雕塑般静止的垂直线性构件和不断变幻形状与明暗的坡道的互动之中,整个空间的静止与运动也似乎发生了转变:在不断围绕其盘旋上行或是漫步往下的过程中,反而是两道线性发光体在半空中不断地改变着它们的位置和状态,从而产生了无数不同的瞬间。从某种意义上来说,这似乎也正是一种如“横看成岭侧成峰”般的效果:尽管观看的目标并未发生变化,然而观者所处的位置和状态的改变恰恰使得一种体验的错觉得以产生。

在建筑中不断盘旋上行或是漫步往下的过程中,两道线性发光体在半空中不断地改变着它们的位置和状态
正是这些无数不同瞬间的叠加使得在这座小巧的博物馆内部的漫步经历,成为了一段漫长的体验。由此,它最终回应了 Siza 的合伙人 Castanheira 在如诗歌般的项目文字所写下的:外部小巧,而内部无垠。一座博物馆必须是大的。内部。一座博物馆必须是明亮的。内部。(Small on the outside and immense inside. / A Museum must be big. Inside. / A Museum must be bright. Inside.)华茂艺术教育博物馆恰恰正是这样的一座博物馆。
华茂艺术教育博物馆
将于2020年11月21日试运行
博物馆将充分展现古今贯通、中西融汇、内外共生的艺术思想,致力于打造一个多元开放的美育课堂。
届时卷宗将组织读者于宁波进行博物馆导览,
欢迎后台留言报名!
地址:浙江省宁波市鄞州区连心路99号
摄影:朱迪
撰文:莫万莉
策划:zhuoran
