一、项目概况
该项目位于北京CBD核心区,由57层的超高层商业办公主楼(建筑高度260m)、裙房(5层,结构高度为26.8m)以及6层+夹层地下室组成,项目占地面积8223m2,总建筑面积约167851m2,其中地上建筑面积约12000m2,地下建筑面积约为47851m2。该工程采用桩筏基础,主塔楼结构形式为核心筒+外框钢结构,裙房为钢筋混凝土结构,建成后将是韩国三星驻中国总部大楼。

本工程四周均是在建项目,场地狭小,在建项目之间限制性大,尤其是西侧地下室外墙,距红线只有10cm,且红线外侧即为其他项目在施地块,使得西侧地下室21m高外墙无法按照现有施工方法进行结构施工。
二、问题分析

三、问题解决思路
1、运用创新思维研发PCF(Precast Concrete Form)单侧支模体系,解决操作空间不足的难题。
2、PC板吊装安全,固定可靠,可操作性强。
3、混凝土浇筑完成后PC板位移不大于3mm。
四、确定解决方案
1、拟采用的三种解决方案
方案一:
PC板预留桁架钢筋,形成叠合墙体系,在工厂预制,与外墙一同浇筑;
采用底面钢板焊接形式固定;
防水在结构完成后施工;
内侧使用大钢模板。

方案二:
PC板光面处理,仅作为外墙模板,在工厂预制;
采用槽钢+可调斜撑形式固定;
防水预铺反粘;
内侧使用散拼木模与PC板对拉固定。

方案三:
PC板做成肋形板,参与结构受力,在现场现浇;
采用槽钢+三脚架形式固定;
防水结构完成后施工;
内侧使用组合木模板与PC板对拉固定。

2、方案比选
从可实施性、经济合理性、安全性、工期及其他影响等多方位进行分析评估与优选,见下表。



通过对以上三种方案的综合对比与分析,初步选定方案二为研发PCF单侧支模体系的实施方案。
3、方案细化
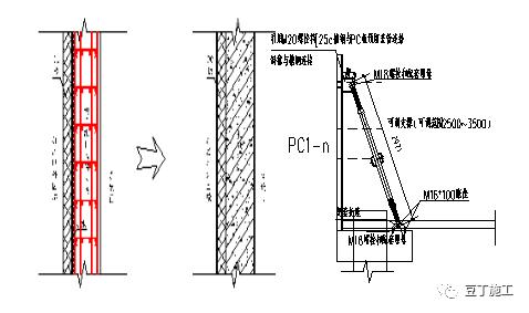
通过以上选择,初步确定了研发PCF单侧支模体系的实施方案,但是方案必须从两个过程、六个方面进行方案细化,具体下图。

1)PC板的排版和设计
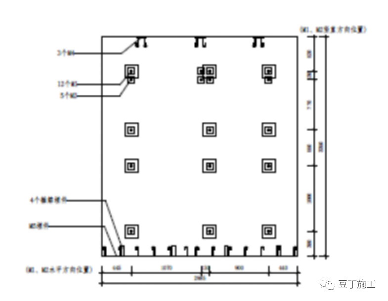
本工程西侧外墙PC板共计164块,PC板上下左右四边留15mm缝隙,最大板规格(长*宽*厚):3650㎜*3515㎜*120㎜,自重约4002.9㎏。


2)预埋件的深化设计






3)PC板的加工和养护






4)PC板的吊装和固定(吊装)









5)墙体防水和钢筋施工




6)内侧模板的选用和混凝土浇筑


4、确定最佳方案
通过以上细化分析,我们确定最佳方案见下图:

五、制定对策
按照5W1H的原则,分析研究相应对策,确立明确的目标值,并最终制定出相应的具体实施措施、明确责任人和完成日期。


六、对策实施
实施一、PC板的排版和设计
根据最新的结构基准图,对PC板的布置范围、PC板块的分隔、间距,每块PC板的尺寸和位置、PC板的固定位置、连接方式以及特殊节点的处理均进行了细致的设计和计算,形式PC板设计图一套、计算书一套,并通过的设计单位、监理单位和业主单位的审核。
本工程西侧外墙PC板共计164块,PC板上下左右四边留15mm缝隙,最大板规格(长*宽*厚):3650㎜*3515㎜*120㎜,自重约4002.9㎏;最小板规格(长*宽*厚):3650㎜*1480㎜*120㎜,自重约1620.6㎏。



实施效果检查:经检查,设计图纸涵盖了PC板的相关信息,图纸详细明确,通过了专家论证,为后续工作的开展提供了基础性资料。PC板分格排版避开了钢筋甩茬位置,同时最大板块重4002.9KG,满足不大于5T的目标要求。根据计算结果,最不利位置荷载为抗拉承载力的81%,满足不大于85%的安全要求。
实施二、预埋件的深化设计
根据PC板的基础设计图纸,协调厂家确定埋件的型式和材质要求,并对PC板埋件的连接方式进行的深化设计。PC板拼缝位置采用预埋钢板后焊接的方式进行处理。其中连接位置仅设置在PC板竖向连接位置,水平位置无需处理。除底层外,其他层在宽度小于2000mm的PC板设置2块预埋钢板,宽度大于2000mm的PC板设置3块预埋钢板。
PC板竖向拼接位置需插定位钢筋,采用三级钢20的钢筋先于下层板上边预埋钢筋,上层板预埋钢套管进行连接。




实施效果检查:绘制完成的PC板加工图明确了埋件的形式、位置、规格以及材质,同时明确了PC板的支撑间距,为PC板下一步的加工生产提供的详尽的技术资料,完成了设定目标。同时根据埋件计算,预埋螺栓的受力仅为允许值的47%,满足不超过80%的目标。
实施三、PC板的加工和养护
1、PC板生产厂家选择了专业的预制构件生产厂家,并在合同内详细的明确了质量要求
2、PC板加工前,由项目部技术负责人王晓龙对PC板加工人员进行了技术交底,并预制加工质量要求、注意事项、细节施工方法等进行了详细的讲解,明确了质量标准及验收要求;
3、项目部安排驻加工场人员负责PC加工质量,全面贯彻执行施工质量标准,确保预制件加工质量;




实施效果检查:PC板加工严格现场验收,加工精度均在要求范围之内
实施四、PC板吊装与临时固定
1、PC吊装前,编制地下室西侧外墙PCF及防水施工方案,并对相关人员进行三级技术交底,保证现场实施。
2、为保证PC板吊装安全,严格控制PC板安装精度,并落实责任制度。
3、安排技术人员现场监督、指导和测量;
实施五、PC板吊装与固定流程控制

效果检查:PC板吊装安全、固定可靠,安装精度均满足要求。
实施六、墙体内侧模板固定和混凝土浇筑
1、严格按照方案要求,将木模板通过螺杆与PC板对拉固定,一头拧入PC板中预埋固定件,一头拉住模板背楞钢管;
2、三角撑隔400mm布置,与模板通过勾头螺栓连接,底部通过地埋压固,确保整体体系稳固。
3、混凝土浇筑严格按方案要求顺序和速度浇筑,安排专人看模。


效果检查:木模板拼接便捷,与三角型钢支撑连接的体系稳定可靠。对拉螺杆拉结PC板和三角撑后有效的加强了PC板的稳定。模板支设满足要求,混凝土很好的按照目标要求进行了浇筑。
完成效果



七、效果检查
目标1:PC板吊装安全,固定可靠,可操作性强
PC板自2015年6月25号开始吊装施工,至2016年1月25号画上句点,共计吊装和固定施工达164块PC板。PC板吊装安全、固定牢靠,整个安装过程快捷紧凑,可操作性强,整个PCF体系解决了操作空间不足的难题,符合安全可靠、操作性强的目标。




目标2:混凝土浇筑完成后PC板位移不得大于3mm
PC板与内侧木模板+三角撑对拉形成的PCF体系,既加强了PC板的稳定性,又对整个混凝土浇筑起到了很好的控制作用。
针对PC板浇筑后偏移设特定测点,现场土建责任师负责测量并收集混凝土浇筑后PC板偏移数据。
PC板施工过程中混凝土浇筑后偏移值均不大于3mm,完全达到初期的目标设定。
经济效益:
因为PC板前期在加工厂预制加工,相应的节省了工期。按传统每层搭设操作架需2d/F,支设外侧模板4d/F,按5层算,共节约工期30天。模板拆除2D/F,架体拆除5d,共节约工期15天。此外由于使用了PC板填充了建筑红线间隙,省去了回填的时间,节约工期30天。考虑PC板吊装需2d/F,累计节约工期30+15+30-10=65天。
PC外墙成型时外表面平滑省去了抹灰的程序,相应的节约了材料费用和表面处理费用,按45元/㎡,共计节约45*1671=75195元,省去了红线间隙的素混凝土回填,回填按415元/m³考虑,共计节约415*1671*0.1=69346.5元。共计节省成本75195+69346.5=144541.5元。
社会效益:
本次PCF单侧支模体系在北京三星项目中的使用,完美的解决了本项目施工场地狭小的问题,证实了PC构件在狭小的施工空间内能够一次性完成结构、防水同时保证外墙施工质量。
PC板的现场拼装节省了大量的劳动力,省去了架体搭设和模板支设,为建筑工业化和绿色施工、绿色建造积累了经验,提供了参考。相信在不断的探索、实施、总结中,PC构件的应用在国内会有更好的发展前景,并逐步取代传统的结构施工理念,形成一套成熟的施工工艺。