深圳宝安的松岗将曝光一个楼盘汇智百盛家园 将有400多套住宅!
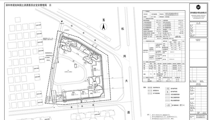
深圳宝安的松岗将曝光一个楼盘,就是 “汇智百盛家园”项目。根据国土委12月15日发布的关于汇智百盛家园(宗地号:A417-1808)总平面图修改的公示提到, “汇智百盛家园”项目(宗地号:A417-1808),位于宝安区松岗街道,用地性质为二类居住用地,用地面积14212.34平方米,容积率3.2。该项目于2018年6月核发《建设工程规划许可证》(深规土建许字BA-2018-0027号)。现申请总平面图修改。
简单就是这个楼盘汇智百盛家园是一个二类住宅用地,而且是今年6月批准的,如今是修改平面图,而用地面积也有1.42万多平方米。

汇智百盛家园这次修改如住宅B座(30F)、C座(31F) 29、30层复式层层高由3.15米修改为3.6米,层高调整后B座设计高度相应由96.30米(绝对标高104.65米)修改为97.20米(绝对标高105.55), 建筑高度相应由96.50米修改为97.40米,C座建筑高度不变,建筑分栋指标中的住宅(B座)“高度”数据相应调整。南侧商业裙楼4轴建筑轮廓向西外扩1.85米与警务室平齐。
基本是楼高,层高等修改,而且这个盘是有复式的哦。
汇智百盛家园到底是怎样的楼盘?从刚公布的数据来看,这个盘将有430套住宅房源,而且分为ABC座和裙楼的规划,30-32层高。总建面将有6.72多万平方米。


