不喜欢非常繁荣拖沓的生活方式,所以房子装修的时候,就和老公一再商量沟通,尽量不用做太多的造型和格局,过日子嘛,还是自己舒服就好。
开春装修的南昌业主们看过来,开春大戏狂促活动正在进行中,如果您还在为装修而烦恼,速来咨询哦~(在南昌,100平装修到底要花多少钱?装修一套房子到底需要经历哪些流程?怎样装修才能省心省力省钱?设计师在线为您专业解答。微信:diguadou888)
楼盘地址:朝阳天成9-1-201 南昌(看工地可预约哦~其他户型方案均有)
设计师:聂志勇
户型:3房2厅
风格:现代
主材:大理石、抛光砖、实木地板、灰镜、墙纸等
项目:1、水电;2、墙、顶面漆;3、天花板造型、墙面造型、电视墙造型;4、墙地砖安装、防水防漏;5、地板、防潮处理;6、灯具、洁具安装
设计说明:本案例是现代风格,力求简约温馨。

客厅

卧室

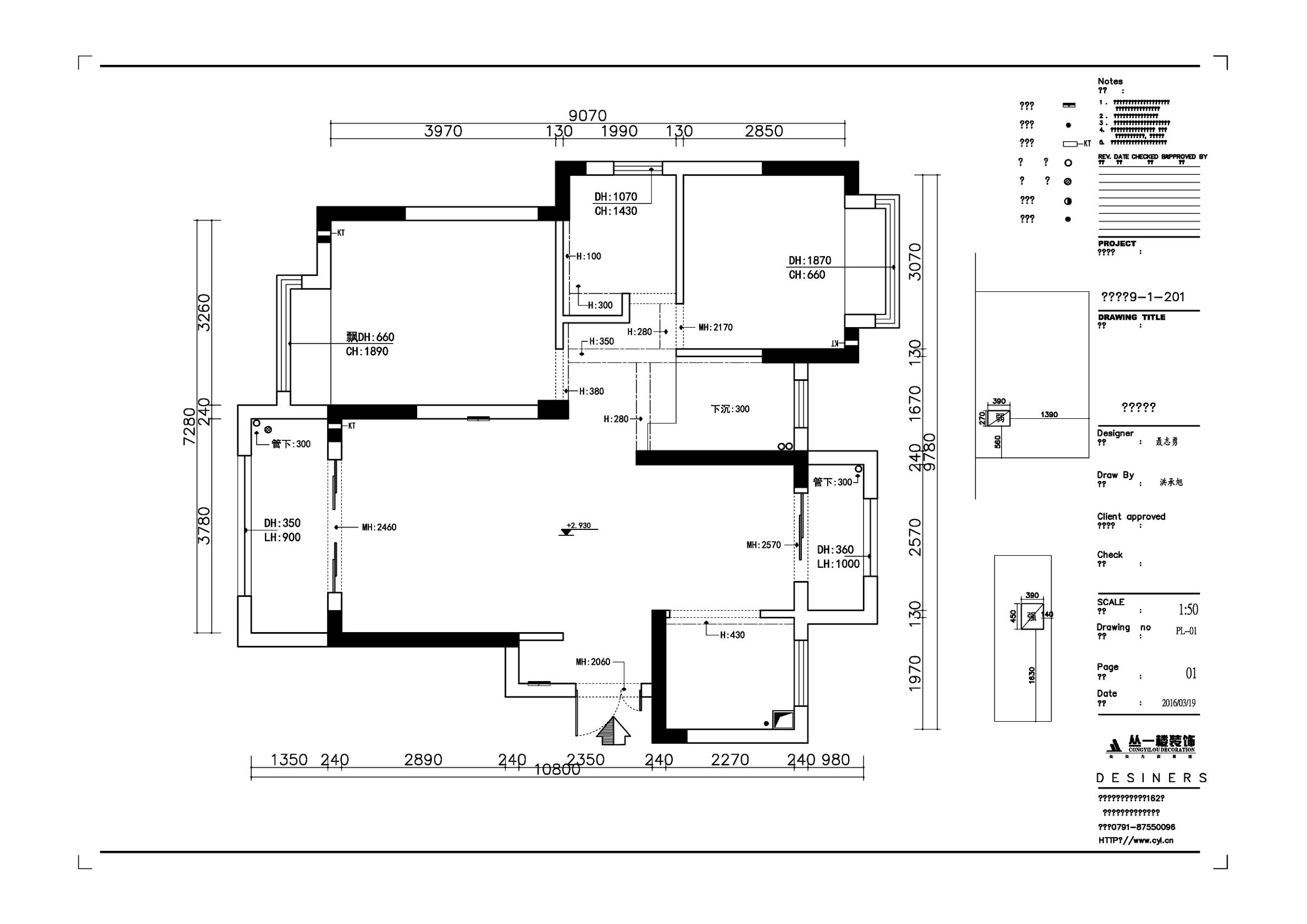
原始结构图

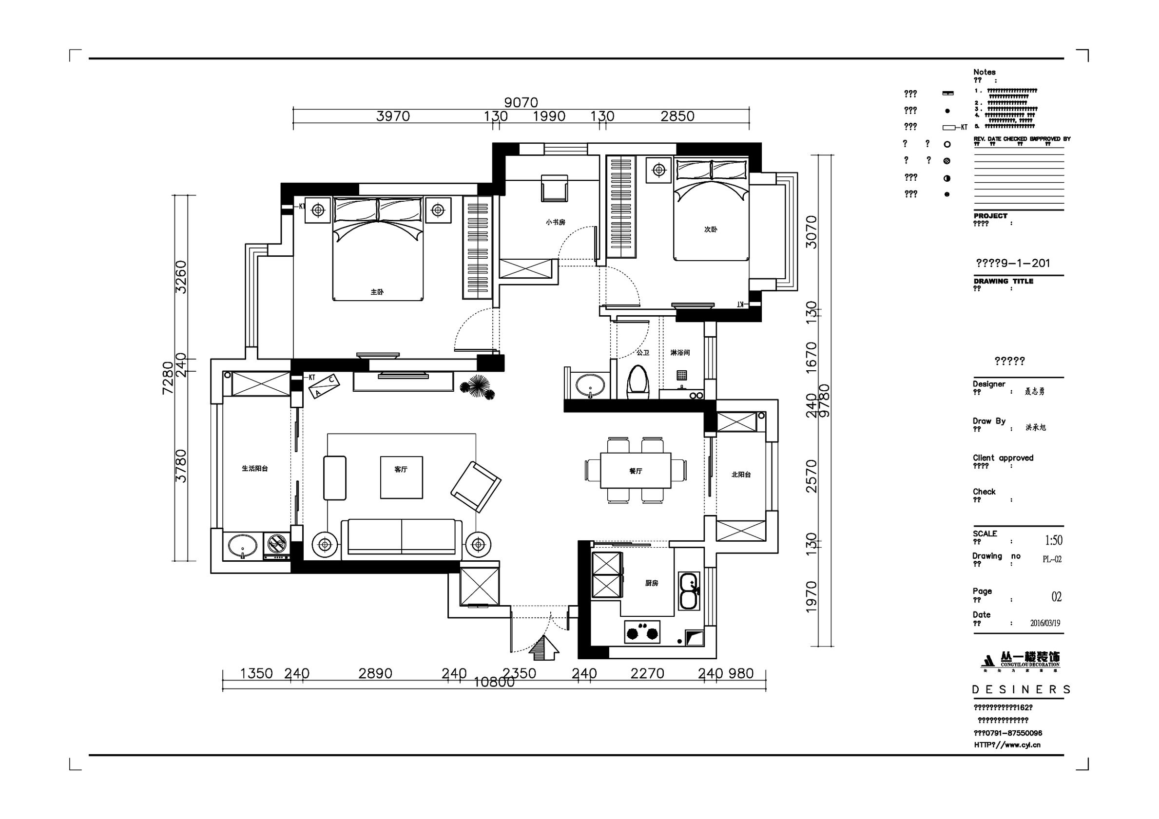
平面布置图
所展示工地为正在施工的工地,需要看实景工地的亲,欢迎咨询,朝阳天成更多户型、不同风格工地正在火热开工中!
南昌各大楼盘近期交房(红谷世纪花园、联发江岸汇景、莱蒙都会、海域香廷、保利金香槟、新力雅园、中骏蓝湾、中央香榭、众森红谷一品、路通沁园、绿地国际博览城、万达旅游城....)的业主,赶紧GET起来吧!
-------我是华丽丽的分隔线--------
设计师微信:diguadou888 (仅限南昌)