2020年下半年一开场,重庆高端房地产市场就迎来了一个“王炸”级产品入市,而随着它的入市,重庆豪宅市场的产品标准又再次提档。
7月17日,重庆·融创壹号院首次开盘,当天首推的T2产品一经亮相,就引发全城瞩目,这是融创壹号院又一次成为其所在城市的“现象级”热销项目。
数据解读 下半年首个现象级高端住宅代表作
就销售数据而言,重庆·融创壹号院无疑是当周销售成绩最亮眼的项目。不仅如此,在同类产品比较中,重庆融创壹号院的销售成绩依旧很能打。
2020年7月在主城300~500万级的大平层产品中,重庆·融创壹号院的销售套数、成交总金额、成交面积三个指标,都是第一,是同类产品中的“三冠王”。

(2020年7月主城总价在300万-500万大平层产品销售面积top10)
值得注意的是,在同类大平层产品中,融创壹号院的成交均价是最高的,但即便如此,融创壹号院的开盘成交套数、成交总金额、成交总面积依旧大数据领先于亚军楼盘。
所谓“现象级”热销,重庆·融创壹号院当之无愧。
而这样的“现象级”热销,对于融创的壹号院产品来说,却是一种常态化的销售状态。
2011年,融创首座壹号院系产品西山壹号院首开即成北京当年三料销冠王,2013年,58.4亿的网签成绩,西山壹号院再次登顶北京楼市之首,正式开启壹号院开盘即“现象”的销售历史。
随后,融创北京壹号院、融创陆家嘴壹号院、融创滨江壹号院等多座壹号院陆续落地,虽然每座壹号院根据不同城市风貌建设不同,但是壹号院的品质要求是一直相同的,其所到之处,皆为城市高端产品的标杆,并将开盘“现象级”热销,变成壹号院产品系的常态化销售状态。
锐理数据得到的最新消息,重庆·融创壹号院首批次T4产品或将在8月内入市。这个面积最小139㎡的产品又将如何续写融创壹号院“现象级”热销传奇?

(重庆·融创壹号院T4产品意境图)
见证“神级产品”融创壹号院为什么这么牛
高端住宅,独特的艺术与精神的契合至关重要。颠覆传统“豪宅”的繁复堆砌、重塑现代艺术豪宅审美,重庆·融创壹号院用定制化的产品为大竹林版块添上全城独一份的“高定气质”。
值得信赖的品牌影响力 开启定制不复制的高端居住生活
虽然重庆·融创壹号院是融创全国布局的第26座壹号院系产品,但是重庆·融创壹号院也是独一无二的。这是因为融创壹号院产品系定制不复制的产品打造思路。
据了解,每一座壹号院都是融创在实地考察了项目所在地的土地特质、城市精神与客群需求之后,以量身定制的方式,将城市精神和地段文脉融汇贯通,将项目打造成一种城市的建筑符号。每一个“壹号院”,都能够代表一座城市最高级的居住标准和产品高度。
定制而不复制,每一座壹号院都是绝版的精品住宅,而这一点在重庆·融创壹号院上表现特别显著。
表现一:大竹林、照母山板块的收官大盘
重庆融创壹号院所在的大竹林板块,是重庆先期开发的高端住宅板块,目前板块内部基础生活设施已经基本完善,生态商业交通资源密集分布,时尚现代化的城市界面已经呈现,所见即所得。在这种情况之下,板块内部可供开发的住宅地块已经极少。

锐理数据显示,2016年以来,大竹林板块只有一宗可供开发的商住地块入市,地块可建体量仅为16万方。相比之下,融创壹号院总共48万方的建筑体量,仅1.97的建筑容积率,堪称区域内独一无二的高端大盘。
表现二:资源高度聚集 生活场景任意切换
城市大盘的魅力,不必多说,其代表的是地段和产品的极致优势,是交通、商业、公园等资源的密集分布,综合实力过硬,不只是某一项能打。轻松实现“工作——生活”、“消费——享受”多场景的自由转换,与国际化生活方式接轨。
为了更好的突出大盘优势,融创壹号院做出了四位一体的产品规划,即轨道交通+高端商业+市政公园+定制型住宅产品。
论出行,项目周边除了已经开通的轨道6号线之外,周边交通更是四通八达。
以大竹林为原点,向东通过金州大道快速到达金州商圈和汽博中心;向西走大竹林大桥,是重庆北区通往大学城、科学城和成都的最快通道;向北通过金通大道、金渝大道到达礼嘉欢乐谷、悦来会展中心;向南通过金开大道、黄山大道至财富中心、照母山科技创新城,以及新牌坊、观音桥商圈。
论消费,项目自身的14.4万方商业完全可以满足周边居民的消费需求。除此之外,板块周边还有金州商圈、新牌坊商圈等商业中心环绕。由“居家”到“购物”,高净值人群只需要走出小区,商场、公园就在眼前。
论享受,项目外部就是一个约10万方的内嵌式原生溪谷市政公园(在建中),园内景色优美,是主城难得的生态氧吧。更远一点,九曲河湿地公园、照母山森林公园等6个市政公园已经建成,金海湾公园也即将完工。就在小区周边,业主可随意散步、遛娃,亲近自然。

(金海湾滨江公园)
表现三:最贴近高端客户需求的建筑和户型
在居住方面,重庆·融创壹号院整体规划约34万方的高端建筑,首期创新时代的大平层产品更是将建筑颜值与产品实用性的融合做到了极致。
在立面打造上,重庆·融创壹号院以曲线型外立面线条设计,呼应重庆蜿蜒的山水走势;用专门定制的高级灰”、“高级金两种色彩,隐喻重庆独特的天气和人们热情的性格,最后配以高墙窗比外窗设计,成就重庆独一无二的立面颜值。

(重庆·融创壹号院外立面意境图)
在户型设计上,重庆·融创壹号院从居住的角度出发,用心完善居住体验的设计理念,将力求做到在户型景观视野最大化的同时兼顾内部空间的品质感和私密性,并通过细节上的创新,来完成改善户型的升级。
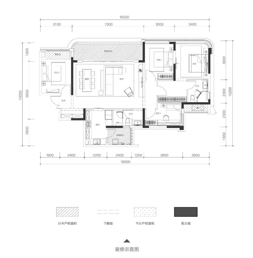
锐理数据以重庆·融创壹号院即将推出的T4产品建面约139㎡的四房户型为例,解析重庆·融创壹号院户型特点。

(重庆·融创壹号户型图)
该户型建面约139㎡, 套内约117㎡,四室两厅两卫,没有一点浪费的空间。且每一个空间尺度都很合理,基础优势十分明显。
- 全明空间+超开阔视觉,每个空间都有自然光线照射
- 开间约7米的市场主流大横厅,使用空间灵活多变
- 大玄关设计,归家仪式感更强
- 约85%高得房率
然而要完成高端产品的升级要求,单有这些基础配置还不够。为了使得客户的居住体验得到升级,这个户型做了这些尝试。
01扩大景观视野
借力项目外侧优质的自然资源及中庭景观,将户型本身与外部景观资源的结合做到最大化,从而提升居住品质,是这个户型的一大亮点。
具体做法有二,首先,超大面宽。
该户型的面宽为16.5m米,五开间。

(重庆·融创壹号院五开间示意图)
目前在重庆房地产市场中,只有少数产品能够将面宽做到如此大,且几乎每个开间都能够实现100%全采光。这样一来,房屋内景观视野得到扩充、采光通风更优秀,同时室内住户与室外景观的“对话”将变得更加亲密,在实际居住环境中将极大提升舒适性,项目的高端居住品质感油然而生。
其次,选用开阔落地窗+曲面转角落地窗设计。

(重庆·融创壹号院外立面意境图)
该户型在阳台和主卧都配置了独特的曲面转角落地窗设计,在绿建的国家规范下,做到了极致化窗墙比。外部优质的景观通过270°转角窗的输出,都将被放大,居住品质感在这些设计细节中表现得尤为充分。
02多场景兼顾
另外,随着家庭结构的变化,能提供给多个场景运用的户型,能够增加业主生活的舒适性和安全性。于是,从客户日常生活细节入手,该户型还做了这样的创新尝试。
户型的餐客厅与厨房视线相连。对于有幼儿的家庭来说,这一点尤为重要。大人在做饭的同时兼顾在客厅玩耍的幼儿,生活安全性大大提高。
作为一个4房户型,其最大的居住可能为三代或者两代人同室而居。此时,保证不同年龄段人们居住的生活习惯就显得尤为重要。
在这个户型中,有一个卧室与就在门口,与其他卧室间隔较远,非常适合做成三代同居的老人房。喜静早睡早起的老人与喧闹的孩子和晚睡的中年夫妻距离较远,双方都能尽可能降低对对方的干扰,有利于提升家庭生活和谐度。
表现四:独一无二的精工工艺
重庆·融创壹号院除了在立面打造与户型设计的所作出的定制化努力之外,在建筑工艺上暗自比很多同类产品做了许多增量。
其以为业主营造真正的健康舒适居家环境为目标,所选的建材均为高端配置:除了次卫及厨房,其余全部配置铝包木系统门窗。如此大面积的使用系统门窗,在市场上也是非常少见的。

(重庆·融创壹号院外立面意境图)
铝包木系统门窗一方面颜值高,相较一般断桥铝合金来说,边框更窄;另一方面隔热、降噪,能够为业主提供一个舒适、安静的生活环境。
与高配置的建材相对应的,是融创挑剔的精工工艺。其定制设计将门窗可视面边框达到极窄,宽度仅有6cm(普通铝合金8-12cm),如此才能凸显室内外感官的极致简约。
核心、便利,加上独一无二设计的传世产品,城市新贵渴望的三大“关键词”都能在重庆·融创壹号院找到精准表达。这正是它站上“潮头浪尖”,引领重庆豪宅的重要着力点。
这样的项目如何不让人期待?