在2020年前后遍布全国的城市“抢人大战”中,佛山的成绩相当亮眼,人口增量位于全国第五。为了吸引人才,留住人才,城市进行了一系列配套设施的新建和升级,其中不乏可以比肩一线城市的地标塑造。

桂城街道作为佛山最中心城区之一,城市发展的排头兵,也启动了一系列城市升级计划,其中包括很多学校,教育设施的新建和升级改造,来为年轻的人才解决家庭教育问题。竖梁社主持设计的南海桂城金桂高中便是其中一个重点新建项目。

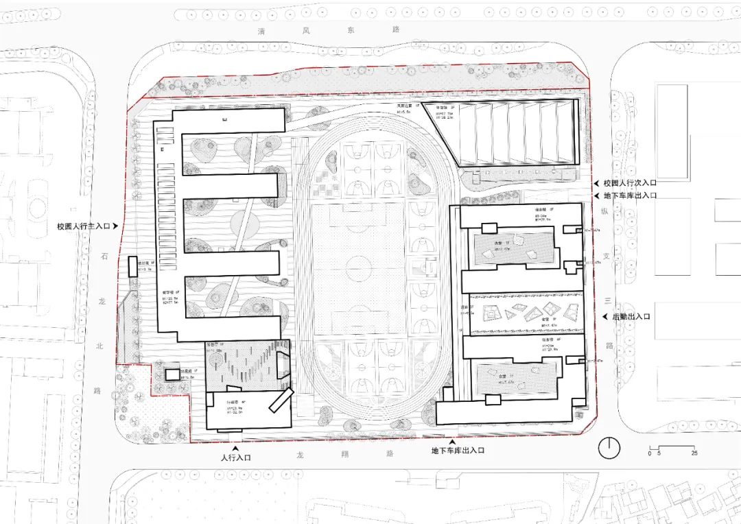
场地两边毗邻城市主干道,且通往桂城中心区映月湖,城市曝光率比较高。按照业主的要求,校园需满足师生共 3000 人的使用,包含教学,生活用房,行政楼,礼堂,体育馆等等共约 90000 平方米建筑面积,整体密度较高。

校园总平面

功能布局
在城市设计层面,我们希望呈现一种严谨的整体性,高度精确和效率地去使用土地,保证每个场所都有正确的逻辑,尺度和朝向,而不是概念先行的去编排。

城市设计的结果,是一个貌似殿堂的建筑群,通过连续的柱廊和统一的开窗设计强化了城市界面,让使用者联想起古典建筑的秩序感,进而产生严肃的第一印象。


但随即而来的是柱廊后面连续的自由景观和立体公共空间,他们层叠在古典的表情之下,隐约透出丰富的活动和生动的立面表情,让人产生一探究竟的好奇心。

设计手稿





对于校园主要的使用者——中学生而言,校园是重要的生活场景,校园空间很大程度上塑造了一代人的空间观,审美观。我们希望年轻人成长的环境具有以下特点:
开放性 ,建筑群虽然有方正的布局,但公共空间在其中流动。架空后的一层是连续的流动景观,学生的追逐和奔跑是自由的,拾级而上,也能走到错落的空中平台,在各个方向都能找到兴趣点。


神秘感 ,就像爱幻想的青少年一样,空间也应该是意想不到的,由日常的建筑元素串联起来的蒙太奇场景。高耸的大厅和亲密的小平台,开阔的庭院和扁平的架空层,纯洁的白色和热烈的橙色直接拼贴在一起,突出戏剧性。在这里,探索未知是被鼓励的。

设计手稿



逻辑性 ,在自由和浪漫的表层下,我们希望让使用者感知到空间的逻辑性。开放的公共空间,会强调轴线和方向;看似随意的立面突起,会强调视线对位关系;穿越教学楼的飞桥,对应功能流线上的最短路径……虽然不吝于挥洒色彩和幻想,我们仍然希望最终的使用体验是克制的,专注的,科学的。

兼顾实用与趣味性的流线



从施工建造到长期运营的绿色、节能、经济、舒适是我们一以贯之的设计目标。地处夏季炎热的广东佛山,我们通过建筑底层架空,穿插大片阴影下的灰空间,穿堂风引导等实现自然的降温通风,并把慢行系统完全连接,在恶劣天气下也可以走遍校园所有房间。

通过中庭拔风调节气候



其中在体育馆大空间中,我们采用开放气候边界的设计,仅用顶部高侧窗排气扇加立面气流引导板便实现舒适的体感温度控制,大幅降低了大空间的空调运营费用。其中外立面挡板设计加深,能在夏季暴雨天气保持室内干燥;挡板逐层变换角度,为上课的师生提供柔和的室外自然光。





在游泳馆和食堂等大进深的空间中,加入了采光天窗的设计,为室内带来柔和的自然光,减少人工照明的时长。在游泳馆浅水池区域的天窗更是完全替代了人工照明,也使得泳池获得艺术气质。


在景观设计中,我们采取“去中心化”的流动布局,用散落的草坡把绿色植物带到校园的每一个角落,结合水系,上人屋面绿化等,柔化建筑边界,改善局部微气候。

多层次的景观空间




在大空间运动场馆的设计中,我们选择天然去雕饰,通过对大空间结构的结构选型,选择一个符合力学原理的的结构形式,并将结构完全裸露,在节省了一笔不菲的装修装饰开支的同时,呈现出理性的结构特征,无论是游泳馆的连续清水混凝土拱,还是体育馆的连续X型柱和折形屋面,都让空间呈现出一种原始的力量感和质朴的韵律美。




技术图纸

教学楼立面图

宿舍楼立面图

教学区剖面图

体育馆剖面图

浅水池剖面图

连廊大样
项目信息
项目状态 | Status 已建成 | Completed
项目位置 | Location
佛山市南海区清风路 | Qingfeng Road, Shunnanhai District, Foshan
业主 | Proprietor
佛山市南海区桂城街道、佛山市南海区桂城投资发展公司
设计单位 | Design unit
竖梁社 | Atelier cnS
主持建筑师 | Lead Architect
朱志远、宋刚、钟冠球 | Zhiyuan Zhu, Gang Song, Guanqiu Zhong
项目负责人 | Project Manager
林海锐 | Hairui Lin
方案设计团队 | Architectural Design
竖梁社B组:黄文轩,肖文菁,李佩佳,陈晓茵,邓展崇,林绮婷 | Atelier cnS Group B: Wenxuan Huang, Wenjing Xiao,Peijia Li, Xiaoyin Chen, Zhanchong Deng, Qiting Lin
室内/景观/导视设计团队 | Interior/Landscape/S ignage Design
室内、景观总设计:罗子安 | Interior & Landscape Design Chief Designers: Zian Luo
室内设计:利嘉琪,黄振诚,周纯洁 | Interior Design: Jiaqi Li, Zhencheng Huang, Chunjie Zhou
景观设计:叶蝶,黄丹艺 | Landscape Design: Die Ye, Danyi Huang
导视设计:莫石峰,简秋怡 | Signage Design: Shifeng Mo, Qiuyi Jian
施工图设计单位 | Construction Drawing 佛山市岭南建筑设计咨询有限公司
项目规模 | Scale 用地面积:50988㎡,
建筑面积:83485㎡ | Site Area: 50988㎡, Built Area: 83485㎡设计时间 | Design Time2020.06-2021.09
竣工时间 | Completion Time2022.06
摄影 | Photography吴嗣铭 | Siming Wu
资料来源、版权所有: 竖梁社建筑