
▲ 点击“火柴设计联盟”,关注设计互动平台 每天更新,喜欢的可以点赞关注转发哦!
滑到文章底部获取免费资料
《 CM design 》┆『 澳门金龙酒店娱乐场&日本餐厅项目 』设计方案JPG+PDF┃效果图JPG┃设计施工图DWG+PDF┃物料详解XLS┃381MB〖火柴设计联盟〗第 2361 期
▼ - 部分作品阅览 -
1.项目概况














2.资料截图

3.概念及效果图














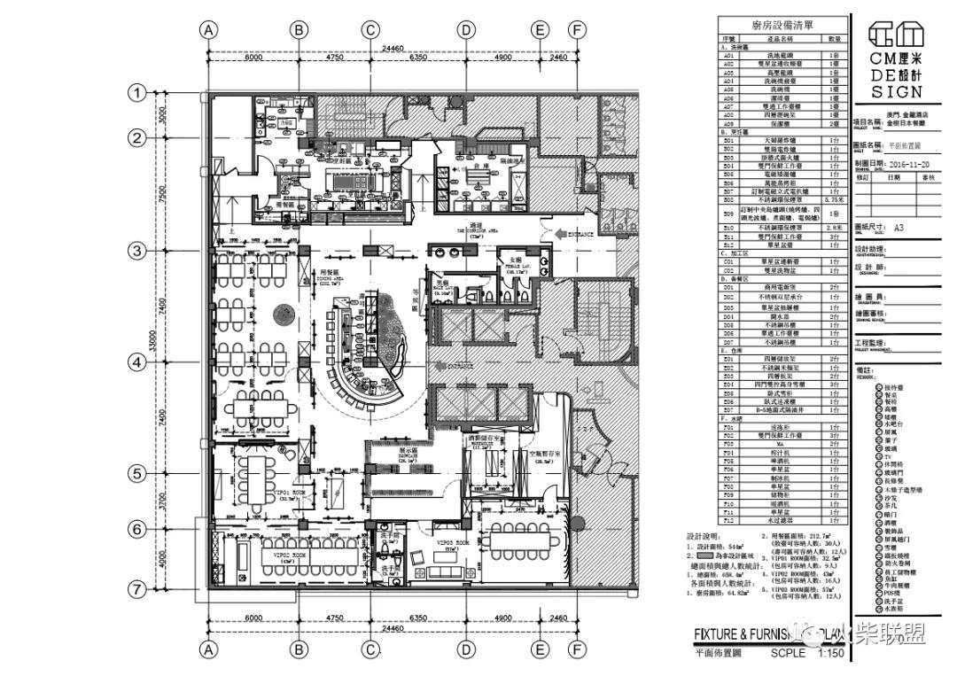
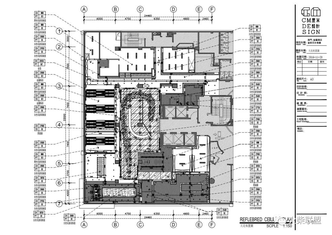
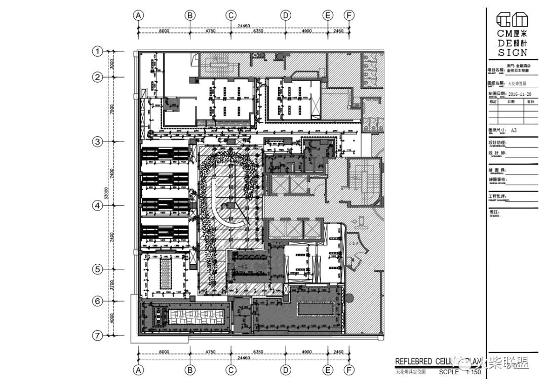
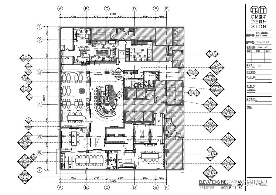
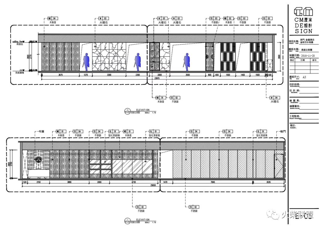
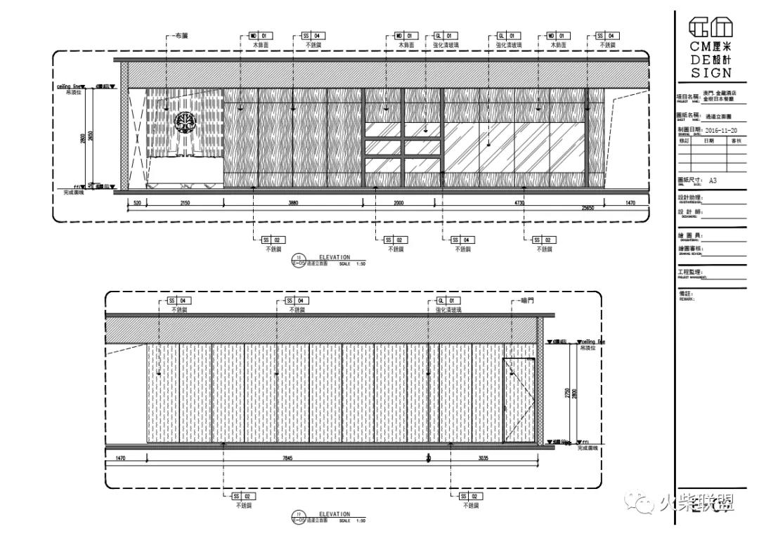
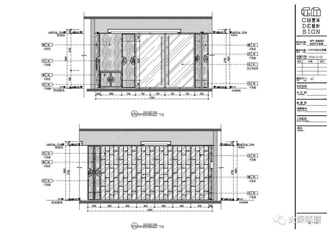
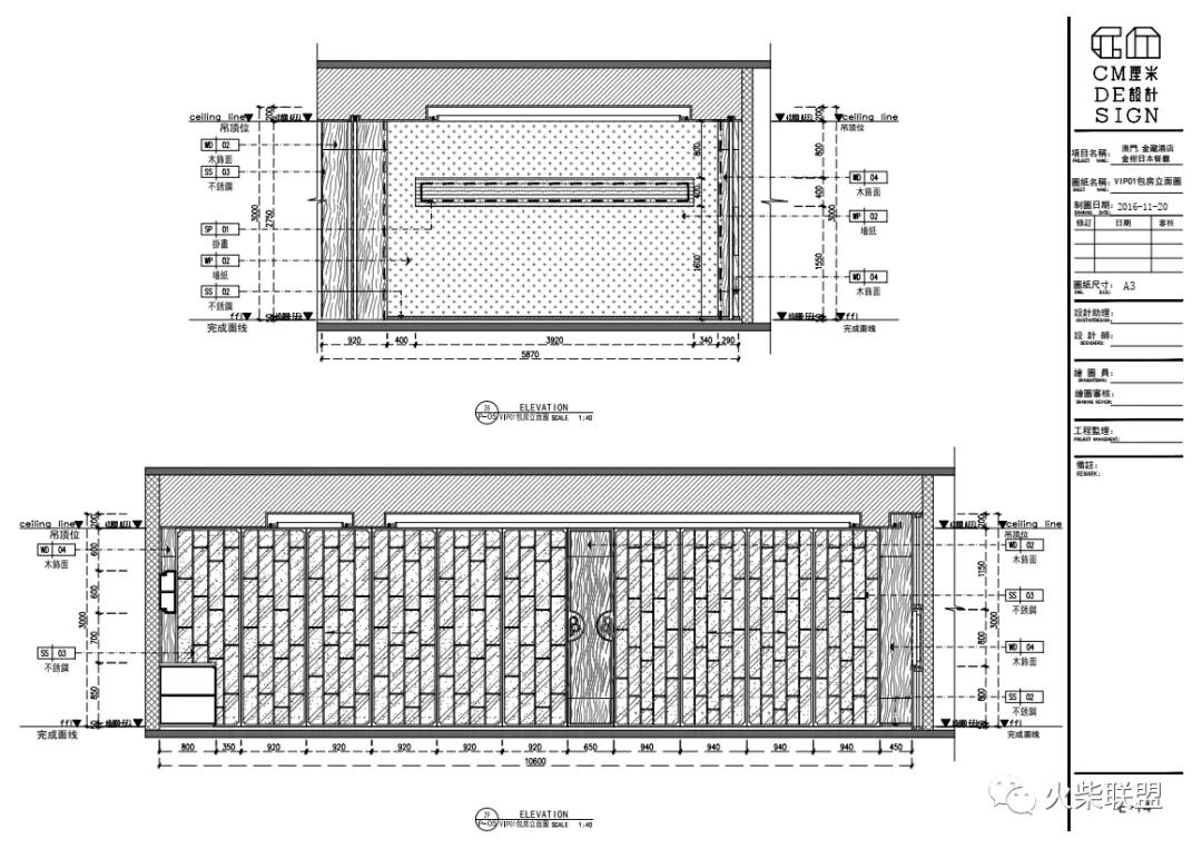
4.施工图样图















【作品名称】:『澳门金龙酒店娱乐场&日本餐厅项目』
【作品内容】:设计方案JPG+PDF┃效果图JPG┃设计施工图DWG+PDF┃物料详解XLS
【文件格式】:DWG,PDF,JPG,XLS
【资料大小】:381MB
【免费获取方式】
关注转发加评论后私信“2361” 即可获取此套完整版资料
免责声明:
以上图片及资料内容来源于网络,由我方整理,版权归原作者及其公司所有;
本资料仅供学习研究之用,不得用作于商业用途,若此图库侵犯到您的权益,请与我们联系删除;
本文章版权归本头条号所有,未经同意不得随意转载 ,若恶意侵权将追究其法律责任