天正建筑如何画立面图和剖面图?
如图,是我们用天正建筑画好了各个部分的图纸,比如首层平面图,标准层平面图,顶层平面图等等,最好都放在单独的文件,首先需要打开这些图纸,将其图形移到一个统一的点,比如都是A点,统一移动到(0,0,0)点,这样生成立面图才不会报警。

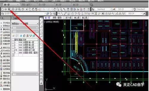
打开天正建筑cad,点击"文件布图“。

点击”工程管理“。

点击右边的倒三角,找到并点击“新建工程”。

找到自己剖面图保存的位置,命名,然后点击“保存”。

自动回到操作界面,点击“文件夹”形状的图标,添加文件(注:我这里是以前添加的,所以现在会有文件)。

选择“首层”(最下面的图纸)。点击“打开”

还可以点击“箭头所示”的位置进行文件的添加。如此操作,按顺序添加完每一层,注意修改层高。对于标准层代表很多层需,比如4-6成,需要输入引号内内容”4~6“。

画剖切符号
剖面图是从某一个位置剖开的,需要一个剖切位置将其剖开,点击“标注符号”。

找到点击“剖切符号”。

点击选择剖切位置的起始点。

点击选择剖切符号的终点(2个点确定一条直线)。这样就确定一个剖切面了。

点击一下“保存”。

画剖面图
点击“剖面”。

点击“建筑剖面”。

要求选择剖切线,点击选择刚才画的剖切线,注意如果画了多条剖切线,选择自己需要进行剖切的线即可。

提示选择要出现的轴线。

点击选择需要在剖面图上出现的轴线。

点击“生成剖面”。

找到保存剖面图的位置,点击“保存”。

这时候就生成了一个剖面图。

生成的剖面图是不能够完全使用的,不少地方有些问题,有的线条没有画出来,一方面因为剖面切线的位置的因素,一方面是因为软件的因素,都需要自己进行修改添加。