昌都如重庆一样,地貌以丘陵、山地为主,被称为*藏西**的“山城”。如何在这里建成医院,处理高差自然成为了第一要务,该项目处于10m高差地的典型位置。——丁青县藏医院
▼鸟瞰图

10m高差
尊重地势本性特征,让建筑立于断坎之上,成为南北联系的纽带,同时兼顾功能需求,挖掘出新的建筑空间格局以及组织模式,把平地留给人们活动,让建筑与断坎融为一体。(地面部分停车,下面部分花园)
▼近景鸟瞰图

阳光
斜向可以争取到更多阳光及山景。
▼顶视图,倾斜的朝向可以获得更多阳关及山景

▼屋顶活动平台

▼沿街透视


▼立面局部

*藏西**八平的居民住所大都搭建阳光房,好处是南北通透,夏季凉爽,冬季不用开暖气,拥有自然的温暖。丁青藏医院阳光厅的设计同理,遵循当地人民的居住特点,为室内的空间提供采光与通风,满足功能性的同时,将外墙的界面处理的更加柔化与模糊。
▼围墙局部,柔化外立面



▼大厅

▼大厅局部

▼护士站局部,充足的采光

藏式
高耸的柱林、深入的窗户、围合的内院,这些现代的元素,造就了一种新的藏式语言。通过实木质感与人尺度拉近,打破常规高高的外墙与人的隔离。
▼沿街透视夜景,高耸的柱林

沿袭
藏区传统的建筑,由下而上依次为:储藏——人民——庙堂,本项目依次为:供给——住院——问诊,形成传统和现代的跨时空对话,在沿袭传统的同时,增加了医疗空间的体验感。独具特色的流线组织,增强了空间的协作性和灵活性。
▼东侧庭院夜景

▼西侧庭院夜景

结语
这所藏式特色的医院,为当地居民的医疗发展提供了一种新的可能性。不仅满足了患者和家属的医疗需求,也满足了他们的精神诉求。暖暖阳光下有这样一番蕴含藏文化的和谐景象:大厅内的医生们正在晒藏药,入口处的家属们正在草地上喝着酥油茶。
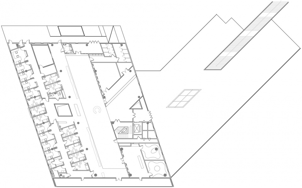
▼一层平面图

▼二层平面图

▼三层平面图

项目名称:*藏西**自治区丁青县藏医院设计公司:八作建筑 开工日期:2014年4月竣工日期:2014年12月主持建筑师:王淼、张曙辉建筑师:杨志强、贾若天、刘欢项目地址:中国*藏西**自治区丁青县建筑面积:3300㎡摄影版权:吕博、李奔跑合作方:中国中建设计集团有限公司业主:*藏西**自治区丁青县人民政府