
萝卜点评,万事通说房事!
说起新加坡的东海岸,那迷人的沙滩还有精彩的娱乐活动,让人每次去都感觉在度假!清凉的海风和幽幽的绿荫是东海岸的魅力所在~想象一下,从今往后这不再是你的休闲方式,而是日常生活,那该有多爽!!!

东海岸(East Coast),位于新加坡东南部的第15邮区,毗邻东部海岸线。

东海岸地区是本地的传统优质居住地。地点靠近市中心,交通便利,美食众多。
112 Katong,Parkway Parade,Katong V等众多购物中心近在咫尺。


拥有细白沙滩和漫长海岸线的东海岸公园,是本地家庭首选的休闲胜地。
海边跑道,滑轮道,烧烤台,大型儿童游乐场,中西餐厅,帐篷营地,水上运动,各种设施应有尽有。


区内的道南小学是本地顶尖名校,九所GEP学校之一。

长达43公里的汤申-东海岸地铁线,目前正在紧锣密鼓的修建中。建成之后,将全面覆盖东海岸地区。
汤申-东海岸线预计于2023年全面通车。
届时,乌节路,珊顿道金融区,滨海湾等核心地带,短短几站地铁即可直达。

住在东海岸的海景房里是怎样一种体验?这其实并不难实现,新加坡东海岸地区有很多的私宅项目,主要是公寓和别墅类型,公寓的地皮以中小型地段为主,而且很多是永久地契。
住在这里,坐拥东部海岸线的无敌壮丽海景,体验梦想中的生活~
是不是很动心想在东海岸安个家?最近这段时间,东海岸地区有不少新盘推出市场。下面介绍的四个公寓项目,都是今年的市场新盘。

Amber Park (安珀苑)
Amber Park最近在市场上的动静不小,相信很多人都从各大媒体看到了这处房产的广告。
作为东海岸地区少见的大型公寓新盘,再加上海拔235英尺的600米观景跑道设计,令人印象深刻。

Amber Park(安珀苑),具体位于安珀花园 (Amber Gardens) ,占地达1万9800平米,永久地契。 发展商是著名的城市发展集团(CDL)。
兴建中的丹戎加东(Tanjong Katong)地铁站,相距Amber Park仅3分钟步行距离。
5分钟到达Katong Shopping Centre,Katong V,112 Katong等购物中心。
10分钟步行到达东海岸公园。

公寓小区设计兴建3栋21层高的住宅楼,总计592个公寓单位。
22楼顶层将连接全部三栋高楼,设计成一个美轮美奂的天际花园,提供观景台,600米天际跑道,瑜伽平台,天际健身区等独树一帜的公寓设施,预计2023年第三季度之前整体完工。





Amber Park的户型设计,包括了一卧到五卧的各种户型,内部设施一应俱全,室内设计采用温暖的木质暖色调和柔软的灰色调,尽显现代低奢风格。

Amber Park向住户提供尊贵礼宾服务,无论是家政,洗衣,派对策划,还是餐厅预定,一系列细致周到的服务,提供无微不至的照顾。
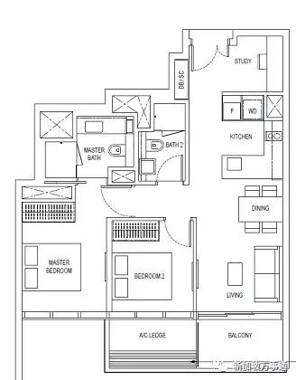
下图的两卧+书房户型,面积69平米(743平方尺)。
按照楼层和朝向的不同,最新成交价介于180-190万新币之间。


Coastline Residences

Coastline Residences位于安珀路 (Amber Road) ,和Amber Park楼盘的距离并不远。
这个位置,走到丹戎加东地铁站和东海岸都更近一些。
Coastline Residences属于典型的东海岸小型精品私宅项目,占地3600平米,永久地契,设计兴建2栋21层高的住宅楼,总计144个公寓单位。
户型设计包括一卧到三卧的各种户型,以及顶层的五卧豪宅(Penthouse)。 预计于2022年底之前整体完工。
独特的波浪式阳台设计,别有风格。




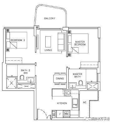
Coastline Residences 的两卧户型,面积67平米(721平方尺),最新成交价在175万新币上下。


Nyon

Nyon于今年3月推出市场,具体位置还是位于安珀路 (Amber Road) ,在Coastline Residences楼盘的正对面,两者相距仅一条街道。
从Nyon的位置,走到丹戎加东地铁站,约130米左右。东海岸公园约500米。

Nyon同样属于典型的东海岸小型私宅项目,占地2639平米,永久地契,设计兴建一座18层的独栋住宅楼,总计92个公寓单位。
户型设计包括一卧到三卧的各种户型,预计于2022年9月之前整体完工。




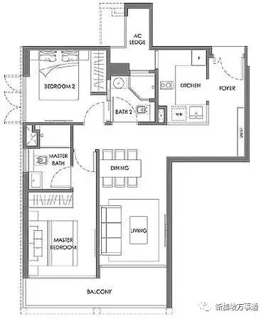
Nyon的两卧两卫户型,面积76平米(818平方尺),最新成交价在190万新币上下。


One Meyer

One Meyer楼盘的位置和其他三个新盘都不同,不在安珀路了,具体位置在麦雅坊 (1 Meyer Place) ,加东公园地铁站 (Katong Park Station) 的对面。
从One Meyer出发,步行到加东公园地铁站,仅1分钟即可到达。
步行到东海岸公园只需要2分钟。

One Meyer同样属于典型的东海岸小型私宅项目,占地2200平米,永久地契。
项目将兴建一座19层的独栋住宅高楼,总计66个公寓单位。
户型设计以自住为主,没有一室一厅小户型,而是设计了32个二卧单位和34个三卧单位,预计于2023年7月之前整体完工。




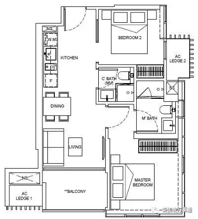
One Meyer的两卧两卫户型,面积57平米(614平方尺),开放式厨房,最新成交价介于160万-170万新币之间。

【面朝大海,春暖花开。】
这是诗人海子的一句名作,也是众多都市人的梦想。
今天介绍的四处东海岸公寓新盘,位置非常接近,都是永久地契,有很多共性,也各自有各自的特色。
Amber Park,Coastline Residences, Nyon这三处新盘都位于安珀路附近。
One Meyer楼盘相隔一个地铁站距离。
Amber Park是面积接近2万平米的大盘,其他新盘都是小型精品楼盘。
这四处楼盘的位置,都相当的接近东部海岸线,可以远眺壮丽海景。
如果喜欢新加坡的东海岸地区,喜爱滨海生活,希望在这一带置业安家的买家,可以针对不同楼盘的特色,做出具体选择。
今天的萝卜点评就到这里,我们下期见!