


理想人居

海东俊园深谙高端人居需求,让理想人居回归自然山水与地域文脉,于滇池边打造一个富有创意的标志性生态湿地居住社区。

© 主入口实景图
全世界的高端住宅都有一个共同的特征:拥有稀缺资源。海东俊园产品致力于利用周边湿地优势资源,设计萃取现代人居住理念和湿地环境的特征,在滇池边营造现代别致的建筑、内外浑然一体的湿地水系绿化景观。结合优越的自然环境,巧妙地平衡城市、自然、文化之间的关系。

© 门厅实景图
时代语境 · 三纵一横

© 实景图
项目总体规划以“三纵一横”的景观绿轴贯穿整片住宅,形成多个私密独立的住宅单元,并最大限度的引入滇池湿地的生态景观,水系贯穿全住区,追求一个自然生态为主题的独特社区。

© 总平面图

© 实景图
理想人居 · 立面表达

© 实景图
立面设计整体为新中式风格,造型上水平与垂直线、体块相组合,力求新颖。在布局上与自然结合,使建筑与周围环境融为一体。

效果图
————
实景图

© 门头部位天然石材的运用,彰显价值感
立面重点部位以现代风格表现,在构图比例、简洁柱式的运用及门窗线脚的细部的处理等诸多方面,无一不赋予每一幢建筑轻间活泼的生活气息。

© 立面透视图

© 墅院实景图
湿地生态 · 精奢流动

© 主入口实景图

© 实景图
项目主入口连接中轴公园形成主轴景观及交通轴线,增加全龄段活动场地,融入特色铺装,创意浮桥,景观包厢,疏林草坡等元素,意在打造静谧的闲暇时光。

© 实景图

© 实景图
用原生态的景观创意和手法,打造都市“慢”生活滨水景观,以水的灵动,融入生活记忆。在立面的构宅间用缤纷植物搭配突出的花园主题,楼间距形成安静优雅的巷道小径,通往每一户墅居。


© 水边的鹿语,引入“水轴+花道”的脉络

© 实景图

© 实景图
墅居空间 · 赋雅于境
建筑面积约175㎡的L型合院产品,拥有南向8.7米大面宽,户户全明,格局更加通透舒适;南向套房内均设有2.8米面宽的独立卫浴,让卫浴这一私密度极高的空间得到了最大的满足。

↑
首层空间
→
合院内景

以院落空间为平面的中心,公共性功能空间围环绕展开,业主与家人可以有各自的活动空间。临院可以借景入内,享受“对影看月,临窗听雨”的文人意趣。

© 客厅实景图

© 首层平面图
▲首层,最大面积约70㎡私享花园,同时贴心设置老人房,免去了老人上下楼梯的不便;客厅、餐厅全南向设计,采光通风极佳。

© 楼梯空间实景图

© 儿童房实景图

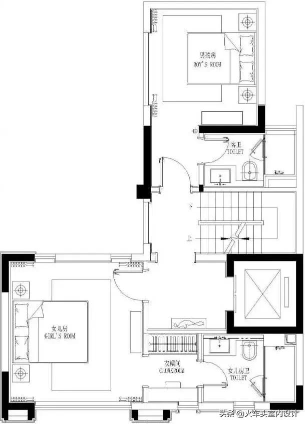
© 二层平面图
▲二层,童趣儿童套房,为孩子打造一处属于自己的童话天地。

© 多功能房实景图

© 主卧实景图

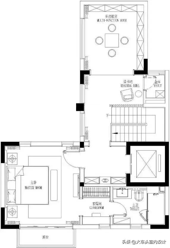
© 三层平面图
▲三层,观景主卧套房,让超大私家庭院风景抬目即拾,带来恰到好处的生活尺度;且南向带奢阔露台外接天地院落,自带独立衣帽间,大尺度卫浴,仪式感十足,真正做到了二孩三代同堂。

© 室内实景图

© 室内实景图

© 车库实景图

聆听自然天籁,私享生态人居
对话城市繁华之后
亦能悠享静谧的温馨空间
经过时间洗礼,依然值得典藏的精致宅邸
工程档案 | PROJECT FILE
项目名称:昆明俊发 · 海东俊园
业主单位:俊发集团
建筑设计:森拓设计机构
设计顾问:干彤
设计总监:周德峰
设计团队:施华丰、章杭宝、刘宽