家装这件事千万不能马虎,一个温馨的家庭离不开家装的功劳,尤其是很多刚刚结婚的小两口的婚房装修更是马虎不得,今天小编就给大家介绍这样一个甜到爆炸的夫妻,看看她们家婚房是如何装修的?
标签:婚房
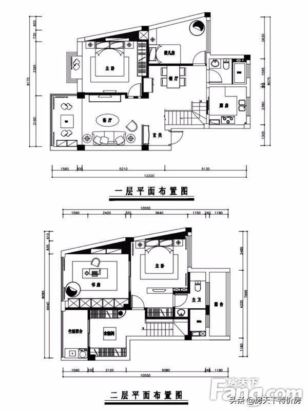
项目信息
项目地址:欣欣家园
装修面积:顶+阁 140m2
工程造价:28万
主要材料:鹏诺瓷砖、全美橱柜、尚高洁具、金色秋天木门等

业主是一对年轻的小夫妻,比较喜欢走工业风的路线,希望与众不同,于是在赖晶晶顾问的设计下,便有了现在的别具一格的房子。就像业主说的:“和设计师很投缘,自己想要的东西,设计师一下子就勾勒出来了。”

少即是多,家里的颜色其实很素雅,靠软装来提升空间的亮度,冲击力。黑白灰的大色调里放了青绿色,看起来很简洁且细致。墙上挂着大小不一但风格一直的装饰画,将整个房子衬的更有艺术感。


作为复式楼来说,楼梯的美感其实影响着整个房子的质感。深色的地板搭配黑色金属扶手,使得原本厚重的楼梯霎时变得轻盈起来。简洁的线条感让楼梯现代、时尚,而在楼梯下方的储物空间也增强了实用性。

这套房子有两个房间,是截然不同的风格。一个是将工业风进行到底的,像极了影视剧里精致男主的房间。

而另一个,铺上了大红床上四件套,一看就知道这是个婚房。

整个房子里,将工业风进行的最彻底的是卫生间。不仅没有贴瓷砖,甚至连淋浴房的门都没有。看上去就像是没装修过,其实是把墙面地面做了特殊处理,这粗狂、野蛮、原始的韵味直击胸膛。

最让人羡慕的是,这家有一个属于女主人的优雅的衣帽间。

还有一间大大的书房,可以在书房晒着太阳看看书。


或者,可以一起嬉笑打闹

爱情并不一定都要上九天揽月,下五洋捉鳖,坐在沙发上抠脚也挺好。

装修也不一定要富丽堂皇、浓墨重彩,自己喜欢才最好。

看过这家的装修是不是对自己家的装修有点差强人意,其实生活就是要用心经营才会别样的精致。如果你也打算结婚不如参照他家装一装自己的新房。