业主在寻找设计师和装饰公司时,参考很多装修案例,选定新中式风格,业主年龄层次为中年成功人士,对设计上要求明亮大气又具有中式底蕴。故而,在做次方案时户型变化较大,中式园林讲究一步一景,层峦叠嶂,把进户门厅扩大,用中式漏空花格点缀,透过八角窗,看到沙发背景的荷花图,意境美妙,笔墨生香。
整体色调轻快,中式铜锁加印,深色柜体,浅色地面,拉伸空间,色彩层次丰富,满眼*光春**。
设计师:张蕾
项目地址:德水香林
设计风格:新中式
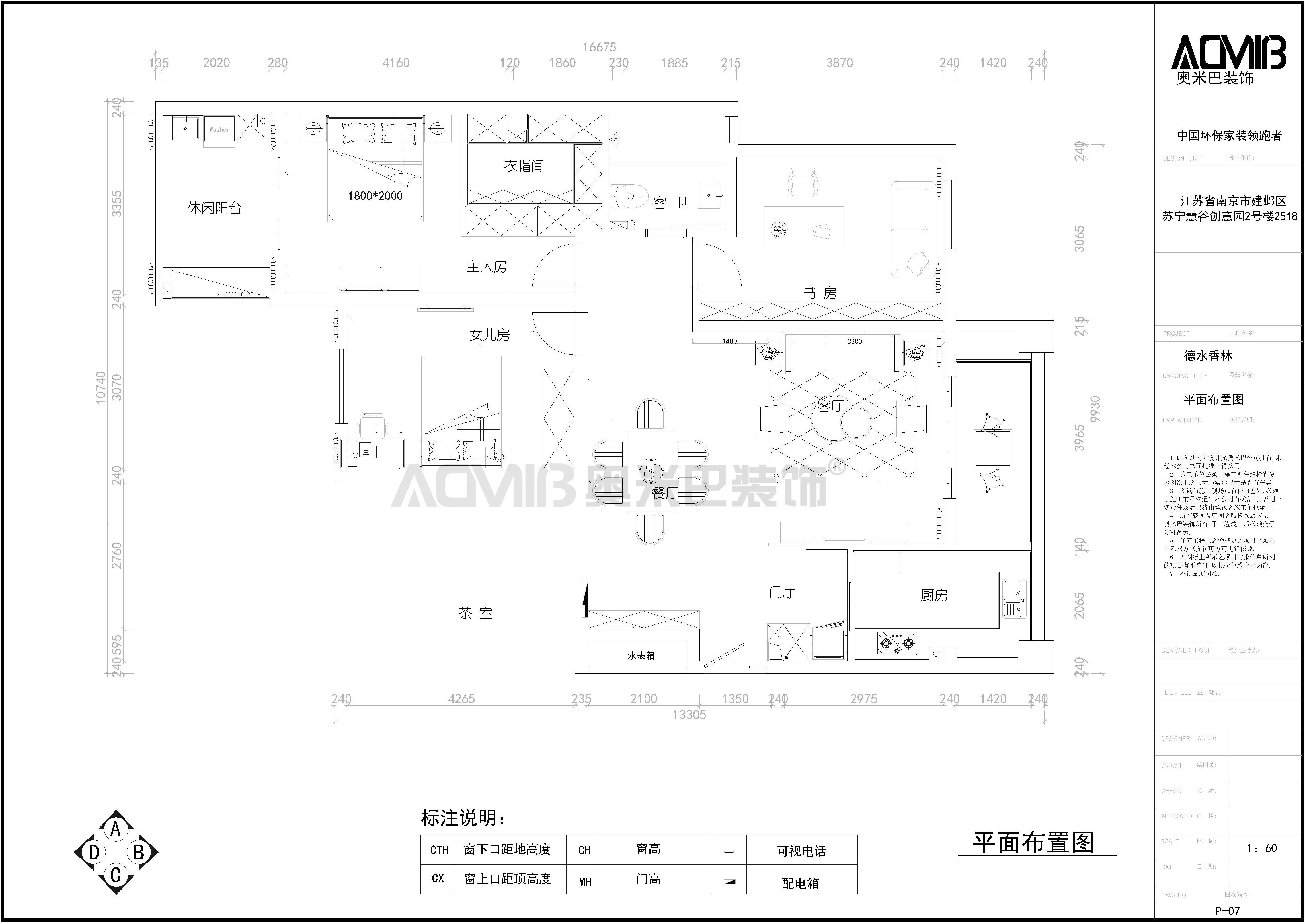
面积:127㎡
BEFORE

AFTER

效果图
室内整体采用大量的原木色,来表现中式的本真,又糅合了浅色的地砖,增加现代感。简单利落的木栅栏隔断,在灯光的照射下,凸显了自身的线条美。

整个空间的勾勒,并非通过简单的物品堆砌。在设计笔触之下,静谧而又轻盈,素雅而又质朴。这既是一件艺术品,又是业主极简的隐逸生活。客厅吊灯轻柔氤氲的灯光挥洒下来,与含蓄的落地灯相互映衬,使得空间宁静致远,用线条勾勒出一幅淡妆浓抹的写意画,甚是精巧。

大面积的落地窗,开合之间,把时空隔绝成两种形态。窗外是车水马龙的俗世妖娆,窗内是春意如诗的惬意空间,横穿古今,这大概就是新中式的魅力所在。沙发背景墙的色彩游走在春意盎然之间,带来的繁花盛开的意境美。身处其中,每个细胞都放松下来,逃离了喧嚣,感受到一缕安宁与惬意,享受着此时的舒适。

移至餐厅,餐桌与客厅吊顶线条相呼应,一派包容与充满凝聚力的气息自此而生,墙上一幅幅画卷,随着空间的穿梭,时光的变化,娓娓道来东方独有的气韵。古往今来,穿林打叶,回首不过云烟。学会与人生和解,就像这禅韵般,不管外界如何,心灵自有归属。

卧室空间的设计呈现出素雅简洁的美学气质,背景墙以白、灰绿为主色调,于水墨加以渲染,延续了主题风格,让“莲叶”元素自然融入,自然勾勒出几分灵动和韵律,给予人无限遐想。
人文的气息愈发浑厚,光影之间营造出意境深远的空间氛围,令人不自觉沉浸其中。当自然光线穿过纱帘的朦胧感,隐约照进屋室里,虚灵清雅。

根据墙的尺寸,为卧室量身定制了衣柜,满足了业主的日常收纳需求。白色调的背景墙搭配木制家具,置身其中,褪去一身疲惫,质朴优雅的木色,营造出沉静素雅的放松感,有时生活就是这么简单惬意。
“谁擫昭华吹古调,散花便满衣裾”,暗香浮动,牵动着古往今来文人墨客的心。穿越历史的长河,把古今融合在一起。设计不是一味的追求表面的浮夸,更重要的是体现居者的品味和向往。