假期过得太快
就像龙卷风
博派装饰已经开工啦
“用心服务 服务到心”
为了更好的服务
小编将不定期为大家推荐优秀设计师
……
今天
Elaine为大家推荐
2017年度优秀设计师得主
徐建敏 设计师

徐建敏
博派装饰设计五部总监
毕业于赣南师院
擅长风格:现代简约、新中式、欧式风格、北欧风格、美式风格。
设计案例:保利别墅、余杭超山自建房、复地黄龙和山、保利罗兰香谷、绿城·诚园、绿城·*瑰园玫**、五里塘苑、赞成赞城、昌源清苑
从业经验:曾先后就职于宁波大镜国际空间设计、杭州康源装饰有限公司,六年家居设计经验。
作为一个室内设计师,
“用最少的投入,来最大化的美化和利用现有空间”;
“一切随心,用心去感悟空间”
徐建敏的作品或许不带有特定的标志性符号,
但从心出发和用心服务,就是她的语言。
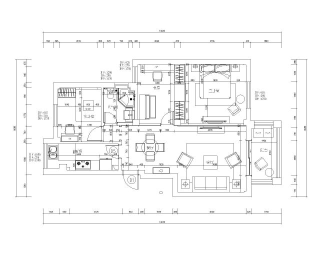
城市。桃园
— 一个将传统和现代相结合的概念设计 —
设计面积:108m²
设计风格:混搭风格

“安乐与满足”的空间概念设计
简洁、实用、环保的理念渗透在设计的方方面面。以木家具为主的设计,本身就倡导了我们人与自然的和谐共生,让人在自然中得到安乐与满足。设计从大自然获得灵感而产生,随处可见。



传统与现代相结合
把个性与实用相结合
完美体现出时尚混搭风格的魅力
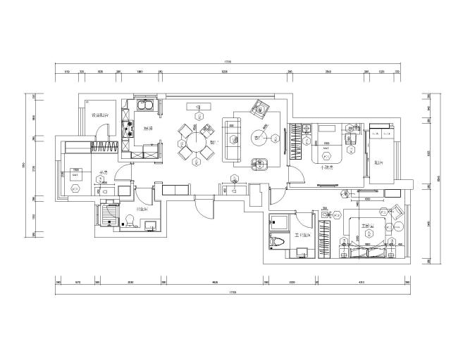
绿城 。诚园
— 这个餐厅设计很受人喜欢 —
设计面积:120m²
设计风格:北欧风格

个性却不失稳重的餐厅设计
很多人喜欢在吊顶上玩创意、搞独特,以独特的圆形吊顶造型宣扬个性。在家具上面完美的将现代的元素与传统的风格结合在一起,根据需求打造富有个性却不失稳重的餐厅。




形似散而神不散的统一性,
舒适度与随意个性的艺术结合。
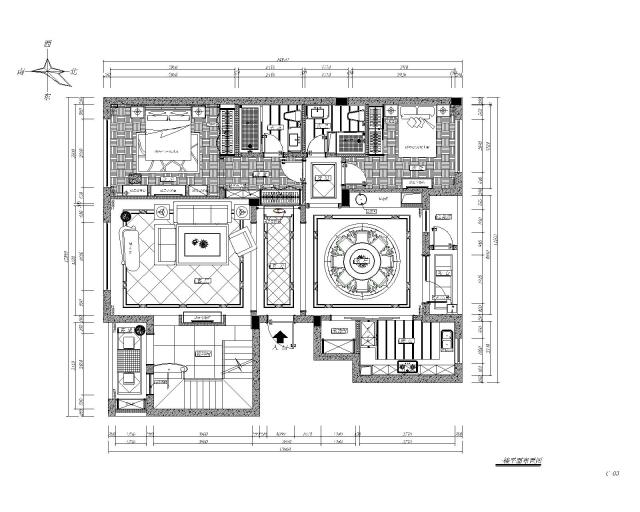
绿城 。*瑰园玫**
— 木石搭配,更有品味。 —
设计面积:380m²
设计风格:中式风格

一个独具韵味的家装设计
客厅采用了大面积的石材,挑空的客厅和上方低垂的吊灯,融入中国元素的家具,显得格外的大气,加上天然木质家具,又增添了几分文艺的气息。

似坠落般水滴的水晶吊灯,是不是很漂亮呢?



山水画的加入更加凸显风格。



自 知、自 乐、自 清
温 和、中 性、谦 和
打 破、释 放、尊 重
谁说中式风格土?
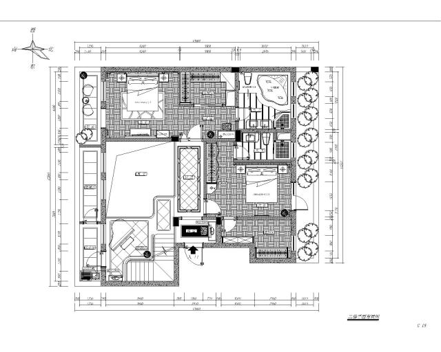
复地 。御上海
— 不一样的色彩板—
设计面积:300m²
设计风格:欧式风格

全屋定制新宠
璀璨的水晶灯和床头上装饰镜,满眼欧式风格高贵典雅的异域风情。地毯是地面上装饰的主角,地毯的舒适感和独特质地与西式家具的搭配相得益,尽显浓郁的欧式贵族气息。

大灯烘托着温暖的氛围。



发酵爱情,
让我们在洋溢着浪漫气息的“家”中,
尽情感受生活带来的美好吧。
枫华 。富地
— 给家不一样的浪漫 —
设计面积:280m²
设计风格:欧式风格

激情碰撞别样的美
精致的沙发,温馨的家具,巧妙搭配。舒适、稳重大气的主调贯穿其中,开阔的空间和鲜明特征,从细节中凸显——点睛之笔。


美而不俗
这些是不是你的理想呢?
