随着本世纪20年代的到来,90后也不知不觉成为各行各业的中坚力量。而对他们的评价众人一直没有停止,自我、创新、好奇心强、丧....这个时代总是喜欢给90后贴上一些标签。这次要介绍就是一群90后设计师的作品。

琴工,一个看起来很温柔笑起来很傻的90后女孩,就是这么一个人畜无害的孩子,一直在勇敢坚强的追求自己理想的生活。不在乎外界的看法,不取悦任何人;即使迷茫的要死,内心浮躁,遭遇挫折也能积极改变和成长,坚持自己喜欢的事情,活得肆意而又洒脱。一个充满魔幻生活方程式的城市菁英活力居住区,完全符合这群充满个性,且教育程度良好,有着不错的审美能力的90后消费者所需。
一个90后的设计师,一个90后为主的菁英居住区,他们的作品将会如何?

现代自然风——将清净、优雅存于简约与现代之中




「客厅」LIVING ROOM








「主卧室」MASTER BEDROOM



「儿童房」CHILDREN'S ROOM



「多功能房」MULT-FUNCTION ROOM


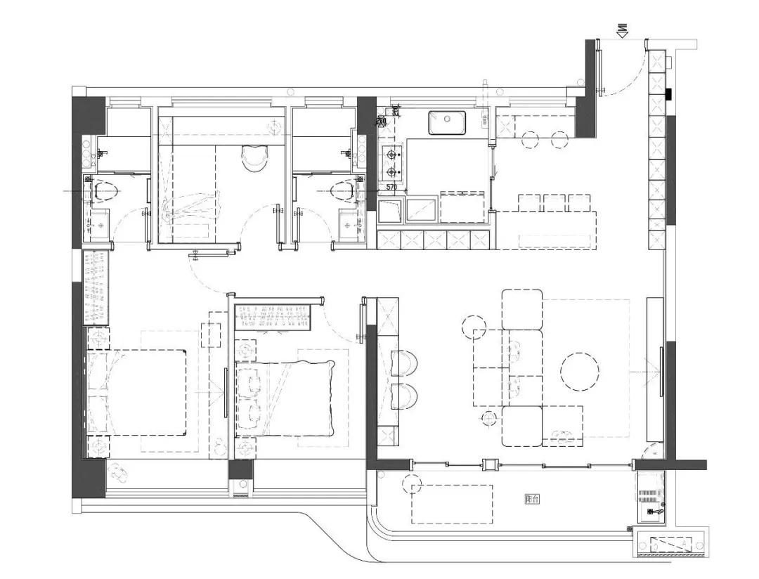
「户型一平面图」FLOOR PLAN

北欧极简风——简洁、自然、个性化




「客厅」LIVING ROOM









「儿童房」CHILDREN'S ROOM






「主卧室」MASTER BEDROOM



「户型二平面图」FLOOR PLAN
90后需要的收纳空间!!!
买他!买他!买他!已经是90后不能缺少的活动,而在爽快过后,如何收纳也成为了众人头痛的问题。本次设计中,设计师结合理论与生活实践,通过不断的数据分析,设计出不同的收纳方案。如玄关“1+2+3”的传统格局,已经无法满足主流消费人群的功能需求了,追求自我和个性的年轻人更希望家具能为“我服务”,而不是让自己去适应家具。
玄关柜
而现今,玄关柜不仅收纳鞋子,还需设置日常生活物品的收纳,如:雨伞、钥匙、手机、门卡等小物件等等。不仅存放物种类的增加,即使同一样物品现今也有着不同的要求。而按80-90后消费群体的习惯,鞋的尺寸也不是单一的,有平底鞋、不同高度的高跟鞋、球鞋、高低筒boot等等,这些生活细节都促使了家具的模式的不断改变。


衣帽柜
人民的生活习惯直接决定了衣柜的功能,过往的服饰相对简单,衣料也相对易打理,因此衣柜内的收纳也以大面积的分隔为主,除了衣服的存放外,更配置了被子、毛毯这类家居生活品的存放。
而现今衣柜的收纳对象不仅仅是外穿的衣服,与其搭配的手袋、配饰(如:帽子、围巾、饰品等)均有可能存放在内,除此以外,还有内衣、袜子等一系列琐碎的私隐小物品。
而且,现今衣服的分类众多:长大衣、短外套、小西装、真丝衬衣、连衣裙、卫衣、8分裤子等等潮流服饰的出现,导致新一代的消费者,对家具收纳功能的要求越来越高,也恰如前面所说的:“家具是为我服务的”。


浴室柜
过往的做法相对简单,所谓的收纳功能也只是设置一个空间,这也导致了各种物品杂乱无章的摆放,在使用过程中造成混乱。
现今的做法更贴近实际生活所需,通过设计指定的收纳分隔,除了便于存放物品外,更能合理的利用每一寸空间,优化每一个细节。


橱柜 / 过道柜
过往的做法相对简单,所谓的收纳功能也只是设置一个空间,这也导致了各种物品杂乱无章的摆放,在使用过程中造成混乱。
现今的做法更贴近实际生活所需,通过设计指定的收纳分隔,除了便于存放物品外,更能合理的利用每一寸空间,优化每一个细节。





过往的做法相对简单,所谓的收纳功能也只是设置一个空间,这也导致了各种物品杂乱无章的摆放,在使用过程中造成混乱。
现今的做法更贴近实际生活所需,通过设计指定的收纳分隔,除了便于存放物品外,更能合理的利用每一寸空间,优化每一个细节。
一切的设计始终都是为人服务的。
消费行为学专家Micael Dahlén曾说过:“家是个展现个性、文化和种族特色的地方”现在这个由90后来主导的消费市场将会如何发展,就由家的“主人”来决定。

“家”的样子是怎么样呢?
——他们是什么样,家就是什么样。
设计总监:梁智德
摄 影:梁荣东
来源:室内设计联盟ID:snsjlm