1 施工流程
1 格构柱灌注桩施工流程
施工准备→测量放线→埋设护筒→旋挖钻机就位→钻进成孔→一次清孔→钢筋笼与格构柱焊接整体下放→固定格构柱→下导管、二次清孔→灌注水下砼→拔导管→回填砾砂或粘土。
2 灌注桩施工流程
施工准备→测量放线→桩位复核→护筒埋设→旋挖钻机就位→钻进成孔→一次清孔→吊放钢筋笼→导管安装→二次清孔→沉渣测量→灌注水下混凝土→回填砾砂或粘土。
3 施工平面布置
桩及临时立柱施工于地连墙施工阶段后期开始进行,且车站钻孔成桩范围内多以卵石地层、砂土层为主,钻机成孔速度快,施工工期短,故本着经济、节约、充分利用现有有限场地的原则,利用原有基坑地连墙钢筋笼加工台座作为钢筋笼的加工堆存区及临时立柱的堆放区。钢筋加工场及钢筋原材堆放区同样利用原有地连墙钢筋笼加工场地。
4施工工艺
旋挖钻成孔是通过底部带有活门的桶式回转破碎岩土,并直接将其装入钻斗内,然后再由钻机提升装臵和伸缩钻杆将钻头提出孔外卸土,这样循环往复,不断地取土卸土,直至钻至设计孔底标高,格构柱施工工艺流程见下图,加固桩施工工艺流程图见下图。

图 格构柱施工工艺流程图

图 桩施工工艺流程图
5 施工方法
5.1 测量放样
根据设计院提供的坐标基准点,按照设计图进行放样定位及原地面高程测量工作,定出桩位中点。用全站仪测放桩位,桩位中心插一钢筋,四周各打一根控制桩来控制桩位中心,用砂浆固定控制桩,同时将已计算好的格构柱四边中点延长线4个坐标点,在硬化的地面板上做出标记,定位偏差<3mm;护筒埋设后,测量其中心位置与桩位中心相吻合;专控过程对护筒位置及标高进行复核。
5.2 施工顺序
为防止塌孔和保证成孔质量,钻孔灌注桩采用间隔式跳仓施工。钻孔桩施工时加大间隔,隔2作1,如图所示,钻孔灌注桩的施作顺序为 1→2→3。

5.3 泥浆生产及循环
1)泥浆生产工艺流程

图 泥浆生产工艺流程图
2)泥浆性能、造浆池、循环池、沉淀池
钻孔成桩采用正循环方式进行泥浆循环。施工前本着节约、方便施工的原则,利用导墙地连墙施工泥浆池共用泥浆池。
泥浆循环采用优质泥浆,新拌制泥浆应贮存24h以上或加分散剂使膨润土充分水化后方可使用控制措施如下:
(1)控制泥浆液面
由于存在圆砾、卵石层,为防止或减少卵石层垮塌,控制孔内液面标高以保证足够水头压力,维护下部卵石层的安全,同时控制泥浆液面标高还可有效减少孔内缩径现象产生。
(2)控制泥浆比重
泥浆比重钻孔时选1.2~1.4,清孔时1.05~1.1。
(4)控制泥浆粘度
应适当提高泥浆粘度,以阻止卵石层松散垮塌,同时粘度不能过大,粘度过高,则会使泵压升高,排量显著减少,钻速下降,排粉困难,泥浆粘度控制在19~28s,含砂率小于2%。
(5)控制泥浆PH值
在泥浆使用前,对泥浆的PH值进行测定。泥浆PH值的大小,表示了泥浆酸碱性的强弱。PH<7时,泥浆为酸性,PH值越小,酸性越强;PH>7,为碱性PH值越大,碱性越强;PH=7时,泥浆为中性。泥浆PH值以8~10为宜。
5.4 钢护筒制作及埋设
钢护筒每节段长2m,壁厚6mm,G、H、I型桩Ф800mm桩钢护筒内径为870mm,格构柱φ900桩钢护筒内径1000mm。钢护筒在钢结构加工场加工。钢护筒加工标准为垂直度偏差不超过1/300。焊接采用坡口双面焊,所有焊缝连续,以保证不漏水。
护筒顶宜高出施工地面0.5m,其高度应满足孔内泥浆面高度的要求。其周围采用粘土夯实,以防渗漏或防止孔内水头太高,使护筒底形成反穿孔。护筒顶面中心线与设计桩位偏差不得大于50mm,倾斜度不得大于1/300。埋设钢护筒前,采用较大口径的钻头先预钻至护筒底的标高位置后,提出钻斗且用钻斗将钢护筒压入到预定位置,再用粗颗粒土回填护筒外侧周围,回填密实。
5.5 钻机就位
钻机就位时,要事先检查钻机的性能状态是否良好。保证钻机工作正常。
通过测设的桩位准确确定钻机的位置,并保证钻机稳定,通过手动粗略调平以保证钻杆基本竖直后, 即可利用自动控制系统调整钻杆保持竖直状态。
5.6 钻进
车站桩基施工深度范围内基本以砾石、圆砾为主,无基岩揭露,综合考虑成孔速度及质量钻机均选用旋挖钻。
钻机就位前所有零部件须经检查及整修,钻头直径必须满足钻孔要求,钻机底座平整牢固,钻机安装稳定可靠。
(1)钻孔作业
钻孔前在护筒顶面依照护筒壁上的护筒顶面中心标识的挂设十字线,然后对中钻头中心。钻头中心与护筒中心偏差不得大于5cm。
成孔前必须检查钻头保径装置,钻头直径、钻头磨损情况,施工过程中磨损超标的钻头及时更换。
旋挖钻机配备电子控制系统显示并调整钻进时的垂直度,通过电子控制和人工用垂球观察两种方式来保证钻杆的垂直度,从而保证成孔的垂直度。同时在每一次钻机提钻甩渣复位后检查钻头是否对中。
开钻时,先启动泥浆泵和转盘,使之空转一段时间,待泥浆输进钻孔中高于护筒底角0.5m以上,方可开始钻进。开始钻进时,低档慢速钻进,待钻进深度超过护筒刃脚处,按正常速度钻进。
起、落钻头速度要均匀,不得过猛或骤然变速。孔内出土,应立即清走,不得堆积在钻孔周围。钻孔作业分班连续进行,一次成孔。钻进过程中产生的泥浆、钻碴经沉淀池净化处理后方可排放沉淀水。
钻至桩孔设计标高后,钻头在不加压的情况下就地继续旋转数圈,再提钻,保证钻头尽可能取渣情况下又可避免超钻。
(3)终孔及成孔检查
钻孔达到设计深度后,必须核实地质情况。通过钻渣,与地质柱状图对照,以验证地质情况是否满足设计要求。如与勘测设计资料不符,及时通知监理工程师及现场代表进行确认处理。如满足设计要求,立即对孔深、孔径、孔型进行检查。
对于孔径、孔壁、垂直度等检测项目采用测孔仪进行检测。
孔深及沉渣厚度检测:成孔后,应用测绳下挂0.5kg重物测量检查孔深。
确认满足设计和验标要求后,报请监理工程师验收,监理工程师验收合格后,立即进行清孔。
5.7 清孔及检测
清孔的目的是清除钻渣和沉淀层,尽量减少孔底沉淀厚度,防止桩底存留过厚沉渣而降低桩的承载力,水下清孔采用泥浆正循环方式进行。
5.8 钢筋笼(含临时立柱)制作和安装
钢筋加工必须经监理检验合格后方能进入下道工序施工。
(1)钢筋笼的加工
钢筋笼加工采用箍筋成型法,即按照设计图纸要求的间距在主筋上标出加强箍筋位置,然后按主筋上标好的位置将箍筋依次扶正并一一焊好。

图 格构柱钢筋笼加工结构示意图

图 型桩钢筋笼加工结构示意图
1、钢筋制作在钢筋笼加工场地,由内业技术人员按设计图纸及规范要求提出加工计划,在加工厂加工成半成品;
2、钢筋加工的形状、尺寸必须符合设计要求;
3、钢筋表面应洁净、无损伤、油渍、漆污和铁锈。钢筋平直,无局部曲折;
4、钢筋主筋接头应采用机械连接;
钢筋笼主筋连接采用滚轧直螺纹套筒(连接方式见下图)。

图 钢筋连接示意图
5、钢筋笼同一截面主筋接头数量不得大于50%;钢筋笼加强箍筋连接要求,单面焊10d,焊缝高度=0.3d.焊缝宽度≥0.7d,同截面接头不得超过配筋的50%;
6、钢筋笼主筋宜设置保护层预制垫块,垫块为砂浆预制块,中间穿孔,插入与箍筋φ10型号的钢筋,点焊在主筋上,每组保护层垫块竖向间距不应大于2m,采用梅花形布置,每组不宜小于4块,安装时保证垫块在骨架下放时滚动;
7、钢筋笼加劲箍筋宜设在主筋外侧;
(2)临时立柱的加工(不兼做临时立柱时忽略此项)
临时立柱采用现场加工的方式进行,材料进场前由项目质监部对临时立柱加工成品进行检验。加工临时立柱用的角钢、钢板等采用切割的方式进行加工,加工时应在地面专用加工场地制作,焊接时,保证原材料及焊接后格构柱平直无弯曲,保证格构柱的承载能力。特别需注意的是,临时立柱加工前,格构柱竖向加工的缀板应避开混凝土加固位置设置(图中止水板在结构施做底板时安装)。

图 格构柱节点图
1、钢材型号采用235B钢,焊条采43X型;
2.未注明焊缝厚度G、H、I不小于8mm,且周边满焊;
3、如现场钢立柱需拼接时,钢立柱拼接材料须用立柱角相同型材,角对接端部须磨平,端面应水平.拼接处另加板。立柱拼接部位周边须满焊、焊缝高10mm,焊缝等级为二级,质量应符合中华人民共和国行业标准《建筑钢结构焊接技术规程》;

图 角钢拼接平面图 图 角钢拼接立面图
6、缀板位置及间距可根据加固位置适当调整,以保证加固筋能穿过.如果钢筋设置受板阻挡、可在补足缀板面积后把分割去,但施工过程应确保钢立柱角钢的完整、不得割除角钢任何部位;
7、加固底部挖土形成架空时,其底部混凝土垫层必须及时凿除干净防止产生安全事故;
8、钢立柱垂直度偏差不大于1/50,中心偏差不大于50mm,立柱垂直度差不大于
1/200.施工单位应采取有效措确确保立柱垂直度;
9、施工中设置钢立柱时,应采取必要的措施保证立柱各边与主撑轴线严格垂直或平行。
(3)钢筋笼及钢立柱的起吊,就位和对接
a.工程中钢筋笼长度均6m,一次吊装即可,使用履带吊放入孔中。
主筋采用滚轧直螺纹套筒连接时,同一连接区段内的接头数量不得大于50%,且机械连接接头的错开长度不得小于35d(d为纵向受力钢筋直径)或500mm。钢筋套丝时,须用水溶性切削冷却润滑液冷却,不得用机油润滑或不加润滑液套丝,用于套丝的钢筋断面应与钢筋轴线垂直,不得有结疤,端头不得翘曲,端部400mm范围内应保持平直,不得用气割切断钢筋。
套筒连接时,套筒单边外露丝扣为不大于1.5个完整丝扣。否则应重新拧紧接头或进行加固处理。
主筋采用焊接连接时,焊条宜为E50型,单面焊接时焊缝长度不得小于10d,双面焊接时焊缝长度不得小于5d,施工前应做焊接工艺性试验,并应满足《钢筋焊接及验收规程》及设计中的其他相关要求。
b.格构柱工程当起吊临时立柱时,分两部分进行起吊,第一部分起吊钢筋笼(7m长),第二部分起吊格构柱。钢筋笼就位好后,人工扶住钢筋笼徐徐下降,当钢筋笼顶部下到孔口附近时,用型钢穿过加强箍筋的下方,将钢筋笼临时支承于孔口,孔口临时加固应满足强度要求,下放时钢筋笼严禁碰到孔壁以免造成塌孔,此时钢筋笼的吊装完成。
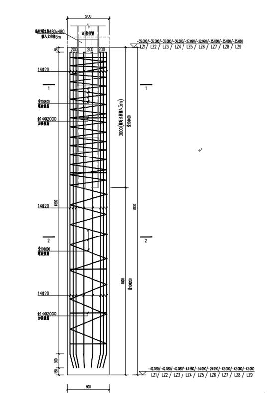
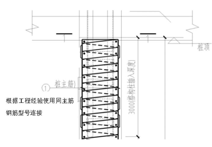
其中格构柱插入钢筋笼深度为3.0m,格构柱与钢筋笼采用焊接的方式成一整体。格构柱进入钢筋笼3m后,停止下降。在格构柱四面分别采用采用φ12@300mm钢筋进行连接,每断面共4根,与角钢贴焊,并向下弯折后与箍筋焊接,如图5.2.4-6。
格构柱与钢筋笼连接好后,先上提一定的高度以便取出孔口加固的型钢,型钢取出后再整体下放,下放过程中,避免碰到孔壁,以免造成塌孔。下放时随时用靠尺测量其垂直度。

图 格构柱与钢筋笼连接示意图
起吊同样采取两点起吊法,第一吊点设在连接体的上端,第二吊点设在连接体的中点到三分之一点之间。
为保证格构柱能精确定位,吊装过程中,用全站仪及经纬仪进行跟踪测量,吊装示意图如下 。
(1)按照已测放好的定位方位点,控制下放垂直度。
(2)选用与桩号相对应类型的格构柱,格构柱吊装前先记录好所吊放的格构柱编号,监理人员验收签字并做好记录,验收工作在开钻前提前完成。
(3)用180t履带吊将格构柱起吊并缓慢放入钢筋笼内,格构柱进入钢筋笼内3 m,尽量避免碰撞钢筋笼。

图 格构柱吊装示意图
下放钢筋笼时注意对孔壁的影响,不能碰撞孔壁;因钢筋接头较多,焊接时间较长,钢筋笼下放定位后,进行第二次清孔,满足设计及规范要求,并得到监理认可后,应尽快不间断地浇筑混凝土,如二次清孔后4小时尚未开始浇筑混凝土,则必须对沉渣厚度及泥浆指标进行重新测定,如不合格,孔底必须重新清理。
5.9 格构柱的固定、定位
活动端头连接好后,继续下吊格构柱。格构柱下放过程中,下放的深度应结合实测地面标高、灌注桩底标高、格构柱桩顶标高来控制。
5.10 二次清孔及检测
二次清孔是在钢筋笼、导管沉放结束后进行的,主要是为了清除下钢筋笼时刮、碰下去的泥快,同时也调整泥浆比重。二次清孔前首先对泥浆比重及沉渣厚度进行检测,如泥浆比重符合要求,成孔检测符合标准,即可不再进行二次清孔,若不符合要求,则参照上述第9项进行二次清孔及监测。
5.11 灌注水下混凝土
(1)导管:采用快速接头钢导管,其内径φ250,底管长度为4m,中间加节长度每节长度2.0m。导管下口距孔底300~500mm,不宜过大或过小,在导管使用前,必须对导管进行外观检查、对接检查。
经以上检验合格后方可投入快用,对于不合格导管严实使用,导管长度应根据孔深进行配备,满足清孔及混凝土浇筑的需要,即清孔时能下至孔底,浇筑时,导管底端距孔底O.5cm左右,混凝土应能顺利从导管内灌至孔底。
导管在孔口连接处应牢固,吊放时,应使位置居中,轴线顺直,稳定沉放,避免卡挂钢筋笼和刮撞孔壁。
(2)料斗:施工时,用8mm钢板加工漏斗和储料斗,漏斗+储料斗体积必须确保首批混凝土使导管埋入混凝土深度不小于0.8米。
(3)水下混凝土浇筑
钻孔桩施工前,坍落度应为18~22cm,须检查混凝土坍落度及各项指标合格后才能放入 漏斗。灌注水下混凝土时,导管和漏斗之间设置阀门关好,并将导管提高孔底20~50cm左右,然后将灌注漏斗和储料斗装满混凝土之后方可打开阀门开始浇注水下混凝土。在混凝土灌注过程中,实测实量正在浇筑的混凝土面的标高,控制导管埋深在2~4m之间,最小不小于2m。混凝土灌注应连续进行不得中断。灌桩时导管提升高度不宜过大,严禁导管提出混凝土面造成事故。当出现导管堵塞情况时,可将导管少量上下升降,排除故障,但不得左右摇晃移动。同时,作好混凝土灌注记录备查。为确保桩顶质量,混凝土浇筑应比设计标高增加500mm,浇筑底板(梁)前,应将桩顶浮浆凿除清理干净,保证暴露的桩顶混凝土达到强度设计值,桩顶以上露出的钢筋长度应达到设计要求。
现场计量人员认真计量,确保混凝土按监理工程师认可的配合比拌制,并按施工技术规范规定的频率全面检查混凝土的坍落度指标,严禁不符合要求的混凝土送入漏斗灌注。施工时桩身任何载面不得有缩颈现象,砼充盈系数控制在1.1~1.3之间。
5.12 回填桩孔
格构柱桩孔混凝土浇筑完成后,应将上部桩顶空钻位置回填粗砂。