山湖海
毗邻江东新区 海南自贸岛先行区
浩瀚云龙湖畔 绿茵公园为邻
65~88㎡高得房率别墅区景观高层
项目地址:海口市云龙镇云定路104号
开发商:海口琼山重点项目建设投资公司
总占地面积:256亩
建筑面积:22.6万㎡
容 积 率:1.318
绿 化 率:60%
物业公司: 海南珠江格瑞物业管理有限公司
??物 业 费:2.0元/㎡·月
产权年限:70年
交房时间:预计2021年11月30日
楼层总高:24/26层
规划户数: 3554户
装修标准:全装修
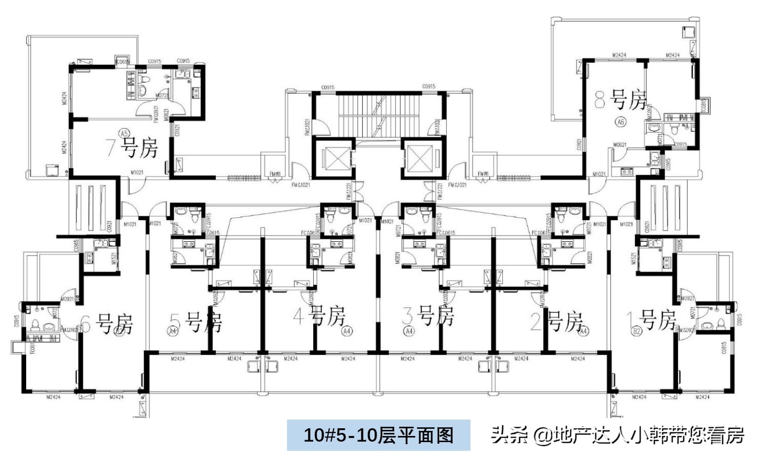
电梯户数:2梯8户
主力户型:
1/6号房:约87.70㎡
2/3/4/5号房:约65.74/65.88㎡
7号房:约76.09㎡
8号房:约73.45㎡
项目亮点:
区域发展:项目紧邻江东新区(自由贸易先行示范区),周边云龙产业园及临空产业园等计划吸纳约10.8万人,区域发展潜力巨大;
2、交通便捷:项目距离美兰机场仅15分钟车程,周边分布东线高速、中线高速、环城高速、环岛高铁等海南重要交通动脉,畅享立体交通路网;
3、景观配套:项目择址浩瀚云龙湖、绿地公园,小区内部人工湖泊悠享垂钓乐趣,另精选多种热带风情植物打造小区绿化景观;
4、商业配套:坐拥无边景观泳池、1.7万㎡品质型配套、老年活动中心等;项目紧邻云龙镇中心,卫生院、农贸市场、云龙中学、银行等生活配套一应俱全;
5、产品优势:赠送面积大,得房率高,楼王位置,南向可观云龙湖+人工湖双重湖景;小区内部为别墅区,高层住宅视野无遮挡,投资度假养老均可。
【效果图】

【区位图】

【户型图】




【楼层平面图】

【景观参考】


【项目实景照片】






声明:仅供参考,楼盘动态多变,实际请以项目现场情况为准。