北欧风格以简洁著称于世,井影响到后来的”极简主义”、”后现代”等风格。在20世纪风起云涌的”工业设计”浪潮中,北欧风格的简洁被推到极致。反映在建筑室内设计方面,就是室内的顶、墙、地六个面,完全不用纹样和图案装饰,只用线条、色块来区分点缀。

项目名称:天海誉天下
设计单位:石家庄实创装饰
装修风格:北欧风格
建筑面积:140平米
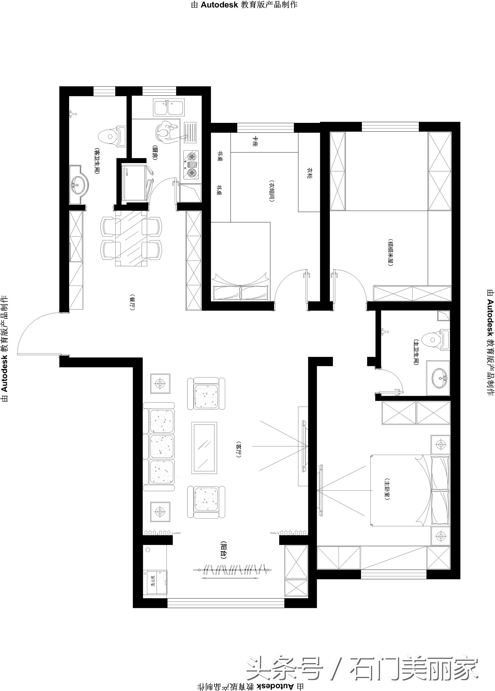
房屋类型:三室两厅两卫一厨
(包含所有主材、整体厨房、整体卫浴、防水、水路改造、电路改造、地面找平、包垭口、地漏、阴阳角护角线、电视背景墙、石膏板吊顶、垃圾清运、灯具安装、管理费、税金、全屋定制电视柜、鞋柜、床、衣柜、榻榻米、书柜、灯饰、窗帘、壁纸、开荒保洁等)
材料品牌:丹麦原装进口褔乐阁涂料、瑞士原装进口卢森地板、东洋铭木、圣象地板、巴赫曼德式门、东鹏瓷砖、诺贝尔瓷砖、蒙娜丽莎瓷砖、新中源陶瓷、科勒卫浴、箭牌卫浴、安华卫浴、法恩莎卫浴、TCL罗格朗、潜水艇防臭地漏、德国乐卡五金、整体橱柜(东南亚进口箱体板)、现代集成吊顶等。

客厅效果-天海誉天下140平装修效果-北欧风格三居室效果图-石家庄实创装饰

客厅效果-天海誉天下140平装修效果-北欧风格三居室效果图-石家庄实创装饰

餐厅效果-天海誉天下140平装修效果-北欧风格三居室效果图-石家庄实创装饰

走廊效果-天海誉天下140平装修效果-北欧风格三居室效果图-石家庄实创装饰

户型图-天海誉天下140平装修效果-北欧风格三居室效果图-石家庄实创装饰
今日案例展示完毕,喜欢小编的作品就多多支持哦,有不足的地方多多交流,欢迎大家积极评论^--^ 小主们有想看自己小区户型的效果案例也可以多多留言。